ДОМ НЕДВИЖИМОСТИ
НЕДВИЖИМОСТЬ ЕКАТЕРИНБУРГА
НАЗАД К СПИСКУ

Главная  /  

Недвижимость  /  

Коммерческая недвижимость  /  

Купить коммерческую недвижимость

Подбор, покупка, продажа, обмен квартир. Бесплатные консультации по недвижимости. ЗАДАТЬ ВОПРОС ПОЗВОНИТЬ

Подбор, покупка, продажа, обмен квартир. Бесплатные консультации по недвижимости. ЗАДАТЬ ВОПРОС

Купить коммерческую недвижимость

Купить коммерческую недвижимость

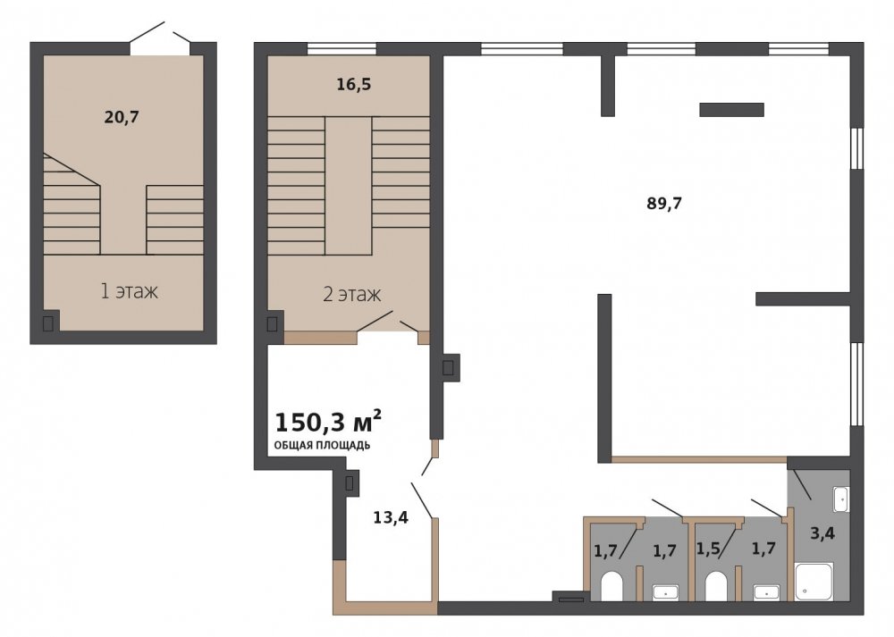
Екатеринбург, Пионерский, пер. Трамвайный 2/2

Площадь: Общая: 150 м2  

12 024 000 ₽
ПРЕДЛОЖИТЬ СВОЮ ЦЕНУ
80 160 ₽/м2
 52 937 ₽/мес
ПРЕДЛОЖИТЬ СВОЮ ЦЕНУ
Ипотека
Рассрочка
Полозова Светлана Владимировна
Агент объекта

Полозова Светлана Владимировна

+79086315339

Коммерческая недвижимость

Тип помещения коммерческое
Материал дома: монолит
Год постройки: 2017
Изолированных: -
Этаж/Этажность: 1,2/27
Санузел: есть
Балкон/Лоджия: нет
Стеклопакеты: есть
Вид из окон: хороший
Состояние: хорошее
Транспорт: есть
Метро: есть
Условие: продажа
Ипотека: да

Недвижимость в Екатеринбурге

Продам коммерческую недвижимость

Агентство Дом Недвижимости предлагает купить коммерческую площадь в мкр. Пионерский Екатеринбург. Дом сдан.

Отделка: под чистовую, возможна рассрочка, ипотека.

Купить, продать коммерческую недвижимость легко и просто с профессиональным риэлтором.

При покупке этого помещения услуги риэлтора по организации и сопровождению сделки с недвижимостью оплачивает застройщик.

Посмотреть всю коммерческую недвижимость в продаже

ОСТАВИТЬ ЗАЯВКУ

Ипотека

Ежемесячный платеж

52 937 ₽/мес
ОФОРМИТЬ ЗАКАЗ
Андрей

Отзыв: Хочу сказать большое спасибо за помощь в продаже доли. Все было четко и понятно. Переговоры на высшем уровне. Я остался очень доволен.

Андрей: 14.05.2025, рубрика «Сопровождение сделок» Показать все
Оксана

Отзыв: Всегда пользовалась услугами риэлторов для сопровождения сделок при покупке/продаже недвижимости. Исходя из прошлого опыта, шла в Дом недвижимости с небольшим скепсисом. Но это настоящая команда профессионалов. Оксана Владимировна- лучший риэлтор! Если вы хотите, чтобы операция с недвижимостью прошл...а в контуре ваших интересов, ваша вновь приобретенная квартира принесла радость, а не судебные споры, при этом стоимость услуг риэлтора была приятной, рекомендую обратиться в Дом недвижимости.

Оксана: 17.07.2023, рубрика «Сопровождение сделок» Показать все
Станислав Денисов

Отзыв: Обратился в АН "Недвижимость Урала" для сопровождения сделки по покупке квартиры. В кратчайшие сроки все документы были подготовлены, проверены, указаны все риски и как их избежать. От обращения до сделки прошло менее недели. Спасибо огромное сотруднику Киселевой Наталье Сергеевне за эту работу. P.S.... Буду рекомендовать всем.

Станислав Денисов: 23.03.2023, рубрика «Сопровождение сделок» Показать все
Екатерина Вячеславовна

Отзыв: Отличный сервис! Мне очень повезло, что я нашла Татьяну! Решила продать недвижимость с намерением расширения-нужно было выставить на продажу комнату и параллельно найти новую квартиру. Сложно было себе представить, как именно организовать две сделки в один день, какие документы собрать, как уладить... все нюансы. Обратилась в АН «Недвижимость Урал», вышла на связь с риелтором Татьяной и после предварительной беседы, в ходе которой мы определили все необходимые параметры, заключили договор. Вопросы по продаже и подбору объекта взяла на себя Татьяна: реклама, сопровождение, сбор документов. Мне оставалось лишь выбрать понравившуюся квартиру! В итоге обе сделки прошли гладко, в присутствии и под контролем Татьяны! Обязательно обращайтесь, Вам подберут подходящее жилье или реализуют Ваше. Сэкономите силы, нервы и время! Отдельное спасибо Татьяне, она очень чуткий и грамотный специалист, уверена, в ситуации любой сложности она найдет наилучший индивидуальный подход к любому клиенту.

Екатерина Вячеславовна: 01.07.2022, рубрика «Сопровождение сделок» Показать все
Виталий М.

Отзыв: Спасибо Оксане Владимировне специалисту компании Дом Недвижимости за компетентность и понимание проблем. Сделку совершили быстро, немного суетливо, т.к. за 1 раз были совершены 3 сделки цепочкой. А это наше время....

Виталий М.: 05.02.2022, рубрика «Сопровождение сделок» Показать все
Елена К.

Отзыв: С целью приобретения квартиры в г. Екатеринбурге, обратились в агентство Дом Недвижимости. Всю процедуру приобретения квартиры вели два специалиста агентства: Наталья Валентиновна Бахтова и Галина Михайловна Черкашина. Специалисты сработали профессионально, поняв все запросы и пожелания клиента; все... сопровождалось пояснениями, разъяснениями, все действия (подбор, осмотр квартир, подготовка документов к сделке купли-продажи) сопровождались агентами и все доводилось до логического завершения. Раньше не сталкивалась с работой агентов по недвижимости, но первая сделка в их сопровождении показала, что благодаря помощи профессионалов, можно сэкономить время, получив результат по желаемому запросу. Благодарим!

Елена К.: 29.08.2021, рубрика «Сопровождение сделок» Показать все
Любовь Семеновна

Отзыв: Обратился в Дом Недвижимости за помощью в продаже комнаты. Риэлтор Наталья Валентиновна, специалист своего дела, постоянно на связи, информировала о всех этапах продажи от начала до конца. Знаток своего дела. Спасибо ей за работу, оцениваю её на высший балл....

Любовь Семеновна: 22.04.2021, рубрика «Сопровождение сделок» Показать все
Наталья

Отзыв: Хочу выразить огромную благодарность Надежде Петровне за оказанные услуги! Это отличные специалисты своего дела! В короткие сроки помогли найти мне подходящую квартиру, в желаемом районе, помогли в банке оформить ипотеку и сопровождали меня везде на каждом этапе сделки. Буду рекомендовать моим знако...мым этих специалистов и компанию Дом Недвижимости!!!

Наталья: 27.03.2021, рубрика «Сопровождение сделок» Показать все
Александр

Отзыв: Обратился в агентство Дом Недвижимости к Оксане Владимировне по совету знакомых. Я сам подобрал квартиру, и мне нужно было проверить документы и провести сделку купли-продажи. Большое спасибо за помощь в покупке квартиры! Сделка была проведена профессионально, учтены все нюансы! Очень доволен резуль...татом. Советую обращаться к Оксане Владимировне.

Александр: 11.12.2020, рубрика «Сопровождение сделок» Показать все
Олег Перевалов

Отзыв: Отличное сопровождение продажи, даже дистанционно, так как проживаю в другом регионе. Отличные специалисты в своем деле.

Олег Перевалов: 06.08.2020, рубрика «Сопровождение сделок» Показать все
Татьяна

Отзыв: Очень благодарна за оказанные услуги агентства Дом Недвижимости! Сделка прошла успешно и быстро, очень грамотные специалисты. Спасибо!

Татьяна: 29.02.2020, рубрика «Сопровождение сделок» Показать все
Семья Плишкиных

Отзыв: Хотим выразить благодарность АН Дом Недвижимости за помощь в покупке квартиры в г. Серов. т. к. мы живём в г. Серов, а хозяин квартиры - в Екатеринбурге, получилось провести межрегиональную сделку. На протяжении всего процесса покупки, начиная со сбора документов всё сделали хорошо. Спасибо Вам за в...аш труд!

Семья Плишкиных: 14.10.2019, рубрика «Сопровождение сделок» Показать все
Анастасия и Константин

Отзыв: Добрый день! Обратились для сопровождения сделки в агентство Дом Недвижимости по рекомендации. Хочу сказать спасибо, за оформление сложной и длительной сделки по продаже квартиры на Химмаше. Отличные специалисты, были постоянно на связи, разъясняли все детали сделки и я с радостью готова их рекоменд...овать своим друзьям и знакомым по вопросам недвижимости!

Анастасия и Константин: 11.07.2019, рубрика «Сопровождение сделок» Показать все
Елена и Николай

Отзыв: Обратились в агенство недвижимости в связи с продажей квартиры, подписали договор с агентством. В следующую нашу встречу уже подписывали договор купли-продажи. Сопровождение оказывал риэлтор Пятницин Игорь. Все четко, быстро, без вопросов, в том числе и в регистрирующем органе. Спасибо, Игорь! Надее...мся на дальнейшее сотрудничество по другим объектам. Рекомендуем данное агенство всем, кто желает быстро и качественно реализовать недвижимость.

Елена и Николай: 11.07.2018, рубрика «Сопровождение сделок» Показать все
Ольга

Отзыв: Добрый день, хочу выразить благодарность. Данное агентство использует разнообразные инструменты для продажи, является членом УПН, заинтересованы в получении рыночной стоимости объекта продавцом, а для покупателя предоставления полной информации по объекту с обоснованием данной цены. Реклама во многи...х работающих источниках. Очень приятно сотрудничать с грамотными специалистами, большое спасибо за полную организацию сделки и сопровождение на всех этапах. Процветания и больших успехов, Вам лично и всему коллективу агентства. Спасибо!

Ольга: 21.05.2018, рубрика «Сопровождение сделок» Показать все

Показать все отзывы

Татьяна Анатольевна

Вопрос: Здравствуйте. Интересует сопровождение сделки. Выбрали квартиру. Внесли аванс. Необходима помощь в проверке документов и организации сделки. Вы оказываете такую услугу.

Татьяна Анатольевна: 03.04.2026, рубрика «Сопровождение сделок» Показать ответ

Татьяна Анатольевна. Конечно, мы оказываем полный спектр услуг, связанных с недвижимостью, в том числе и по сопровождению сделки. И готовы помочь и Вам. В данную услугу входит не только проверка документов по объекту и продавцу, но и организация взаиморасчетов между сторонами, а также подготовка договора купли-продажи, согласование схемы сделки и передачи ключей. Готовы помочь. Набирайте нам по телефону или оставляйте заявку на сайте. Обязательно все сделаем максимально безопасно и профессионально.

03.04.2026, рубрика «Сопровождение сделок»
Татьяна

Вопрос: Здравствуйте, я хочу продать гараж капитальный. Собственник мой сын, он живет в другом городе. С чего вы посоветуете начать продажу. Сын приезжает периодически, продавать буду я. 

Татьяна: 04.03.2026, рубрика «Сопровождение сделок» Показать ответ

Немирова Оксана Владимировна

Специалист по недвижимости +79030819972

Здравствуйте, Татьяна. Мы рады, что Вы обратились к нам. Так как продажа гаража предполагает не только заключение самого договора купли-продажи и расчеты по нему, но и необходимо будет получать справки для Росреестра и покупателя. Здесь есть несколько вариантов: начть продажу можно, заключив дистанционно договор услуг с нашим агентством на продажу с Вашим сыном. Первый вариант - это, Вы показываете гараж и, когда будет найден покупатель, Ваш сын лично приезжает на несколько дней - это сбор документов для сделки и саму сделку, и расчеты. Все действия мы, конечно, согласуем со всеми сторонами сделки (продавец и покупатель). Второй вариант - это Ваш сын выдает Вам нотариальную доверенность на продажу со всеми полномочиями, чтобы уже Вы как его представитель совершали все действия, необходимые для продажи. В этом случае сыну не нужно приезжать на сделку, все действия от его имени совершаете Вы. Предлагаем Вам созвониться и договориться о дальнейших действиях. Можем подъехать к Вам, если Вам так будет удобнее. Все наши специалисты мобильны и готовы выезжать к клиентам, если им это необходимо.

04.03.2026, рубрика «Сопровождение сделок»
Владислава

Вопрос: Здравствуйте, хотела бы узнать, хотим купить квартиру, цена 2800000, смущает, что очень дёшево для двухкомнатной, с хорошим ремонтом. Правда, ещё не ездили, не смотрели. Хозяин квартиры написал, что квартира в обременении, что брали кредит под залог недвижимости, 600 тысяч рублей. Сказал, что залог снимается сразу после внесения всей суммы. Сказал, что если все понравится, то едем в банк, оплачиваем и переоформляем на нас. Это не обман? Как быть?

Владислава: 21.01.2026, рубрика «Сопровождение сделок» Показать ответ

Немирова Оксана Владимировна

Специалист по недвижимости +79030819972

Вопрос понятен, Владислава. Отвечая на Ваш вопрос по поводу обременения, можем пояснить следующее. Такие сделки возможны. Но необходимо понимать, что пока наш специалист не увидит документы, сказать, что в Вашем случае это, действительно, возможно, весьма проблематично. Необходимо грамотно оформить документы и передачу денег, чтобы быть уверенной, что собственник снимет обременение. То есть для этого мы можем Вам помочь — проверить все документы и собственника, уточнить как и в какие сроки будет снят залог, подготовить грамотный договор купли-продажи и поможем Вам провести сделку комфортно для Вас и продавца, чтобы в дальнейшем Вы точно получили квартиру в собственность без обременений и могли спокойно получить ключи и переехать. Такая услуга называется - сопровождение сделки. Также можем Вам помочь провести сделку под ключ, которая включает подбор квартиры, авансирование, проверка документов и продавца, организация сделки, сама сделка и получение документов и ключей. Предлагаем Вам созвониться и договориться о дальнейших действиях.

21.01.2026, рубрика «Сопровождение сделок»
Наталья

Вопрос: Добрый день. Выбрала квартиру, которая выставлена в одном из известных агентств Екатеринбурга. Подскажите, пожалуйста, как проверить сотрудника, который занимается продажей и само агентство?

Наталья: 22.10.2025, рубрика «Сопровождение сделок» Показать ответ

Уважаемая Наталья. Во-первых, необходимо убедиться в том, что данное агентство является членом Уральской палаты недвижимости и Российской гильдии риэлторов. Т.к. членство в этих некоммерческих объединениях гарантирует клиентам, что агентство является сертифицированным и работает по стандартам, предъявляемым к оказанию услуги. Во-вторых, сотрудника этого агентства также можно найти в списках в этих же объединениях. Но самое главное - это все-таки не сам агент, а какие документы у квартиры и у собственника. Поэтому, в первую очередь, при покупке квартиры необходимо все-таки обращать внимание на это. И, кстати, немаловажным является показатель того, как с Вами коммуницирует агент продавца. Именно непосредственное общение с ним может дать Вам полную картину для того, чтобы принять правильное решение. Прямо и четко он отвечает на Ваши вопросы или старается уйти от них, все ли документы показывает и готов подготовить по Вашему запросу и т.д. Только сопоставив все эти факторы в совокупности можно принимать решение о покупке. Для этого, собственно, и необходимо нанимать риэлтора для сопровождения сделки. Он знает как и что нужно спросить, какие сигналы в поведении контрагента должны насторожить. Ведь у него за плечами есть богатый опыт общения. Предлагаем воспользоваться услугой сопровождения в нашем агентстве. Уверены, Вы останетесь довольны результатом.

22.10.2025, рубрика «Сопровождение сделок»
Ярослава

Вопрос: Добрый день. Интересует сопровождение сделки. Я выбрала квартиру. Но беспокоюсь о правильной организации. Сначала думала, что сама справлюсь, но погрузившись в тонкости, поняла, что мне нужен кто-то другой. Сможете помочь?

Ярослава: 19.08.2025, рубрика «Сопровождение сделок» Показать ответ

Баранов Дмитрий Владимирович

Агент по недвижимости +79040805961

Уважаемая Ярослава. Конечно, мы помогаем в сопровождении сделки. В данную услугу входит проверка документов и подготовка их к сделке, запись на сделку, организация самой сделки и взаиморасчетов между сторонами, подготовка договора купли-продажи, содействие в сдаче документов на государственную регистрацию. Таким образом, Вам не нужно будет ни о чем беспокоиться, мы все хлопоты возьмем на себя. Позвоните нам и мы обязательно запишем Вас на бесплатную консультацию для более подробного изучения Вашей ситуации.

19.08.2025, рубрика «Сопровождение сделок»
Наталья

Вопрос: Можно ли отменить Договор купли-продажи, если не вся сумма отдана Продавцу, а документы на переход права собственности от Продавца к Покупателю уже зарегистрированы в Росреестре?

Наталья: 15.05.2025, рубрика «Сопровождение сделок» Показать ответ

Романцева Людмила Евгеньевна

Специалист по недвижимости +79530066444

Наталья, добрый день! Благодарим за Ваше обращение. По существу заданного Вами вопроса о возможности отмены Договора купли-продажи, если не вся сумма отдана Продавцу, а документы на переход права собственности от Продавца к Покупателю уже зарегистрированы в Росреестре сообщаем следующее: 1. Ваша сделка состоялась, т.к. переход права собственности от Продавца к Покупателю зарегистрирован в Росреестре, но это сделка с обременением купленной Вами квартиры в пользу Продавца, т.к. не произведен полный расчет за квартиру в соответствии с договором купли-продажи, о чем свидетельствует запись в выписке ЕГРН в разделе «Обременение». Обратите, пожалуйста, Ваше внимание на эту запись. 2. В принципе, ДКП можно расторгнуть. Однако, просто так, без веских причин, расторгнуть договор не получится. Существует несколько вариантов расторжения ДКП квартиры и аннулирования сделки. Все зависит от причин расторжения договора купли-продажи: по соглашению сторон, по требованию одной из сторон. Расторжение договора по соглашению сторон возможно только в том случае, если обе стороны – продавец и покупатель- не имеют взаимных претензий и согласны на расторжение. Обращаться в суд в этом случае не придется. Расторжение договора по требованию одной из сторон возможно на основании веских причин, они прописаны в Гражданском кодексе. При этом причины должны быть существенными и нести значительный ущерб. Значительный - это когда одна из сторон сделки лишается того, на что рассчитывала при ее заключении. К этим причинам можно отнести следующие: продавец необоснованно отказывается передать объект недвижимости покупателю; продавец передал недвижимость с существующими нарушениями требований к качеству – с недостатками, которые не могут быть устранены без несоразмерных расходов или затрат времени, или выявляются неоднократно, либо проявляются вновь после их устранения; покупатель вообще не оплатил недвижимость и долгое время не оплачивает большую часть стоимости недвижимости; могут быть и другие причины для расторжения договора по инициативе одной из сторон, связанные с жизненными изменениями, способными существенным образом повлиять на ситуацию. Т.е. если бы одна из сторон знала о таких изменениях, она бы не заключила договор купли-продажи вовсе. Расторгнуть договор по требованию одной из сторон можно только через суд. Для того, чтобы разобраться в Вашей ситуации детально и определить порядок действий приглашаем Вас на консультацию в офис нашего агентства недвижимости, время встречи можно определить по согласованию с Вами. Готовы провести также консультацию и по телефону в удобное для Вас время. Всегда рады оказать помощь в решении любых вопросов, связанных с недвижимостью. Мы работаем для Вас, мы работаем ради Вас.

15.05.2025, рубрика «Сопровождение сделок»
Светлана

Вопрос: Продаю квартиру племяннице, сама я пенсионерка. Какой налог я должна заплатить, если прожила в квартире 2 года, купила её за 3 млн, продаю за 2 млн, кадастровая её стоимость 1,8 млн?

Светлана: 12.02.2025, рубрика «Сопровождение сделок» Показать ответ

Баранов Дмитрий Владимирович

Агент по недвижимости +79040805961

Уважаемая Светлана. Исходя из цифр, которые Вы предоставили, налог на продажу не должен возникнуть, если в декларации Вы отразите цену приобретения и цену продажи. Но, не все так однозначно. Если налоговый инспектор заподозрит сокрытие истинной цены сделки, то налог вполне может быть доначислен. Т.е. если рыночная стоимость Вашей квартиры намного превышает цену, которую Вы укажете в договоре купли-продажи, то при проверке этого факта, налоговый инспектор будет проводить проверку на предмет сокрытия истинной цены. Такие прецеденты уже были зафиксированы на рынке недвижимости. Поэтому, в Вашем случае необходимо тщательно подготовить договор купли-продажи и расчеты по нему, учитывая этот фактор тоже. Рекомендуем Вам обратиться к нашим специалистам, мы поможем грамотно организовать сделку, чтобы обезопасить Вас от всех последующих возможных рисков. Звоните. Обязательно поможем.

12.02.2025, рубрика «Сопровождение сделок»
Екатерина

Вопрос: Здравствуйте. Сколько стоила бы услуга риелтора при покупке квартиры? Квартиру уже нашли сами, нужно чтобы риелтор удостоверился, что документы верны и сделка прошла удачно, без проблем.

Екатерина: 18.10.2024, рубрика «Сопровождение сделок» Показать ответ

Романцева Людмила Евгеньевна

Специалист по недвижимости +79530066444

Екатерина, добрый день! Благодарим за Ваше обращение. По существу заданного Вами вопроса о возможности оказания услуги сопровождения сделки специалистами нашего агентства недвижимости и стоимости этой услуги сообщаем, что обозначенная выше услуга нами оказывается, стоимость ее - от 20 000 рублей. Фактическая стоимость данной услуги определяется сложностью сделки, необходимостью решения вопросов с рядом организаций таких, как банки, органы опеки, управляющие компании, службой судебных приставов, органами МВД и пр. Услуга по сопровождению сделки включает в себя следующие работы: экспертиза документов по объекту недвижимости, проверка продавца, проверка покупателя, подготовка и заключение предварительного договора купли-продажи, организация передачи и принятия авансового платежа, проверка и подготовка пакета документов к сделке, подготовка договора купли-продажи, организация сделки, организация безопасных расчетов между покупателем и продавцом, организация и проведение сложных расчетов между покупателем и продавцом, проведение сделки. Сопровождение сделки специалистами нашего агентства освобождает клиентов от многочисленных проблемных вопросов, решение которых перед заключением сделки обеспечивает быструю, комфортную, безопасную сделку и гарантирует ее безопасность. Мы - работаем для Вас, помогая решать самые сложные вопросы в процессе подготовки и проведения сделки.Звоните или оставляйте заявку на нашем сайте, и мы обязательно Вам поможем.

18.10.2024, рубрика «Сопровождение сделок»
Любовь

Вопрос: Здравствуйте, подскажите, я нашла квартиру, которая меня устраивает по цене и по состоянию. Я проживаю в г. Полевской. Мне надо проверить документы на квартиру, вы таким занимаетесь? И как будет проходить сделка? У меня есть материнский капитал.

Любовь: 19.04.2024, рубрика «Сопровождение сделок» Показать ответ

Немирова Оксана Владимировна

Специалист по недвижимости +79030819972

Здравствуйте, Любовь. Хорошо, что Вы к нам обратились. Да, конечно, мы Вам поможем проверить и квартиру, и продавца, организуем расчеты, чтобы Вы были спокойны. Материнский капитал сейчас приходит очень быстро. У нас большой опыт в проведении сделок, мы обязательно поможем. Сам процесс проведения сделки зависит от ваших расчетов. При сделке за наличные, плюс материнский капитал, схема сделки такая: сначала мы с Вами встречаемся, организуем встречу с продавцом, и вносим аванс по договору, чтобы зафиксировать условия продажи и покупки. Потом мы проверяем документы, если будут присутствовать риски, что сделка может быть оспорена, мы Вас об этом извещаем, и после этого мы с Вами обсуждаем можем ли мы с Вами и продавец их устранить, или минимизировать, и только в этом случае мы будем выходить на сделку купли-продажи. Если Вас все устроит, то мы далее готовим договор купли-продажи, и организовываем взаиморасчеты и организовываем запись в МФЦ, чтобы сдать документы на регистрацию, можно при желании провести сделку через электронную регистрацию. Если необходимо оформить ипотеку, мы поможем Вам оформить под самые интересные проценты, все условия покупки обсуждаем с Вами. Звоните, договоримся о дальнейших действиях.

19.04.2024, рубрика «Сопровождение сделок»
Анастасия

Вопрос: Хочу купить квартиру. По ней был переход права неделю назад: генеральный директор агентства недвижимости выкупила ее на себя, погасив аккредитивом обременение перед займодавцем-физлицом (у продавца был займ, взятый у физлица под залог квартиры). На остаток средств есть расписка о получении продавцом-должником этих средств наличными от генерального директора-покупателя (наличных, скорее всего, не было, продавец написал расписку от безысходности). Теперь генеральный директор агентства продает эту квартиру о своего имени, предлагает рассчитаться новому покупателю аккредитивом. К кому будут предъявляться претензии прежнего продавца-должника, если предыдущая сделка (между продавцом-должником и гендиректором агентства недвижимости) вдруг будет оспариваться? Я по идее оплатила все безналом, подтверждение оплаты мной квартиры же будет. И какова ваша комиссия за юр. сопровождение такого объекта

Анастасия: 04.12.2023, рубрика «Сопровождение сделок» Показать ответ

Добрый день, Анастасия. С точки зрения чистоты Вашей покупки, конечно, лучше всего произвести взаиморасчеты с продавцом квартиры через аккредитив. Что касается оспаривания предыдущей сделки, то ее оспаривание возможно со стороны предыдущего собственника на основании доказательной базы, что с ним произведен расчет не полностью (например: свидетельские показания, аудио-видео записи и прочие факты). В противном случае, доказать отсутствие передачи денег по расписке доказать практически невозможно, так как существует рукописная расписка продавца. В случае, если все таки сделка предыдущая будет признана недействительной, то Ваша сделка тоже будет признана недействительной и стороны возвращаются в исходное положение. Квартира будет передана по суду предыдущему собственнику (должнику), Ваш продавец будет подавать иск к нему о возврате ему денежной суммы, а Вы, соответственно, иск к своему продавцу. Риск покупки такой квартиры хоть и минимален, но все же есть. Советуем хорошенько все взвесить, чтобы принять решение о покупке.

04.12.2023, рубрика «Сопровождение сделок»
Олег

Вопрос: Нашёл квартиру в объявлении на циан, хочу купить, договорился с продавцом о встрече, что делать дальше после осмотра квартиры? Нужен юрист для сопровождения сделки и стоимость услуг.

Олег: 23.08.2023, рубрика «Сопровождение сделок» Показать ответ

Немирова Оксана Владимировна

Специалист по недвижимости +79030819972

Олег, здравствуйте! Очень хорошо, что Вы к нам обратились. Лучше нам с Вами встретиться до осмотра Вами квартиры, чтобы более детально обсудить, что Вам нужно уточнить у продавца, и оговорить условия нашей работы. Так как в любой квартире могут быть подводные камни: опека, детские доли, свежее наследство, материнский капитал, квартира может находиться в ипотеке и другие нюансы. В связи с этим и стоимость наших услуг зависит от объема работы. Может быть и так, что квартиру, которую Вы хотите купить вообще невозможно приобрести, и мы можем заранее это уточнить у продавца. В нашем агентстве Дом Недвижимости мы организовываем сделку под ключ, что включает проверку документов и все остальные этапы. Звоните, и мы догвооримся о встрече.

23.08.2023, рубрика «Сопровождение сделок»
Елена

Вопрос: Добрый день, мы продаем свою квартиру, в которой использовали материнский капитал и одни из собственников дети, альтернатива подобрана, разрешение органов опеки получено. У нас покупает человек из другого региона с использованием ипотечных средств. Он свою квартиру продал в другом регионе, там тоже были несовершеннолетние дети - собственники. Опека дала разрешение на продажу с условием выделения долей в приобретаемом жилье в другом регионе (то есть нашем, которое он хочет купить). Если он не наделит детей долями в приобретаемом нашем жилье, какие риски для нас, могут признать сделку недействительной или нас это не коснется?

Елена: 31.03.2023, рубрика «Сопровождение сделок» Показать ответ

Немирова Оксана Владимировна

Специалист по недвижимости +79030819972

Добрый день, Елена! К сожалению, более подробно проконсультировать Вас можно только если досконально рассмотреть ситуацию, изучив документы (в том числе приказы опеки и попечительства). Поэтому наша консультация будет носить исключительно общий характер. Вам необходимо прочитать приказ опеки у Вашего покупателя. Стандартно, если законный представитель несовешеннолетнего не предоставит вовремя документы в органы опеки (этим документом является выписка ЕГРН, в которой собственником является ребенок), то, конечно, сделка может быть признана недействительной, если органы опеки и попечительства обратятся в суд. Многие банки на данный момент разрешают наделять детей долями, то есть на это требуется еще и согласие банка, который выдает ипотеку Вашему покупателю. Также сделки с несовершеннолетними сопровождают нотариусы, которые тоже берут на себя обязательство проконтролировать наделение детей долями. Спасибо, что обратились в нашу компанию. если Вам нужна будет помощь в сопровождении и организации сделки, пишите. Обязательно поможем.

31.03.2023, рубрика «Сопровождение сделок»
Анжела

Вопрос: Здравствуйте, подскажите, нужно ли риэлтору соглашение в долевой сделке или можно его написать позже, когда уже найдется покупатель?

Анжела: 06.05.2022, рубрика «Сопровождение сделок» Показать ответ

Добрый день, Анжела. К сожалению, не совсем понятен вопрос, поэтому приносим свои извинения, если ответ будет не корректным. Но Вы всегда сможете связаться с нами по телефону и в ходе живого диалога мы сможем более правильно и профессионально Вас проконсультировать. Итак. В данном случае, решать Вам, в какой момент Вы хотите начать сотрудничество с риэлтором: сразу или после того, как найдётся покупатель. Если поиском покупателя будет заниматься риэлтор, то скорее всего он захочет заключить соглашение сразу. Если же Вы будете заниматься поиском самостоятельно, то риэлтора Вы можете подключить уже на этапе оформления сделки и заключить соглашение в этот момент. Законодательством в таком случае взаимоотношения между риэлтором и клиентом не регулируются. Всё на усмотрение сторон. Если Вам необходимо продать квартиру в Екатеринбурге, то обращайтесь. Поможем обязательно. На нашем сайте Вы можете выбрать любого понравившегося Вам специалиста, связаться с ним лично и обсудить детали сотрудничества. Желаем удачи!

06.05.2022, рубрика «Сопровождение сделок»
Михаил

Вопрос: Здравствуйте, планирую приобрести 2 комнаты в доме Луганская, 23. Комнаты приватизированы. Дом 1959 года постройки, не является аварийным. По телефону в администрации Екатеринбурга мне сказали, что земля передана застройщику. Обязан ли застройщик в случае сноса дома предоставить мне равноценное жильё, если я сейчас приобрету там жилплощадь?

Михаил: 25.02.2021, рубрика «Сопровождение сделок» Показать ответ

Уважаемый Михаил! Для начала нужно выяснить такой вопрос: наложен ли запрет на реализацию данного имущества. Так как данный запрет не позволит Вам зарегистрировать переход права. А по поводу того, обязан ли застройщик предоставить Вам равноценное жилье при сносе, вопрос неоднозначный. Чаще всего застройщики предоставляют продавцу выкупную стоимость недвижимости, равную рыночной. Обращайтесь, поможем сопроводить сделку.

25.02.2021, рубрика «Сопровождение сделок»

Показать все вопросы

Баранов Дмитрий Владимирович

Баранов Дмитрий Владимирович

Агент по недвижимости +79040805961

Портфолио:

Портфолио по продаже апартаментов в ЖК Олимп

31.01.2025, рубрика «Сопровождение сделок» Показать полностью
Полозова Светлана Владимировна

Портфолио:

Портфолио по обмену комнаты на квартиру

12.09.2022, рубрика «Сопровождение сделок» Показать полностью
Полозова Светлана Владимировна

Портфолио:

Покупка квартиры студии

22.04.2021, рубрика «Сопровождение сделок» Показать полностью

Показать все портфолио

Офис, 81 м2, 1/15 эт.
Обмен
Ипотека
Рассрочка
Офис, 81 м2, 1/15 эт.
Екатеринбург, Солнечный
ул. Чемпионов
23.95 млн ₽
295 679 ₽/м2
105 443 ₽/мес
Коммерческая недвижимость, 68 м2, 1/9 эт.
Обмен
Ипотека
Рассрочка
Коммерческая недвижимость, 68 м2, 1/9 эт.
Екатеринбург, Академический
ул. Академика Ландау
19.15 млн ₽
281 617 ₽/м2
84 310 ₽/мес
Коммерческая недвижимость, 52 м2, 1/9 эт.
Обмен
Ипотека
Коммерческая недвижимость, 52 м2, 1/9 эт.
Екатеринбург, Академичсекий
ул. Академика Ландау
12.24 млн ₽
235 384 ₽/м2
53 888 ₽/мес
Коммерческая недвижимость, 95 м2, 1/19 эт.
Обмен
Ипотека
Рассрочка
Коммерческая недвижимость, 95 м2, 1/19 эт.
Екатеринбург, Втузгородок
ул. Ботаническая
25.00 млн ₽
263 157 ₽/м2
110 065 ₽/мес
Коммерческая недвижимость, 93 м2, 1/25 эт.
Обмен
Ипотека
Рассрочка
Скидка
Коммерческая недвижимость, 93 м2, 1/25 эт.
Екатеринбург, Академический
ул. Академика Ландау
26.07 млн ₽
280 301 ₽/м2
114 767 ₽/мес
Коммерческая недвижимость, 80 м2, 1/13 эт.
Обмен
Ипотека
Рассрочка
Скидка
Коммерческая недвижимость, 80 м2, 1/13 эт.
Екатеринбург, Академический
ул. Академика Ландау
22.46 млн ₽
280 700 ₽/м2
98 865 ₽/мес
Коммерческая недвижимость, 72 м2, 1/25 эт.
Обмен
Ипотека
Рассрочка
Скидка
Коммерческая недвижимость, 72 м2, 1/25 эт.
Екатеринбург, Академический
ул. Академика Ландау
21.45 млн ₽
297 916 ₽/м2
94 436 ₽/мес
Коммерческая недвижимость, 83 м2, 1/26 эт.
Обмен
Ипотека
Рассрочка
Скидка
Коммерческая недвижимость, 83 м2, 1/26 эт.
Екатеринбург, Новая Сортировка
ул. Пехотинцев
20.83 млн ₽
250 903 ₽/м2
91 684 ₽/мес
Коммерческая недвижимость, 74 м2, 1/15 эт.
Обмен
Ипотека
Рассрочка
Коммерческая недвижимость, 74 м2, 1/15 эт.
Екатеринбург, Солнечный
ул. Чемпионов
21.85 млн ₽
295 306 ₽/м2
96 209 ₽/мес
Коммерческая недвижимость, 81 м2, 1/15 эт.
Обмен
Ипотека
Рассрочка
Коммерческая недвижимость, 81 м2, 1/15 эт.
Екатеринбург, ЖК Солнечный
ул. Чемпионов
23.92 млн ₽
295 271 ₽/м2
105 297 ₽/мес
Коммерческая недвижимость, 83 м2, 1/15 эт.
Обмен
Ипотека
Рассрочка
Коммерческая недвижимость, 83 м2, 1/15 эт.
Екатеринбург, Солнечный
ул. Чемпионов
24.18 млн ₽
291 323 ₽/м2
106 455 ₽/мес
Доля в 2-к. квартире, 44 м2, 2/5 эт.
Ипотека
Рассрочка
Скидка
Доля в 2-к. квартире, 44 м2, 2/5 эт.
Екатеринбург, Юго-Западный
ул. Белореченская, 17 корп.4
1.85 млн ₽
42 045 ₽/м2
8 145 ₽/мес
Коммерческая недвижимость, 707 м2, 1/28 эт.
Обмен
Ипотека
Рассрочка
Коммерческая недвижимость, 707 м2, 1/28 эт.
Екатеринбург, ЖБИ
ул. Высоцкого, 5
53.00 млн ₽
74 964 ₽/м2
233 339 ₽/мес
Коммерческая недвижимость, 83 м2, 1/32 эт.
Обмен
Ипотека
Рассрочка
Коммерческая недвижимость, 83 м2, 1/32 эт.
Екатеринбург, Уралмаш
ул. Калинина 79
11.20 млн ₽
134 939 ₽/м2
49 309 ₽/мес
Коммерческая недвижимость, 104 м2, 1/17 эт.
Обмен
Ипотека
Рассрочка
Коммерческая недвижимость, 104 м2, 1/17 эт.
Екатеринбург, УНЦ
ул. Краснолесья
16.15 млн ₽
155 288 ₽/м2
71 102 ₽/мес

Показать все объекты