ДОМ НЕДВИЖИМОСТИ
НЕДВИЖИМОСТЬ ЕКАТЕРИНБУРГА
НАЗАД К СПИСКУ

Главная  /  

Недвижимость  /  

Новостройки Екатеринбурга  /  

Четырехкомнатные квартиры  /  

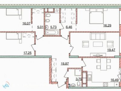
Продажа 4-комнатной квартиры ЖК Макаровский

Подбор, покупка, продажа, обмен квартир. Бесплатные консультации по недвижимости. ЗАДАТЬ ВОПРОС ПОЗВОНИТЬ

Подбор, покупка, продажа, обмен квартир. Бесплатные консультации по недвижимости. ЗАДАТЬ ВОПРОС

Продажа 4-комнатной квартиры ЖК Макаровский

Продажа 4-комнатной квартиры ЖК Макаровский

Екатеринбург, Центр, Челюскинцев, 58

Площадь: Общая: 135 м2  Жилая: 78 м2  Кухня: 15 м2

35 996 080 ₽
ПРЕДЛОЖИТЬ СВОЮ ЦЕНУ
266 637 ₽/м2
 158 477 ₽/мес
ПРЕДЛОЖИТЬ СВОЮ ЦЕНУ
Ипотека
Рассрочка
Полозова Светлана Владимировна
Агент объекта

Полозова Светлана Владимировна

+79086315339

Детали: 

Кол-во комнат продается: 4
Кол-во комнат в квартире:
Этаж: 10
Этажность дома: 20
Материал дома: Монолит
Тип квартиры: С/П
Санузел: Два
Лоджия: Три
Автобус: Есть
Маршрутное такси: Да
Ипотека: Да
Документы готовы: Да
Условие продажи: Продажа или обмен

Риэлтор Полозова Светлана Владимировна

Комментарий:

При внесении 100% стоимости квартиры предоставляется индивидуальная скидка. Один из вариантов покупки – обмен на вашу квартиру. 

Помогу вам разобраться в мире новостроек. За одну встречу мы сможем подобрать вам идеальный вариант жилья у надежного застройщика.

Помогу купить, продать квартиру или другую недвижимость безопасно и быстро

Продать квартиру в новостройке купить

Купить 1-комнатную квартиру продать

Продать 2-комнатную квартиру купить

Купить 3-комнатную квартиру продать

Продать 4-комнатную квартиру купить

Ипотека

Ежемесячный платеж

158 477 ₽/мес
ОФОРМИТЬ ЗАКАЗ
Антон

Отзыв: Здравствуйте. Хочу поблагодарить Немирову Оксану, мы с ней работаем не в первый раз, недавно покупал через неё квартиру в новом доме, всё сделали дистанционно. Оксана Владимировна организовала встречу с застройщиком моих дочерей. И она провела всю подготовку и саму сделку дистанционно. Я приехал уже..., когда мне было удобно посмотреть дом. Квартира скоро сдаётся в этом году, она с полной отделкой, я остался очень доволен. Ещё раз спасибо большое, и удачи во всех делах.

Антон: 28.07.2025, рубрика «Новостройки» Показать все
Вячеслав Александрович

Отзыв: Благодарю Светлану за помощь в сделке по дистанционной покупке новостройки в Екатеринбурге. Все четко организовано и проведено на высшем уровне! Даже не пришлось приезжать в город на бронирование и подписание. Классно, что все сейчас можно делать из любой точки страны....

Вячеслав Александрович: 18.06.2025, рубрика «Новостройки» Показать все
Евгений

Отзыв: Покупали со Светланой квартиру в новостройке по семейной ипотеке. Понравилась оперативность подбора варианта, подробные консультации и безупречная организация сделки онлайн. Обязательно будем рекомендовать своим друзьям, если возникнет такая необходимость у них. Благодарим Светлану и Дом Недвижимост...и за качество работы, душевность и индивидуальный подход к клиенту. Остались довольны на все 100%.

Евгений: 22.04.2025, рубрика «Новостройки» Показать все
Татьяна

Отзыв: Хотела поблагодарить Светлану Владимировну за помощь в покупке студии в новостройке по ипотеке в Екатеринбурге. Особо хотелось бы отметить следующее: - во-первых, Светлана всегда была на связи и отвечала на все мои вопросы; - во-вторых, давала чёткие рекомендации как мне действовать и на что ...обращать внимание при выборе; - в-третьих, была рядом со мной на сделке (сделка проходила онлайн прямо в офисе компании Дом Недвижимости, без посещения офиса застройщика и банка). В итоге я счастлива. Уже в 2025 году я перееду в мою первую квартиру! Рекомендую специалиста!

Татьяна: 08.01.2025, рубрика «Новостройки» Показать все
Кирилл

Отзыв: Добрый день! Обратились к Светлане и ее агентству за консультацией и сопровождением сделки по покупке квартиры в новостройке. Спасибо ей огромное. Благодаря ей смогли купить квартиру в замечательном доме в ЖК Лес. Что понравилось: всегда оперативно отвечала на все наши вопросы, ответы давала раскры...тые, полные и достоверные, ничего не скрывала, про каждую новостройку говорила не только плюсы и хвалебные оды, как делали многие риэлторы, с кем мы общались до нее, но и акцентировала наше внимание на тех или иных минусах, помогла определиться какие из них для нас категорически не приемлимы, а какие для нас не являются важными. Особенно хотелось бы отметить не только ее профессионализм, но и личные качества, такие как открытость, понимание, честность и дружелюбие. Спасибо, что помогли сориентироваться в ценах, в районах и условиях покупки по ипотеке, за то, что были с нами от начала и до конца. Побольше бы таких специалистов. Удачи Вам и благодарных клиентов.

Кирилл: 17.06.2024, рубрика «Новостройки» Показать все
Аниса

Отзыв: От семьи Клементьевых хотим выразить огромную благодарность риэлтору Светлане Владимировне за профессионализм, порядочность и доброжелательность. Мы обратились с просьбой о покупке недвижимости в г. Екатеринбург. Сами мы из другого города. На протяжении всего времени Светлана всегда была на связи, п...одобрала вариант, соответствующий нашим требованиям. Оперативно отвечала на все вопросы, возникающие по ходу сделки, согласовывала моменты, удобные для нас. Сделка прошла быстро. Спасибо большое Вам за вашу работу и терпение.

Аниса: 06.12.2023, рубрика «Новостройки» Показать все
Наталья

Отзыв: Лучшего агентства в Екатеринбурге не найти. Мы обратились в компанию из другого города. Нам нашли квартиру в новостройке там, где мы хотели, помогли оформить ипотеку, и ведут сделку до самого конца. Мы очень благодарны Полозовой Светлане Владимировне. Большое спасибо....

Наталья: 27.03.2023, рубрика «Новостройки» Показать все
Никита

Отзыв: Здравствуйте, обратился в Дом Недвижимости к Оксане Владимировне по покупке квартиры в новостройке. Специалист очень компетентный однозначно рекомендую.

Никита: 06.02.2022, рубрика «Новостройки» Показать все
Елена

Отзыв: Спасибо большое компании Дом Недвижимости в лице Светланы Владимировны за то, что помогли подобрать именно ту новостройку, какую мы и хотели. Светлана грамотно и профессионально проконсультировала по всем тонкостям и нюансам покупки строящегося жилья, подсказала, на что обратить внимание при анализе... планировки, взяла на себя все переговоры с застройщиком по подготовке документов, а мы просто пришли и все подписали. Ни сколько не пожалели, что обратились именно к Вам. Удачи и побольше благодарных клиентов.

Елена: 10.11.2021, рубрика «Новостройки» Показать все
Марина

Отзыв: Хочу выразить благодарность лучшему специалисту (на мой взгляд, конечно) Светлане Владимировне. Она помогла мне купить квартиру в новостройке по ипотеке. Конечно, было много сомнений и страхов. Но, стоило мне только довериться, и все встало на свои места. Я проживаю в другом городе, рынок новостроек... Екатеринбурга знаю плохо, она подсказала мне всю информацию по интересующим меня объектам, сориентировала по местоположению, самому застройщику, плюсам и минусам каждого варианта. Конечно, когда ничего не понимаешь в сделках с недвижимостью, самое главное, это положиться на своего риэлтора, даже, если сначала тебе кажется, что он делает что-то не так. Главное, задавать вопросы. Сделку она организовала дистанционно, мне не пришлось ехать для подписания документов в Екатеринбург, что было для меня очень удобно, т.к. очень сложно отпроситься с работы. Вообщем, что хочу сказать, не бойтесь, доверяйте, и получите результат обязательно! Рекомендую ее и компанию АН Дом Недвижимости обязательно всем знакомым из своего города, кто решит покупать недвижимость в Екатеринбурге!

Марина: 03.09.2020, рубрика «Новостройки» Показать все
Виталий Петрович

Отзыв: Выражаем огромную благодарность агентству "Дом Недвижимости", а именно Светлане Владимировне за проделанную большую работу в покупке очередной квартиры. Повторно обратившись к Светлане Владимировне, отличному специалисту, мы приобрели квартиру именно в том месте, где и хотели. Время на покупку кварт...иры у нас было ограниченно и благодаря Светлане Владимировне все было сделано своевременно и в срок. Мы остались очень довольны. Спасибо огромное!

Виталий Петрович: 23.01.2019, рубрика «Новостройки» Показать все
Наталья М.

Отзыв: Добрый день! Хочу поблагодарить АН Дом Недвижимости за помощь в выборе 1-комнатной квартиры в новостройке для дочери. Наше сотрудничество началось с того, что агент подобрала банк с минимальной процентной ставкой (заявки были поданы в 7 банков). Получив положительное решение от банка на 3 дня приех...ала в Екатеринбург и они организовали экскурсию по новостройкам, где квартиры сдаются с ремонтом под ключ. Свой выбор остановили на Nova парк от надежного застройщика. Агент не только организовала и провела сделку, но и контролировала процесс регистрации и расчеты между банком и застройщиком, т.к. я проживаю в другом городе и смогла приехать только на один день на сделку. Благодарю за заботу! Наталья М.

Наталья М.: 31.12.2018, рубрика «Новостройки» Показать все
Екатерина

Отзыв: Мы обратились в агентство недвижимости Дом Недвижимости за помощью в покупке квартиры в новостройке. Очень благодарны - это профессионалы своего дела. Они не просто подобрали для нас квартиру мечты, но и помогли оформить все документы правильно, получили несколько для нас положительных решений от ба...нков на ипотеку, а нам оставалось только выбрать лучшее и приехать подписать документы. Сделка прошла успешно и главное без лишних хлопот, что для нас очень важно, так как сами мы из другого города. Успехов, процветания и новых клиентов! Екатерина, Денис М.

Екатерина: 28.10.2018, рубрика «Новостройки» Показать все
Сергей и Анастасия

Отзыв: Хотим выразить огромную благодарность Светлане Владимировне! Решили купить новостройку в ипотеку и по совету знакомых мы обратились за профессиональной помощью к Светлане Владимировне! Весь рабочий процесс, оформление документов, заключение сделки прошёл быстро и легко. Если в будущем возникнет необ...ходимость в помощи риелтора, то мы без сомнений обратимся именно к ней в компанию Дом Недвижимости!

Сергей и Анастасия: 20.09.2018, рубрика «Новостройки» Показать все
Алексей

Отзыв: "Хочется от всей души поблагодарить Дом Недвижимости за оказанную помощь в покупке однокомнатной квартиры! Благодаря грамотному подбору банка, была одобрена ипотека, хотя стаж на последнем месте работы был всего 4 месяца. Квартиру выбрали в новом доме с ремонтом в подарок. Ремонт уже заканчивается, ...готовлюсь к переезду! Здоровья, новых клиентов, и исполнения желаний! С уважением, Филипьев Алексей."

Алексей: 21.02.2018, рубрика «Новостройки» Показать все

Показать все отзывы

Константин

Вопрос: Здравствуйте. Друг сказал, что если покупать новостройку через агентство, то услуги будут бесплатными. Это правда? Мне нужно купить трехкомнатную квартиру в Екатеринбурге, желательно с террасой и без отделки. Ее я сделаю сам. Сможете подобрать такой вариант?

Константин: 24.06.2025, рубрика «Новостройки» Показать ответ

Здравствуйте, Константин. Да, действительно, если Вы выбираете квартиру у нашего партнера-застройщика, то все услуги риэлтора по оформлению сделки оплачивает он: от поиска и бронирования, до сдачи документов на регистрацию. Важным условием при этом со стороны всех застройщиков является то, что все контакты с застройщиком (звонки, просмотры шоу-румов, заявки, посещение офиса застройщика, сделка и т.д.) производятся либо лично Вашим специалистом, либо Вами совместно с ним. Поэтому, мы всегда рекомендуем нашим клиентам даже если Вам интересен конкретный комплекс, для начала связаться с нашими специалистами, все обсудить, задать интересующие вопросы, а уже дальше вместе с ним идти к сделке. И, да, самое главное. На цену квартиры это никоим образом не влияет. Т.е. цена будет такой же (а в некоторых случаях, даже дешевле, т.к. у нас есть согласованные персональные скидки у некоторых партнеров), как у застройщика. Поэтому, сотрудничество с агентством при покупке новостройки не является для клиента финансово затратным. Наоборот, заказчик получает не только саму квартиру, но и качественно организованную и проведенную сделку, без рисков и нервов. Что касается Вашего второго вопроса, то квартиры с террасами - это очень популярный тип недвижимости, подобрать который мы постараемся обязательно с учетом Ваших интересов. Для того, чтобы мы смогли выбрать Вам объекты, рекомендуем связаться с любым из агентов нашей компании. Он уточнит детали запроса и отправит Вам подборку вариантов на любой мессенджер. Пишите или звоните. Обязательно поможем.

24.06.2025, рубрика «Новостройки»
Елена

Вопрос: Добрый день! Беспокоит Вас Елена. Подскажите, пожалуйста, возможна ли покупка 2-х комн. квартиры в новостройке в Екатеринбурге при условии небольшого первоначального взноса?

Елена: 27.05.2025, рубрика «Новостройки» Показать ответ

Романцева Людмила Евгеньевна

Специалист по недвижимости +79530066444

Елена, добрый день! Благодарим Вас за обращение в наше агентство «Дом Недвижимости». В соответствии с Вашим запросом информируем Вас, что в настоящее время в городе Екатеринбурге идет активный процесс жилищной застройки, как на уровне начала строительства, так и на уровне сдачи квартир как в предчистовой отделке, так и в чистовой. Существует очень много застройщиков, работающих на площадках в разных районах города и предлагающих разные условия покупки квартир, разные цены: кто-то предоставляет рассрочку по оплате, кто-то - субсидии, кто-то - льготы по первоначальному взносу, кто-то предлагает различные акции и т.д., и эти условия постоянно меняются. Поэтому, для положительного решения Вашего вопроса необходимо детально обсудить Вашу ситуацию, Ваш запрос на квартиру, Ваши возможности по внесению первоначального взноса, провести анализ предложений застройщиков в интересующей Вас локации в соответствии с Вашей ситуацией. Практически все застройщики – это наши партнеры, с которыми мы работаем на основании агентских договоров. Это означает, что все услуги нашего агентства недвижимости по поиску квартиры для Вас, взаимодействия с банками, сопровождения сделки, поддержки с момента подписания договора долевого участия или договора купли-продажи до момента подписания акта передачи квартиры от застройщика клиенту, для Вас - бесплатны. При этом мы гарантируем подбор самой качественной квартиры, полностью соответствующей Вашему запросу, предоставление максимальных скидок от застройщика Вам, получение максимальной выгоды для Вас, надежность и безопасность сделки. Все проблемы мы можем обсудить, а также разработать стратегию решения вопроса по покупке квартиры в новостройке с небольшим первоначальным взносом при встрече в нашем офисе в удобное для Вас время. Мы находимся в центре города. Будем благодарны, если Вы предварительно сообщите нам о своем визите. Всегда рады видеть Вас в офисе нашего агентства. Мы работаем для Вас, мы работаем ради Вас!

27.05.2025, рубрика «Новостройки»
Антон

Вопрос: Здравствуйте! Подскажите, как определиться с выбором новостройки в Екатеринбурге? Я проживаю в другом городе, и хочу купить квартиру в новом доме с отделкой под ключ, сдача в этом году или в начале 2026г. Что посоветуете? Я пока думаю про Уралмаш, Эльмаш.

Антон: 21.02.2025, рубрика «Новостройки» Показать ответ

Немирова Оксана Владимировна

Специалист по недвижимости +79030819972

Здравствуйте, Антон. Да, Вы правы, сейчас много новых проектов от застройщиков, в разных районах и есть те, которые сдаются в конце 2025г – начало 2026г. Здесь есть нюансы: многие объекты сдаются под чистовую отделку, так как застройщик экономит на отделке, считая, что покупатели все переделывают на свой вкус. Есть несколько проектов, которые с отделкой и их не так много, чтобы порекомендовать Вам определенный ЖК, нужно знать Ваш бюджет и Ваши предпочтения по метражу. Могу сказать, что обращаясь к нам, Вы получите рассылку нескольких ЖК, с пулом квартир по ценам от застройщика (в связи с тем, что комиссию агента оплачивает застройщик, Вы нам ничего не платите). Более того, застройщики часто присылают нам интересные варианты – это квартира недели – а именно скидка на квартиру 300 000 – 500 000 рублей, действует всего 1 неделю, и поручая нам найти Вам квартиру мечты, Вы также получаете возможность сэкономить. Если Вам нужно оформить ипотеку, под новостройку, мы также имеем доступ ко всем предложениям банков и скидкам, и рассрочкам от застройщиков. То есть, Вы получите полный комплекс услуг по покупке квартиры и также мы поможем Вам провести сделку дистанционно, если нет возможности приехать на подписание документов. Звоните, пишите. Всегда рады помочь.

21.02.2025, рубрика «Новостройки»
Азат

Вопрос: Добрый день. Хочу купить квартиру в новостройке без первоначального взноса, так как у меня пока квартира не продана моя, а программа скоро закончится?

Азат: 13.05.2024, рубрика «Новостройки» Показать ответ

Добрый день, Азат. Есть несколько вариантов решения Вашего вопроса: Первый способ. Возможно воспользоваться условиями покупки по траншевой ипотеке. В этом случае необходимо узнать у застройщика - работает ли он по такой схеме. Суть этой ипотеки в двух словах: Вы покупате квартиру сейчас и сразу, не продав еще свое жилье. На этапе строительства у Вас минимальные платежи, а после сдачи дома - стандартные. Но надо уложиться с продажей квартиры до сдачи дома. Поэтому мы всегда рекомендуем рассматривать вариант такой ипотеки в том случае, если сдача планируется не ранее, чем через полгода. Второй способ - сдать свою квартиру в трейд-ин застройщику. В таком случае, он будет выкупать у Вас квартиру по цене ниже, чем на рынке недвижимости на 20-30%, но зато Вы продолжаете проживать в квартире до сдачи дома. И третий способ - обратиться в агентство недвижимости: мы и продать сможем квартиру дороже и купить именно в те сроки, которые Вас интересуют, либо подыскать программу у партнера-застройщика, где можно купить без первоначального взноса. Звоните. Рады будем помочь.

13.05.2024, рубрика «Новостройки»
Ольга

Вопрос: Добрый день. Забронировала квартиру у застройщика, согласовали все с банком. Назначен день сделки. Увидела у застройщика, что появилась квартира дешевле, чем я покупаю. Могу я поменять квартиру?

Ольга: 04.03.2024, рубрика «Новостройки» Показать ответ

Романцева Людмила Евгеньевна

Специалист по недвижимости +79530066444

Ольга, добрый день! Благодарим за обращение в наше агентство недвижимости. По существу заданного Вами вопроса о возможности замены забронированной квартиры в новостройке на соседнюю аналогичную выбранной, если банком уже назначен день сделки, сообщаем следующее: до проведения сделки можно произвести замену выбранной квартиры на другую квартиру даже в том случае, если банком назначен день сделки. Для этого необходимо обратиться к Вашему застройщику, заявив о том, что хотите выбрать другую квартиру. Если Вы хотите произвести замену выбранной квартиры на аналогичную соседнюю квартиру, надо четко понимать, по какой причине Вы хотите эту замену сделать. Если соседняя квартира, аналогичная выбранной, стоит дешевле, то необходимо разобраться с застройщиком, какие параметры повлияли на уменьшение стоимости данной квартиры. Очень часто снижение стоимости квартиры вызвано причинами, которые снижают качество проживания в квартире: вид из окна, строительство нового дома в перспективе, и пр., поэтому, все эти моменты неоходимо знать, чтобы выбранная квартира приносила Вам радость. В том случае, если Вы все же решитесь на замену выбранной квартиры, бронируете ее у застройщика, сообщаете об этом банк, который обязательно проведет процедуру одобрения новой квартиры, и назначит новую дату сделки. Всегда рады помочь Вам в решении всех вопросов, связанных с недвижимостью, качественно, оперативно и профессионально решая их.

04.03.2024, рубрика «Новостройки»
Владимир

Вопрос: Добрый день! Беспокоит Вас Владимир. Наша семья, имеющая двух несовершеннолетних детей, планирует в 2024 году покупку новой квартиры в городе Екатеринбурге. Можем ли мы воспользоваться семейной ипотекой и на каких условиях?

Владимир: 03.03.2023, рубрика «Новостройки» Показать ответ

Романцева Людмила Евгеньевна

Специалист по недвижимости +79530066444

Владимир, добрый день! Благодарим Вас за обращение в наше агентство «Дом недвижимости». По сути заданного вопроса информируем Вас, что семейная ипотека – это программа кредитования, рассчитанная на семьи с детьми: с ребенком, родившимся с 1 января 2018 года по 31 декабря 2023 года, либо с усыновленным (удочеренным) ребенком, родившимся в вышеуказанный период, либо ребенком-инвалидом, либо двумя и более несовершеннолетними детьми. Данная программа предполагает, что ее участники берут ипотеку по льготной ставке, которую обеспечивает государство. Программа была запущена в 2018 году, ее завершение планировалось в конце 2023 г. по всей территории России. Однако, в декабре 2022 г. Президент РФ продлил действие семейной ипотеки до 1 июля 2024 года. Ключевая ставка составляет 6% (хотя есть и меньше) для обозначенного Вами региона: г. Екатеринбурга. Первый взнос при кредитовании на условиях семейной ипотеки должен быть не менее 15% от стоимости объекта недвижимости, максимальная сумма кредитования - не более 6 млн для объектов недвижимости в г. Екатеринбурге и Свердловской области, при этом разрешается использование материнского капитала. Однако, необходимо учесть, что данная программа семейного кредитования предполагает покупку жилья на первичном рынке, это квартиры в жилых комплексах, которые только строятся, либо уже введены в эксплуатацию, а также частные дома, при этом продавцом недвижимости может быть только юридическое лицо, деньги также разрешается потратить на строительство дома и покупку земли для строительства. Недвижимость со вторичного рынка не попадает под данную программу. Учитывая все вышеизложенное, а также Вашу ситуацию, можно сделать заключение, что Вашей семье, имеющей двух несовершеннолетних детей, возможно воспользоваться программой кредитования по семейной ипотеки в период с января 2023 г. по июль 2024 г. только на приобретение жилья на первичном рынке, в строящихся жилых комплексах, собственниками квартиры при этом могут быть только юридические лица. Специалисты нашего агентства Дом Недвижимости всегда готовы оказать Вам квалифицированную помощь и облегчить процесс подбора и покупки жилья по программе семейного кредитования, обеспечивая безопасность и качество сделки. Удачных Вам приобретений! Всегда рады видеть Вас в нашем агентстве недвижимости.

03.03.2023, рубрика «Новостройки»
Мария

Вопрос: Здравствуйте! Подскажите, пожалуйста, взяла новостройку по Дальневосточной программе 0,1%. В собственности она у меня уже 2 месяца, сейчас я могу ее продать? В условиях этой программы вроде нет ограничений на продажу квартиры

Мария: 19.07.2022, рубрика «Новостройки» Показать ответ

Добрый день, уважаемая Мария. Да, согласно законодательству, продать квартиру, купленную по Дальневосточной ипотеке вполне возможно. Главное, во-первых, необходимо тщательно изучить условия Вашего кредитного договора, чтобы в нем не было моратория на досрочное погашение, и, во-вторых, чтобы у покупателя были либо наличные, либо ипотека в том же банке, что и у Вас. Желаем удачи.

19.07.2022, рубрика «Новостройки»
Юля

Вопрос: Здравствуйте. Хотим для сына купить квартиру в новом доме в г. Верхняя Пышма. Там есть несколько интересных нам новостроек. Подскажите, действительно ли, подбор квартиры в новом доме будет бесплатно? И помогаете ли вы с ипотекой. И что входит в вашу услугу?

Юля: 16.03.2022, рубрика «Новостройки» Показать ответ

Немирова Оксана Владимировна

Специалист по недвижимости +79030819972

Здравствуйте Юлия. Да конечно мы помогаем купить квартиру в новых домах по ценам от застройщика. И эта услуга для вас будет бесплатной, так как комиссию оплачивает застройщик. И помощь в ипотеке также окажем. Это для вас сделка под ключ. То есть наш специалист присутствует на всех этапах сделки. Сначала мы бронируем квартиру, и далее подается заявка на ипотеку в несколько разных банков, чтобы вы в дальнейшем могли выбрать наиболее интересную ставку и ежемесячный платеж. И далее согласовав с вами все условия, убеждаемся, что вам подходит квартира, так как можно выбирать квартиру исходя из ваших возможностей. Далее наш специалист по недвижимости согласовывает все нюансы с застройщиком, и занимается подготовкой всех документов для одобрения ипотеки на выбранную квартиру. Когда квартира одобрена банком, агент организует сделку в один день. И после подписания всех договоров, специалист участвует в получении готовых документов Покупателем. И мы все время с вами на связи, решим любые вопросы оперативно и максимально выгодно для вас! Звоните

16.03.2022, рубрика «Новостройки»
Иван

Вопрос: Здравствуйте! Подскажите пожалуйста, сейчас лучше купить квартиру в новостройке уже в свежесданном доме или в строящемся? Вопрос возник, потому как некоторые варианты стоят одинаково, хотя предложение в готовом объекте должно стоить дороже, в связи с чем это может быть?

Иван: 12.10.2021, рубрика «Новостройки» Показать ответ

Добрый день, Иван! Порою, действительно, если посмотреть на цены в строящихся домах и в уже только что сданных, можно увидеть картину, что цены практически одинаковые. Но это только на первый взгляд. На самом деле, это совершенно не так. Во-первых, это может быть просто рекламный ход застройщика для привлечения будущего покупателя. А во-вторых, такое может получиться из-за того, что дома находятся в разных ценовых поясах. Более дорогие дома, даже несмотря на то, что они еще только строятся, как правило, расположены близко к центру, имеют развитую инфраструктуру, интересную "начинку" самого комплекса и т.д. Поэтому, говорить о каком-то "перекосе" цен не совсем правильно. Если Вы оставите заявку на нашем сайте и напишите названия жилых комплексов, которые Вас заинтересовали, то мы сможем более детально Вас проконсультировать и сориентируем в плюсах и минусах каждого объекта.

12.10.2021, рубрика «Новостройки»
Евгения

Вопрос: Добрый день! У меня вопрос: могу ли я дистанционно купить новостройку в Екатеринбурге с Вашей помощью?

Евгения: 16.09.2021, рубрика «Новостройки» Показать ответ

Уважаемая Евгения! Конечно, на сегодняшний день практически все застройщики Екатеринбурга наладили систему дистанционных продаж недвижимости. И мы, конечно, сможем помочь Вам не только организовать процесс покупки, но так же можем помочь в выборе из всего многообразия представленных на рынке Екатеринбурга жилых комплексов, разберем с Вами все достоинства и недостатки каждой понравившейся новостройки, забронируем ее для Вас бесплатно, возьмем на себя все переговорные процессы с застройщиком и организуем подписание договора. Для более подробной консультации нам необходимы от Вас более подробные условия покупки: по ипотеке или за наличные, с использованием сертификатов или в рассрочку, а также Ваши пожелания к самому жилью. Звоните или подавайте заявку на нашем сайте через форму обратной связи и мы обязательно постараемся Вам помочь.

16.09.2021, рубрика «Новостройки»

Показать все вопросы

Немирова Оксана Владимировна

Немирова Оксана Владимировна

Специалист по недвижимости +79030819972

Портфолио:

История покупки квартиры в новостройке

05.04.2022, рубрика «Новостройки» Показать полностью

Показать все портфолио

Квартира-студия, 29 м2, 6/26 эт.
Обмен
Ипотека
Рассрочка
Квартира-студия, 29 м2, 6/26 эт.
Екатеринбург, Эльмаш
ул. Бабушкина
5.70 млн ₽
196 551 ₽/м2
25 095 ₽/мес
Речной квартал, 2-комнатная квартира, 61 м2, 11/26 эт.
Обмен
Ипотека
Речной квартал, 2-комнатная квартира, 61 м2, 11/26 эт.
Екатеринбург, Академический
ул. Академика Парина
8.00 млн ₽
131 147 ₽/м2
35 221 ₽/мес
Авангард 3.0, 2-комнатная квартира, 61 м2, 2/26 эт.
Обмен
Ипотека
Рассрочка
Авангард 3.0, 2-комнатная квартира, 61 м2, 2/26 эт.
Екатеринбург, Пионерский
ул. Раевского
8.75 млн ₽
143 442 ₽/м2
38 523 ₽/мес
Атлас Ривер, 3-комнатная квартира, 74 м2, 7/25 эт.
Обмен
Ипотека
Рассрочка
Атлас Ривер, 3-комнатная квартира, 74 м2, 7/25 эт.
Екатеринбург, Уктус
ул. Щербакова
9.33 млн ₽
126 020 ₽/м2
41 057 ₽/мес
Атлас Ривер, 2-комнатная квартира, 54 м2, 2/25 эт.
Обмен
Ипотека
Рассрочка
Атлас Ривер, 2-комнатная квартира, 54 м2, 2/25 эт.
Екатеринбург, Уктус
ул. Щербакова
6.54 млн ₽
121 079 ₽/м2
28 786 ₽/мес
Атлас Ривер, 1-комнатная квартира, 34 м2, 9/25 эт.
Обмен
Ипотека
Рассрочка
Атлас Ривер, 1-комнатная квартира, 34 м2, 9/25 эт.
Екатеринбург, Уктус
ул. Щербакова
4.84 млн ₽
142 394 ₽/м2
21 315 ₽/мес
Голос Заря, 3-комнатная квартира, 95 м2, 10/30 эт.
Обмен
Ипотека
Рассрочка
Голос Заря, 3-комнатная квартира, 95 м2, 10/30 эт.
Екатеринбург, Уралмаш
пр. Космонавтов, 1
15.89 млн ₽
167 292 ₽/м2
69 970 ₽/мес
Голос.Заря, 3-комнатная квартира, 67 м2, 9/30 эт.
Обмен
Ипотека
Рассрочка
Голос.Заря, 3-комнатная квартира, 67 м2, 9/30 эт.
Екатеринбург, Уралмаш
пр. Космонавтов, 1
11.38 млн ₽
169 840 ₽/м2
50 099 ₽/мес
Голос Заря, 2-комнатная квартира, 57 м2, 4/30 эт.
Обмен
Ипотека
Рассрочка
Голос Заря, 2-комнатная квартира, 57 м2, 4/30 эт.
Екатеринбург, Уралмаш
пр. Космонавтов, 1
9.87 млн ₽
173 078 ₽/м2
43 434 ₽/мес
Голос Заря, 2-комнатная квартира, 50 м2, 2/30 эт.
Обмен
Ипотека
Рассрочка
Голос Заря, 2-комнатная квартира, 50 м2, 2/30 эт.
Екатеринбург, Уралмаш
пр. Космонавтов, 1
8.80 млн ₽
175 930 ₽/м2
38 728 ₽/мес
Голос Заря, 1-комнатная квартира, 39 м2, 5/30 эт.
Обмен
Ипотека
Рассрочка
Голос Заря, 1-комнатная квартира, 39 м2, 5/30 эт.
Екатеринбург, Уралмаш
пр. Космонавтов, 1
7.10 млн ₽
182 091 ₽/м2
31 266 ₽/мес
Атлас Юник, 3-комнатная квартира, 75 м2, 8/28 эт.
Обмен
Ипотека
Рассрочка
Атлас Юник, 3-комнатная квартира, 75 м2, 8/28 эт.
Екатеринбург, Вторчермет
ул. Титова
10.72 млн ₽
142 957 ₽/м2
47 204 ₽/мес
Атлас Юник, 2-комнатная квартира, 51 м2, 3/28 эт.
Обмен
Ипотека
Атлас Юник, 2-комнатная квартира, 51 м2, 3/28 эт.
Екатеринбург, Вторчермет
ул. Титова
7.41 млн ₽
145 371 ₽/м2
32 641 ₽/мес
Атлас Юник, 1-комнатная квартира, 34 м2, 13/28 эт.
Обмен
Ипотека
Рассрочка
Атлас Юник, 1-комнатная квартира, 34 м2, 13/28 эт.
Екатеринбург, Вторчермет
ул. Титова
5.89 млн ₽
173 272 ₽/м2
25 937 ₽/мес
Башня Времени, 1-комнатная квартира, 37 м2, 20/25 эт.
Обмен
Ипотека
Башня Времени, 1-комнатная квартира, 37 м2, 20/25 эт.
Екатеринбург, Юго-Западный
ул. Бардина
6.06 млн ₽
163 662 ₽/м2
26 660 ₽/мес

Показать все объекты