ДОМ НЕДВИЖИМОСТИ
НЕДВИЖИМОСТЬ ЕКАТЕРИНБУРГА
НАЗАД К СПИСКУ

Главная  /  

Недвижимость  /  

Вторичная недвижимость  /  

Однокомнатные  /  

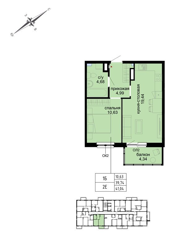
Продажа 1-комнатной квартиры в ЖК Suomen Ranta

Подбор, покупка, продажа, обмен квартир. Бесплатные консультации по недвижимости. ЗАДАТЬ ВОПРОС ПОЗВОНИТЬ

Подбор, покупка, продажа, обмен квартир. Бесплатные консультации по недвижимости. ЗАДАТЬ ВОПРОС

Продажа 1-комнатной квартиры в ЖК Suomen Ranta

Продажа 1-комнатной квартиры в ЖК Suomen Ranta

Екатеринбург, Уктус, ул. Машинная, 31Д

Площадь: Общая: 40 м2  

5 870 000 ₽
ПРЕДЛОЖИТЬ СВОЮ ЦЕНУ
146 750 ₽/м2
 25 843 ₽/мес
ПРЕДЛОЖИТЬ СВОЮ ЦЕНУ
Полозова Светлана Владимировна
Агент объекта

Полозова Светлана Владимировна

+79086315339

1-комнатная квартира

квартиры Спецпроект
Материал дома: Монолит
Год постройки: 2022
Изолированных: 1
Этаж/Этажность: 13/14
Санузел: есть
Балкон/Лоджия: есть
Стеклопакеты: есть
Вид из окон: хороший
Состояние: хорошее
Транспорт: есть
Метро: нет
Условие: продажа/обмен
Ипотека: да

ОСТАВИТЬ ЗАЯВКУ   

Купить 1-комнатную квартиру в ЖК Suomen Ranta

Агентство Дом Недвижимости предлагает купить однокомнатную квартиру в ЖК Suomen Ranta, мкр. Уктус Екатеринбург.

Современный и перспективный жилой комплекс Suomen Ranta («Финский берег») располагается в Октябрьском районе Екатеринбурга, рядом с улицами Луганская и Машинная.

Просторный подземный паркинг на 300 машиномест и многоуровневый надземный паркинг, также рассчитанный на 300 машиномест.

Услуги агентства

Покупка и продажа недвижимостиУслуги агентстваОтзывы

Ипотека

Ежемесячный платеж

25 843 ₽/мес
ОФОРМИТЬ ЗАКАЗ
Евгения

Отзыв: Хочу выразить огромную благодарность Полозовой Светлане Владимировне!!! Продавали квартиру проблемную! Долг по коммуналке, квартира в очень плохом состоянии! Думали, что продавать будем вечность! Светлана Владимировна взялась за неё! Продали в течении месяца!!! Все проблемы с квартирой: приставы, ЖК...Х - все решала сама. Я бы никогда на такое не решилась. Это же какие нервы нужно, камень!!!))) Через месяц после продажи, покупали другую квартиру. Светлана Владимировна, помогла нам и с покупкой!!! Сделка по покупке, тоже проходила нелегко. Но, Светлана Владимировна все это время была с нами, морально, психологически!!! Светлана Владимировна, огромное-преогромное Вам спасибо, за поддержку, за помощь! Вы специалист своего дела, знающий все тонкости и нюансы в этих сложных делах!

Евгения: 02.02.2026, рубрика «Покупка квартиры» Показать все
Надежда

Отзыв: Хотим выразить огромную благодарность специалисту своего дела сотруднику АН Дом Недвижимости Немировой Оксане Владимировне! Мы обратились к ней по рекомендации наших знакомых. Оксана Владимировна помогла нам найти хорошую квартиру, учитывала все наши пожелания (район, этаж, планировка). Она органи...зовала для нас многочисленные просмотры, грамотно проводила переговоры с продавцами, ездила с нами на просмотры каждой квартиры. Процесс покупки прошёл чётко и слаженно, так как она заранее все организовала и согласовала с нами, с продавцом и его риэлтором. Оксана Владимировна всегда была на связи, оперативно отвечала на все наши вопросы и разъясняла нюансы, которые были непонятны. Всем, кто задумывается о покупке недвижимости - советуем обращаться к данной компании, а в особенности к Оксане Владимировне. Алексей и Надежда.

Надежда: 25.12.2025, рубрика «Покупка квартиры» Показать все
Ольга Викторовна

Отзыв: Хочу выразить огромную благодарность прекрасному риелтору Оксане Владимировне и агентству Дом Недвижимости. Это чуткий, внимательный, очень вежливый человек. Помогает нам оформить уже вторую сделку – мы подбирали себе квартиру и это очень волнительно. Оксана Владимировна сама договорилась о просмо...трах – мы смотрели по несколько квартир в один день, что было очень удобно для нас, так как мы из другого города. Она сопровождала нас на каждом просмотре квартиры, и давала свои рекомендации по каждой квартире и по торгу тоже, переговорила с продавцом. Квартира попалась со сложными документами. Но благодаря отлаженной работе Оксаны Владимировны, мы не испытали никаких трудностей. Всем советую выбирать этого риелтора. Она справится с любыми трудностями. Большое вам, огромное спасибо Оксана Владимировна!!!!

Ольга Викторовна: 05.12.2025, рубрика «Покупка квартиры» Показать все
Илья Евгеньевич

Отзыв: Хочу поблагодарить заместителя директора Светлану за помощь в покупке квартиры. Долго сомневался, нужно ли обращаться к риэлтору, но после встречи со Светланой все сомнения прошли. И я рад, что не разочаровался. Сделка прошла легко и комфортно для меня. Благодарю еще раз....

Илья Евгеньевич: 03.06.2025, рубрика «Покупка квартиры» Показать все
Елена

Отзыв: Хочу поблагодарить АН Дом Недвижимости и риэлтора - Немирову Оксану. Я покупала квартиру и перед сделкой выяснилось, что одна из продавцов не сможет присутствовать на сделке, так как попала в больницу в другом городе. Оксана нашла выход из этой ситуации, сделку провели онлайн и использовали аккредит...ив. Большое спасибо!

Елена: 03.03.2025, рубрика «Покупка квартиры» Показать все
Ирина

Отзыв: Покупаем со Светланой уже не первую квартиру в Екатеринбурге. Сначала купили два года назад для дочери, когда она поступала в институт. А сейчас решили перебраться сюда и сами из Барнаула. Продали там квартиру и купили здесь. И снова нашим помощником была Светлана. А как же? Она уже "проверенная", к...ак говорится :). Вообщем, остались довольны результатом и в этот раз. Хорошо, что не потеряли ее контакт и что она до сих пор работает риэлтором. Светлана, удачи Вам. Процветания и радости. Спасибо большое за все.

Ирина: 26.02.2025, рубрика «Покупка квартиры» Показать все
Оксана

Отзыв: Наконец-то я нашла время, чтобы оставить свой отзыв о работе Светланы Владимировны. Как раз ей будет подарок к НГ! Летом этого года мы планировали свой переезд из Казахстана в Екатеринбург. Понимали, что покупать квартиру нужно только с агентством. Но вот с каким именно - был большой вопрос. Волнова...лись страшно. Муж посоветовал почитать отзывы в интернете. Выбрали именно Светлану, потому что увидели отзывы наших земляков, которым она уже помогла. И очень рады, что обратились именно к ней. Она всегда была с нами вежлива, пунктуальна и открыта. Очень понравился ее честный подход в работе. Ничего не скрывала. Сразу объяснила, на что следует обращать внимание в первую очередь при выборе квартиры, помогла расставить приоритеты, т.к. бюджет покупки был не очень большой, а запрос огромный. Но в итоге, мы остановились именно на той квартире, которую она посоветовала после осмотра нескольких вариантов. Понравилось, что она аргументированно и спокойно объяснила свою позицию, но при этом не навязывала нам свое мнение. Все документы проверила, подготовила договор купли-продажи, организовала передачу денег после того, как мы уже стали собственниками (именно за это мы волновались больше всего, боялись передать деньги и не получить квартиру). Сейчас, спустя уже полгода проживания в квартире, мы хотим сказать, что выбранная квартира полностью нас устраивает, благодаря Светлане. Рады, что прислушались к ее аргументам. С Наступающим Вас, Светлана, Новым Годом. Пусть все сбудется и сложится, а на пути встречаются только благодарные клиенты и легкие сделки. Агентству только процветания и долгих лет существования на рынке.

Оксана: 27.12.2024, рубрика «Покупка квартиры» Показать все
Татьяна

Отзыв: Выражаю благодарность Оксане Владимировне за подбор и быстрое оформление квартиры в новостройке «Зеленый остров». Хотелось успеть пока не закончилась ипотека с господдержкой. Все успели. Огромное спасибо за грамотно проведенную сделку. Всем рекомендую агентство «Дом Недвижимости»...

Татьяна: 23.06.2024, рубрика «Покупка квартиры» Показать все
Олег

Отзыв: Я решил купить квартиру, и понадобилась помощь квалифицированного юриста. Обратился в Дом Недвижимости, и мне помогла Немирова Оксана Владимировна. Она все сделала как надо. Благодарю. Компанию нашел в интернете. Не знал с чего начать. Агент проявила себя как профессионал. Доверие к агенту возникло ...сразу, после консультации и когда она для меня подготовила предварительный договор, и участвовала во внесении аванса продавцу. Окончание сделки – самое яркое событие. Ценность услуги заключается в добросовестной и квалифицированной работе агента – Оксаны Владимировны. В будущем я бы обратился к агенту. Агента порекомендую друзьям.

Олег: 18.08.2023, рубрика «Покупка квартиры» Показать все
Оксана

Отзыв: В этом году мы приобрели квартиру в Екатеринбурге. Хочу выразить огромное спасибо Романцевой Людмиле. Этот риелтор знает свое дело - работа была так отлично налажена! Просмотры, подборка квартир, проверка документов перед сделкой - все было организовано грамотно и профессионально. Людмила - мастер с...воего дела, ищет квартиру как для себя. Всегда на связи, посоветует с каким домом не будет проблем. Я советую - это очень хороший, порядочный, добросовестный и честный риелтор. Еще раз огромное спасибо Вам и компании Дом Недвижимости.

Оксана: 31.03.2023, рубрика «Покупка квартиры» Показать все
Елена

Отзыв: Прочитала много отзывов и остановилась на агентстве Дом Недвижимости, на звонок ответила Оксана Владимировна Немирова. Мы с мужем решили приобрести квартиру в Екатеринбурге и нам нужна была услуга по сопровождению сделки. Оксана Владимировна очень грамотный специалист, все четко, вовремя делает, в...сегда была рядом и отвечала на наши вопросы в любое время, досконально проверила все документы и контролировала весь процесс подготовки к сделке. Мы с мужем остались очень довольны. Рекомендуем, всем, кто хочет продать или купить недвижимость обращаться к Оксане Владимировне АН Дом Недвижимости.

Елена: 22.02.2023, рубрика «Покупка квартиры» Показать все
Бобоев Саихдон

Отзыв: Я искал 2-х комнатную квартиру в Екатеринбурге в районе ЖБИ, в течении трех месяцев не мог найти походящего варианта. Мне порекомендовали обратиться в АН Дом Недвижимости к специалисту Киселевой Наталье Сергеевне. Она в течении недели нашла квартиру по моему вкусу, квартира мне понравилась и по цене..., Наталья Сергеевна, смогла сторговаться с продавцом на хорошую скидку. Так что, рекомендую АН Дом Недвижимости, обращайтесь, там работают грамотные и честные специалисты.

Бобоев Саихдон: 14.12.2022, рубрика «Покупка квартиры» Показать все
Евгений

Отзыв: Спасибо АН Дом Недвижимости и лично Киселевой Наталье Сергеевне за помощь при покупке квартиры, делали мы это впервые и поэтому очень важно было найти компетентного, честного профессионала в этом нелёгком деле. Оформление сделки прошло быстро и качественно. Спасибо Вам и дальнейших успехов....

Евгений: 18.10.2022, рубрика «Покупка квартиры» Показать все
Шахноза

Отзыв: Хочу поблагодарить Светлану Владимировну за предоставленную услугу в покупке квартиры. Она помогала мне с документами, она замечательный человек.

Шахноза: 07.09.2022, рубрика «Покупка квартиры» Показать все
Ольга

Отзыв: Хочу поблагодарить специалиста АН Дом Недвижимости (ГК Недвижимость Урала) Татьяну Александровну за ответственный подход к своему делу, оперативному решению всех вопросов волнующих обе стороны сделки. Татьяна Александровна профессионал своего дела, всегда на связи, всегда готова помочь. Рекомендую к...ак высококвалифицированного специалиста с которым легко и приятно работать.

Ольга: 01.04.2022, рубрика «Покупка квартиры» Показать все

Показать все отзывы

Надежда

Вопрос: Добрый день, хотим с мужем купить квартиру для дочери в течение месяца, прочитали, что у вас есть услуги по покупке квартиры, чем вы можете нам помочь?

Надежда: 11.01.2026, рубрика «Покупка квартиры» Показать ответ

Немирова Оксана Владимировна

Специалист по недвижимости +79030819972

Добрый день, Надежда! Хорошо, что Вы к нам обратились. Конечно, мы понимаем, что покупка квартиры - это очень ответственный и волнительный процесс, поэтому мы обязательно поможем Вам. Все начинается с первой консультации - где мы с Вами определим, что важно для Вас при покупке квартиры: какие именно критерии поиска для Вас на первом месте: бюджет сделки, сроки покупки, как Вы хотите покупать квартиру - в ипотеку, с сертификатом или за наличные, обсудим возможные варианты квартир - то есть преимущества квартиры в новом доме или во вторичном жилье. Если Вы хотите купить квартиру в новом доме - то подбор квартиры для Вас будет абсолютно бесплатно по ценам от застройщика. Так же у нас есть очень интересные варианты от застройщиков - по квартирам недели, со скидкой на одну неделю, так как мы постоянно получаем новые эксклюзивные предложения от застройщиков, которые не всегда Вы можете посмотреть в интернете, все предложения по скидкам и рассрочкам на конкретные объекты также мы можем обсудить на месте, и сразу Выбрать новостройку из разных ЖК, предварительно посмотрев презентацию объекта (этаж, метраж, отделку, расположение на этаже, по сторонам света), оценить инвестиционную составляющую, и, конечно, забронировать квартиру прямо у нас в офисе. Далее можем организовать экскурсию на выбранный объект. И риэлтор при покупке новостройки может быть полезен тем, что оперативно может предложить разные интересные варианты, проверить застройщика и рассказать о преимуществах каждого ЖК. Помогает в решении финансового вопроса, то есть разрабатывает финансовую стратегию покупки: рассрочки, сертификаты, семейная ипотека, обычная ипотека, расчёт наличными, что выгоднее для Вас. При покупке квартиры на вторичном рынке - проведение сделки под ключ включает в себя: подбор вариантов квартир по Вашим параметрам, присутствие на просмотрах, чтобы детально давать рекомендации и аргументировать торг в Вашу пользу, грамотное внесение аванса, соблюдая Ваши интересы, юридическую проверку документов и продавца, организацию самой сделки купли-продажи и взаиморасчетов с участием банка, подготовку документов для сделки, включая договор купли-продажи, и в дальнейшем получение документов после регистрации в Росреестре и грамотную передачу квартиры по Акту. Мы обязательно поможем Вам в решении Ваших вопросов, чтобы Вам было спокойно и удобно, всё организуем и Вам нужно будет только прибыть на сделку. Звоните, договоримся о встрече (можем приехать к Вам, если у вас маленький ребёнок или Вам неудобно ехать в офис).

11.01.2026, рубрика «Покупка квартиры»
Инга Сергеевна

Вопрос: Здравствуйте. Подскажите, пожалуйста. У меня есть 1/3 доля в трехкомнатной квартире. Вместе со мной собственниками являются моя мама и сестра-инвалид (у нее диагноз — шизофрения). Как нам продать эту квартиру?

Инга Сергеевна: 15.12.2025, рубрика «Покупка квартиры» Показать ответ

Хворова Татьяна Леопольдовна

Агент по недвижимости +79039109880

Здравствуйте. Продать квартиру, одним из собственников которой является инвалид, возможно, но при этом необходимо учитывать ряд правил, предусмотренных действующим законодательством. Во-первых. Распоряжение имуществом, находящимся в долевой собственности осуществляется по соглашению всех ее участников в силу статьи 245 ГК РФ. Во-вторых, следующим значимым фактом является возраст Вашей сестры. В соответствии с частью 1 статьи 28 ГК РФ за несовершеннолетних, не достигших 14 лет, сделки с недвижимым имуществом по общему правилу могут совершать от их имени только их родители, усыновители или опекуны. А вот уже несовершеннолетние в возрасте от 14 до 18 лет совершают сделки с недвижимым имуществом сами, но только с письменного согласия своих законных представителей - родителей, усыновителей или попечителей (по правилам статьи 26 ГК РФ). В-третьих. При совершении вышеуказанных сделок необходимо учитывать нормы, закрепленные статьей 29 ГК РФ, которой предусмотрено, что от имени гражданина, признанного  недееспособным, сделки совершает его опекун, учитывая мнение такого гражданина, а при невозможности установления его мнения - с учетом информации о его предпочтениях. При этом необходимо понимать, что гражданин может быть признана недееспособным только судом в порядке, предусмотренном законодательством. Недееспособным может быть признан гражданин, который в следствие психического расстройства не может понимать значения своих действий или руководить ими. Однако при восстановлении способности гражданина, который был признан недееспособным, понимать значение своих действий или руководить ими суд признает его дееспособным. В силу статьи 30 ГК РФ аналогичные правила действуют в отношении лица, который в следствие психического заболевания может быть ограничен судом в дееспособности. В-четвертых. Статьей 54 ГК РФ  закреплено правило, что сделки связанные с распоряжением недвижимым имуществом на условиях опеки, а также сделки по отчуждению недвижимого имущества, принадлежащего несовершеннолетнему гражданину  или гражданину, признанному ограниченно дееспособным, подлежат нотариальному удостоверению. Поэтому, мы всегда рекомендуем клиентам при продаже таких объектов обращаться к опытным профессионалам. Звоните и мы Вам обязательно поможем.

15.12.2025, рубрика «Покупка квартиры»
Ольга Викторовна

Вопрос: Здравствуйте, подскажите, мы сейчас ищем для себя квартиру и одна нам понравилась, но там странная ситуация с документами: то есть хозяйка продаёт квартиру целиком, а по документам - это две комнаты, и в одной собственник - ребёнок, стоит ли покупать такую квартиру? Не будет потом проблем? Как правильно оформить сделку? Мы покупаем за наличные, но расчёты хотим провести через свой банк - ВТБ.

Ольга Викторовна: 09.12.2025, рубрика «Покупка квартиры» Показать ответ

Немирова Оксана Владимировна

Специалист по недвижимости +79030819972

Здравствуйте, Ольга Викторовна. Хорошо, что Вы к нам обратились. Да, конечно, мы Вам поможем проверить и квартиру, и продавца, а также организуем расчеты, чтобы Вы были спокойны. При этом есть разные варианты сотрудничества с нашим агентством: наш специалист может вместе сВами участвовать в подборе квартиры и проведёт сделку под ключ - что включает: подбор вариантов по Вашим параметрам, присутствие на просмотрах, чтобы детально давать рекомендации и аргументировать торг в Вашу пользу, грамотное внесение аванса, соблюдая Ваши интересы, юридическую проверку документов и продавца, организацию самой сделки и взаиморасчетов с участием банка, подготовку документов для сделки, включая договор купли-продажи, и в дальнейшем - получение документов после регистрации в Росреестре и грамотную передачу квартиры по Акту. Второй вариант - это сопровождение сделки под ключ, что включает в себя: грамотное внесение аванса, соблюдая Ваши интересы, юридическую проверку документов и продавца, организацию самой сделки и взаиморасчетов с участием банка, подготовку документов для сделки, включая договор купли-продажи и в дальнейшем - получение документов после регистрации в Росреестре и грамотную передачу квартиры по Акту. (то есть все переговоры до внесения аванса и торг Вы берете на себя). По Вашему вопросу можем сказать, только поверхностно, так как нужно смотреть документы. При покупке квартиры, где документы оформлены по разным комнатам - это два разных объекта с разным кадастровым номером. То есть по сути - это будет проходить как две отдельные сделки, и когда Вы уже становитесь собственником этих двух комнат в двухкомнатной квартире, Вы пишите заявление в Рореестр на объеденение этих комнат в один объект. По организации сделки получается - если в комнате есть собственник ребёнок, эта сделка обязательно проходит через нотариуса. То есть обычно сами расчеты происходят или у нотариуса, или Вы сначала оформляете аккредитив в выбранном Вами банке, а потом обе стороны идут к нотариусу. Но есть нюанс - продавец должен обязательно получить Согласие на продажу от Органов опеки и попечительства своего района. Вторую комнату Вы можете покупать с участием любого банка, где есть электронная регистрация, обычно продавцы хотят, чтобы две эти сделки проходили в один день. И мы помогаем Вам в решении Ваших вопросов, чтобы Вам было спокойно и удобно, всё организуем и Вам нужно будет только прибыть на эти сделки. Звоните, договоримся о дальнейших действиях.

09.12.2025, рубрика «Покупка квартиры»
Марина- матушка и батюшка

Вопрос: Здравствуйте, мы проживаем в съемной квартире в Екатеринбурге, в районе Кольцово. Нам очень нравится этот район. Хотим купить квартиру в этом районе. Подскажите какие минимальные цены? И как быстро можно это сделать?

Марина- матушка и батюшка: 28.08.2025, рубрика «Покупка квартиры» Показать ответ

Немирова Оксана Владимировна

Специалист по недвижимости +79030819972

Здравствуйте, Марина - матушка и батюшка. Да, согласны, Кольцово - это очень удобный район, если Вы работаете там или Вам легко добираться до работы. Понимаем, что именно поэтому Вы хотите приобрести здесь квартиру. По поводу цен можно сказать, что есть разные варианты, начиная от 1.700.000 рублей – это студии на вторичном рынке. Есть и варианты в строящихся домах – это цены от 3.300.000 рублей за студию, 1 квартира – от 4.589.000 рублей, 2х – от 5.709.000. Давайте договоримся на встречу, обязательно подберем для Вас вариант, организем просмотры, лично сопровождим при просмотрах, проверим документы, грамотно организуем сделку и безопасные расчеты. Можем подъехать к Вам, если Вам так будет удобно, или Вы можете приехать к нам в офис, и мы с Вами сразу сможем посмотреть имеющиеся на данный момент варианты. Если Вы ограничены во времени, всегда есть возможность провести сделку дистанционно. Мы имеет большой опыт в проведении подобных сделок, сделаем всё возможное, чтобы Вам помочь в решении Вашего вопроса. При выборе квартиры, всегда важно иметь рядом грамотного специалиста, который сможет отстоять Ваши интересы в любой ситуации. Работаем с любыми районами города Екатеринбурга и пригородом. Всегда рады помочь. Звоните, пишите, мы на связи.

28.08.2025, рубрика «Покупка квартиры»
Вячеслав

Вопрос: Здравствуйте. Пишу вам из Литвы. Хочу переехать на ПМЖ в Екатеринбург. Рассматриваю к покупке 3-х комнатную квартиру в районе 15 млн.руб. Вопросы: какие районы посоветуете для жизни? У нас один ребенок скоро пойдет в институт, а второй учится в школе в средних классах, нужно, чтобы обоим было легко добираться. Хотелось бы, чтобы район был с хорошей инфраструктурой. Не старый дом. Можно даже на этапе строительства. Возможно ли покупка для граждан других стран?

Вячеслав: 18.06.2025, рубрика «Покупка квартиры» Показать ответ

Добрый день, Вячеслав. В России нет ограничений для покупателей из других стран. Вы вполне можете осуществить покупку недвижимости. Другой вопрос, что если Вы захотите ее в будущем продать, то у нерезидентов повышенный налог на продажу. Что касется районов, то я бы посоветовала с хорошей инфраструктурой следующие районы: Автовокзал, Центр, Втузгородок, Пионерский, ВИЗ. Но надо смотреть, какую именно квартиру выбирать, если площадь квартиры будет большая, то, возможно, эти районы уже будут "не по карману". Все надо взвешивать в сравнении. На этапе строительства есть достаточно много интересных вариантов для приобретения. Поэтому, оставьте заявку на сайте, чтобы мы смогли оперативно с Вами связаться и предложить Вам наиболее интересные варианты под Ваш бюджет. Благодарим за вопрос.

18.06.2025, рубрика «Покупка квартиры»
Николай

Вопрос: Здравствуйте. У меня есть небольшие накопления, хотел бы купить не большие апартаменты. Друзья отговаривают, советуют ещё поднакопить и купить однокомнатную квартиру. Посоветуйте, как быть? И в чем разница между квартирой и апартаментами?

Николай: 27.03.2025, рубрика «Покупка квартиры» Показать ответ

Баранов Дмитрий Владимирович

Агент по недвижимости +79040805961

Доброго времени суток, Николай. Во-первых, для того чтобы ответить на Ваш вопрос, Вам самому нужно решить, что Вам нужно и для чего, т.е. определиться с целью покупки. Существуют разные варианты использования помещений, основные из них - это для собственного проживания или проживания близких Вам людей, или коммерческий интерес, то есть сдача этих помещений в аренду. Если Вы собираетесь инвестировать в недвижимость, то не обязательно сразу покупать квартиру. Вы можете купить апартаменты и сдавать их в аренду. Это будет компенсировать Вам расходы по коммунальным платежам и приносить не большой доход. Теперь разберёмся в отличиях между апартаментами и квартирой. Первое, апартаменты - это коммерческая недвижимость, а значит, законы, которые распространяются на жилые помещения, на апартаменты не действуют. В апартаментах Вы не сможете зарегистрироваться по месту жительства, только можно оформить временную регистрацию. В них может не соблюдаться режим «Тишина» и в соседнем помещении может располагаться офис, клуб, бар. Требования СНиП, СП, ГОСТ, которые применяются в строительстве жилых помещений для апартаментов не используются (конструктивные особенности помещений, используемые материалы). Тарифы на коммунальные услуги будут выше примерно на 20%, чем в квартире. Есть ещё ряд особенностей, которые я предлагаю обсудить у нас в офисе. Приходите к нам в агентство Дом Недвижимости или звоните, будем рады Вам помочь.

27.03.2025, рубрика «Покупка квартиры»
Антонина

Вопрос: Здравствуйте. скажите, пожалуйста, сколько по времени занимает сделка по покупке квартиры? Я из другого города и приеду в Екатеринбург для покупки. У меня отпуск 2 недели. Нужно все успеть. Вот и думаю, хватит ли времени?

Антонина: 07.02.2025, рубрика «Покупка квартиры» Показать ответ

Здравствуйте, Антонина. К сожалению, Вы не написали, какую именно Вы хотели бы приобрести недвижимость: на первичном или вторичном рынке Екатеринбурга, а также подобрана ли уже квартира для сделки или ее еще нужно будет найти. Поэтому, вопрос будет не совсем точным и корректным. В любом случае, думаем, что за две недели можно будет попробовать уложиться. Если мы говорим о первичном рынке недвижимости и квартира уже подобрана, то сделка может произойти в течении пары дней. А если на вторичном рынке, то здесь все немного дольше. Если квартира уже выбрана, то подготовка к сделке и сама сделка займет как раз около полутора-двух недель. Если же объект недвижимости еще не подобран, то можно ускорить процесс путем подбора варианта онлайн, а по приезду посмотреть только то, что уже предварительно проверено и одобрено для сделки. Если покупка планируется с ипотекой, то вопрос сроков достаточно непредсказуем, т.к. все зависит от банка. Но в любом случае, мы делаем от себя все возможное, чтобы процесс покупки был именно на условиях нашего клиента. В Вашем случае, главным условием являются сроки. А значит, выбирать квартиру на вторичном рынке в обменных цепочках однозначно будет риском. Антонина. Мы рекомендуем обратиться напрямую к любому из наших специалистов по телефону, который можно найти на сайте или оставить заявку на сайте и мы по телефону сможем оценить всю Вашу ситуацию и сказать более точно все по срокам. Звоните или оставляйте заявку. Обязательно поможем.

07.02.2025, рубрика «Покупка квартиры»
Игорь

Вопрос: Здравствуйте. У меня вопрос. Мы с супругой жители Казахстана. Хотим купить квартиру в Екатеринбурге. Нужна ли нам для этого регистрация. Какие документы нужны? Какой процесс?

Игорь: 01.07.2024, рубрика «Покупка квартиры» Показать ответ

Добрый день, Игорь. К сожалению, не понятно из Вашего сообщения, есть ли у Вас гражданство Российской Федерации... Так как очень часто покупатели имеют двойное гражданство: и Российское, и гражданство другого государства. Если есть, то никаких проблем с покупкой недвижимости не возникнет. Если же у Вас только гражданство Казахстана, то отвечу, что для покупки квартиры регистрация никакая не требуется. Необходимы будут только следующие документы: паспорта, переводы паспортов, а также свидетельство о браке, если квартира будет приобретаться на обоих супругов в общую совместную собственность и перевод этого свидетельства. ВАЖНО: все расчеты с валютными нерезидентами (гражданами других стран), будь-то покупка или продажа, не имеет значения, должны проводиться только в безналичном порядке. Это необходимо учитывать при планировании расчетов по договору купли-продажи. В остальном, что касается вопросов проведения сделки, отличительных особенностей нет не зависимо от гражданства продавца или покупателя. Обращайтесь к опытным профессионалам нашего агентства, так как в любом случае, каждая сделка индивидуальна и всегда могут быть подводные камни и свои нюансы. И лучше всего, если организацией процесса будет заниматься специалист по недвижимости. Звоните или пишите нам на сайте. Обязательно поможем.

01.07.2024, рубрика «Покупка квартиры»
Наталья

Вопрос: Здравствуйте! Какие моменты надо учитывать при покупке квартиры в Екатеринбурге?

Наталья: 23.01.2024, рубрика «Покупка квартиры» Показать ответ

Добрый день, Наталья. Итак, на что следует обратить внимание при покупке: 1. В обременении или в аресте сейчас квартира или нет. И если в аресте или в обременении, то нужно понимать какого это характера. Так как есть вполне решаемые ситуации, а некоторые практически невозможно решить (вернее решить можно, но для покупателя это несёт слишком огромные риски потери собственности); 2. Необходимо при просмотре определить наличие скрытых перепланировок, для того, чтобы избежать штрафов в дальнейшем; 3. Проверить семейное положение продавца. Так как даже если квартира приобретена в браке, а на момент продажи продавец уже в разводе, необходимо всё равно согласие супруга; 4. Проверить на основании какого документа право собственности и возникло и проанализировать возможные риски в сложных ситуациях; 5. Проверить продавца на факт банкротства, так как по законодательству, все сделки банкрота можно оспорить; 6. Так же необходимо проанализировать объект на предмет ликвидности, ведь если он Вам не подойдёт в последствии по каким-либо причинам или возникнет необходимость в его продаже по каким-то сложившимся обстоятельствам, его можно было бы всегда быстро и легко продать. И много чего ещё. Конечно, мы всегда рекомендуем при покупке квартиры обращаться к профессионалам, чтобы рядом был человек, который подскажет, посоветует или отговорит (если вдруг у него будет сомнения в чистоте сделки). Или который поможет сориертироваться во всех плюсах и минусах местоположения, района и инфраструктуры. Звоните нам или оставляйте свою заявку на покупку квартиры с нами прямо на нашем сайте. Обязательно поможем. Даже не сомневайтесь!

23.01.2024, рубрика «Покупка квартиры»
Антонина

Вопрос: Как можно приобрести квартиру после банкротства и через какое время....?

Антонина: 13.04.2023, рубрика «Покупка квартиры» Показать ответ

Романцева Людмила Евгеньевна

Специалист по недвижимости +79530066444

Уважаемая Антонина. В соответствии с нормами законодательства РФ (в частности Закона о банкротстве) после завершения процедуры банкротства в отношении физического лица судом (а именно - после вступления в силу определения арбитражного суда о завершении процедуры банкротства и освобождения от долгов) прямого запрета/ограничений прав лица-банкрота на приобретение какого-либо имущества независимо от его стоимости, нет. Как только процедура банкротства в отношении физического лица завершена, снимаются ограничения и право физического лица распоряжаться собственными средствами и имуществом возвращается. Однако, в законе о банкротстве есть ряд негативных последствий для должника (они указаны в ст.213.30 закона о банкротстве): в течение 3 лет после банкротства нельзя принимать участие в органах управления юридических лиц; в течение 5 лет нельзя вновь пройти через процедуру банкротства; в течение 5 лет Вы обязаны предупреждать новых кредиторов о том, что Вы были признаны несостоятельным (банкротом). Рекомендуется не осуществлять оформление движимого и недвижимого имущества на свое имя в течение года после признания банкротом, поскольку если об этом станет известно кредиторам, то в этом случае у них будет основание для оспаривания результатов процедуры. Даже несмотря на то, что оформляемое имущество не используется по прямому назначению. Кроме того, практически все банки ограничивают возможность ипотечного кредитования на приобретение жилья, вплоть до полного отказа.

13.04.2023, рубрика «Покупка квартиры»

Показать все вопросы

Полозова Светлана Владимировна

Портфолио:

Покупка квартиры-студии у несовершеннолетнего

12.01.2021, рубрика «Покупка квартиры» Показать полностью
Немирова Оксана Владимировна

Немирова Оксана Владимировна

Специалист по недвижимости +79030819972

Портфолио:

Продажа квартиры, и покупка за мат капитал

15.12.2020, рубрика «Покупка квартиры» Показать полностью
Полозова Светлана Владимировна

Портфолио:

Как инвестировать в недвижимость

10.11.2020, рубрика «Покупка квартиры» Показать полностью
Полозова Светлана Владимировна

Портфолио:

Как купить 1-комнатную квартиру за наличные с применением новых технологий: онлайн-показ и онлайн-сделка

27.10.2020, рубрика «Покупка квартиры» Показать полностью
Полозова Светлана Владимировна

Портфолио:

Как подобрать 1-комнатную квартиру в районе Шарташского рынка

13.05.2020, рубрика «Покупка квартиры» Показать полностью
Полозова Светлана Владимировна

Портфолио:

Как купить за наличные 1 комнатную квартиру на Уралмаше

10.11.2019, рубрика «Покупка квартиры» Показать полностью
Полозова Светлана Владимировна

Портфолио:

Как подобрать 2-х комнатную квартиру в Мичуринском

25.09.2019, рубрика «Покупка квартиры» Показать полностью
Полозова Светлана Владимировна

Портфолио:

Как купить 1-комнатную квартиру за наличные с ремонтом

17.01.2019, рубрика «Покупка квартиры» Показать полностью
Немирова Оксана Владимировна

Немирова Оксана Владимировна

Специалист по недвижимости +79030819972

Портфолио:

Как купить квартиру в сжатые сроки за наличные

23.11.2018, рубрика «Покупка квартиры» Показать полностью
Полозова Светлана Владимировна

Портфолио:

Как купить 1-комнатную квартиру по ипотеке со скидкой 5% и ремонтом в подарок

23.11.2018, рубрика «Покупка квартиры» Показать полностью

Показать все портфолио

2-комнатная квартира, 54 м2, 17/25 эт.
Обмен
Ипотека
2-комнатная квартира, 54 м2, 17/25 эт.
Екатеринбург, Ботанический
ул. 8 Марта, 204
11.20 млн ₽
207 407 ₽/м2
49 309 ₽/мес
10-комнатная квартира, 373 м2, 28/28 эт.
Обмен
Ипотека
Рассрочка
10-комнатная квартира, 373 м2, 28/28 эт.
Екатеринбург, Центр
ул. Ленина, 8
130.59 млн ₽
350 093 ₽/м2
574 915 ₽/мес
Основинские кварталы, 1-комнатная квартира, 30 м2, 20/25 эт.
Обмен
Ипотека
Рассрочка
Основинские кварталы, 1-комнатная квартира, 30 м2, 20/25 эт.
Екатеринбург, Пионерский
ул. Учителей
5.80 млн ₽
193 333 ₽/м2
25 535 ₽/мес
Twins, 1-комнатная квартира, 32 м2, 2/25 эт.
Обмен
Ипотека
Рассрочка
Twins, 1-комнатная квартира, 32 м2, 2/25 эт.
Екатеринбург, Эльмаш
пр. Космонавтов
5.89 млн ₽
184 093 ₽/м2
25 936 ₽/мес
Отрадный, 1-комнатная квартира, 35 м2, 24/32 эт.
Обмен
Ипотека
Рассрочка
Отрадный, 1-комнатная квартира, 35 м2, 24/32 эт.
Екатеринбург, ВИЗ
ул. Репина
6.32 млн ₽
180 685 ₽/м2
27 842 ₽/мес
1-комнатная квартира, 27 м2, 1/5 эт.
Обмен
Ипотека
1-комнатная квартира, 27 м2, 1/5 эт.
Екатеринбург, Пионерский
ул. Советская, 15
4.70 млн ₽
174 074 ₽/м2
20 692 ₽/мес
2-комнатная квартира, 60 м2, 3/25 эт.
Обмен
Ипотека
2-комнатная квартира, 60 м2, 3/25 эт.
Екатеринбург, Вокзальный
ул. Стрелочников, 8А
9.03 млн ₽
150 500 ₽/м2
39 756 ₽/мес
NOVA Park, 1-комнатная квартира, 45 м2, 24/25 эт.
Обмен
Ипотека
NOVA Park, 1-комнатная квартира, 45 м2, 24/25 эт.
Екатеринбург, Широкая речка
ул. Хрустальногорская
5.65 млн ₽
125 555 ₽/м2
24 875 ₽/мес
Discovery Residence, Квартира-студия, 30 м2, 24/31 эт.
Обмен
Ипотека
Discovery Residence, Квартира-студия, 30 м2, 24/31 эт.
Екатеринбург, Втузгородок
ул. Гагарина
7.95 млн ₽
265 000 ₽/м2
35 001 ₽/мес
1-комнатная квартира, 40 м2, 13/14 эт.
Обмен
Ипотека
1-комнатная квартира, 40 м2, 13/14 эт.
Екатеринбург, Уктус
ул. Машинная, 31Д
5.87 млн ₽
146 750 ₽/м2
25 843 ₽/мес
1-комнатная квартира, 45 м2, 21/25 эт.
Обмен
Ипотека
1-комнатная квартира, 45 м2, 21/25 эт.
Екатеринбург, Уктус
ул. Щербакова, 146
4.99 млн ₽
110 888 ₽/м2
21 969 ₽/мес
1-комнатная квартира, 52 м2, 6/23 эт.
Обмен
Ипотека
1-комнатная квартира, 52 м2, 6/23 эт.
Екатеринбург, Парковый
ул. Ткачей, 19
8.40 млн ₽
161 538 ₽/м2
36 982 ₽/мес
Клубный дом 19/05, 2-комнатная квартира, 78 м2, 5/16 эт.
Обмен
Ипотека
Клубный дом 19/05, 2-комнатная квартира, 78 м2, 5/16 эт.
Екатеринбург, Центр
ул. Февральской революции - Боевых Дружин
26.28 млн ₽
336 923 ₽/м2
115 701 ₽/мес
19/05, 1-комнатная квартира, 56 м2, 4/16 эт.
Обмен
Ипотека
19/05, 1-комнатная квартира, 56 м2, 4/16 эт.
Екатеринбург, Центр
ул. Февральской революции - Боевых Дружин
23.00 млн ₽
410 714 ₽/м2
101 260 ₽/мес
3-комнатная квартира, 77 м2, 7/25 эт.
Обмен
Ипотека
3-комнатная квартира, 77 м2, 7/25 эт.
Екатеринбург, Уктус
ул. Щербакова, 146
9.40 млн ₽
122 077 ₽/м2
41 385 ₽/мес

Показать все объекты