ДОМ НЕДВИЖИМОСТИ
НЕДВИЖИМОСТЬ ЕКАТЕРИНБУРГА
НАЗАД К СПИСКУ

Главная  /  

Недвижимость  /  

Вторичная недвижимость  /  

Двухкомнатные квартиры  /  

Продажа 2-комнатной квартиры

Подбор, покупка, продажа, обмен квартир. Бесплатные консультации по недвижимости. ЗАДАТЬ ВОПРОС ПОЗВОНИТЬ

Подбор, покупка, продажа, обмен квартир. Бесплатные консультации по недвижимости. ЗАДАТЬ ВОПРОС

Продажа 2-комнатной квартиры

Продажа 2-комнатной квартиры

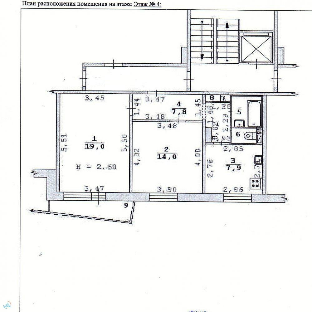
Екатеринбург, Елизавет, ул. Колхозников, 10

Площадь: Общая: 53 м2  Жилая: 33 м2  Кухня: 8 м2

5 120 000 ₽
ПРЕДЛОЖИТЬ СВОЮ ЦЕНУ
96 603 ₽/м2
 22 541 ₽/мес
ПРЕДЛОЖИТЬ СВОЮ ЦЕНУ
Немирова Оксана Владимировна
Агент объекта

Немирова Оксана Владимировна

+79030819972

Детали:

Кол-во комнат продается: 2
Кол-во комнат в квартире: 2
Этаж: 4
Этажность дома: 9
Материал дома: Панель
Тип квартиры: У/П
Санузел: Раздельный
Балкон Есть
Интернет: Есть
Закрытая территория: Нет
Парковка: Есть
Автобус: Есть
Трамвай: Нет
Троллейбус: Нет
Ипотека  
Условие продажи: Обмен

 

Комментарий:

Продаётся светлая, просторная и очень теплая квартира, состоящая из двух раздельных комнат 19,1кв.м. и 14,0 кв.м., кухня – 8 кв.м.! Дом улучшенной планировки, в тихом районе города.
Квартира в хорошем состоянии, ремонт делали для себя: на полу ламинат, стеклопакеты установлены везде, новая плитка в ванной, новая сантехника. 

Помогу купить, продать квартиру или другую недвижимость безопасно и быстро

Продать комнату в Екатеринбурге купить

Купить 1-комнатную квартиру продать

Продать 2-комнатную квартиру купить

Купить 3-комнатную квартиру продать

Продать 4-комнатную квартиру купить

Ипотека

Ежемесячный платеж

22 541 ₽/мес
ОФОРМИТЬ ЗАКАЗ
Людмила Ивановна

Отзыв: Очень рада, что моей жилищной задачей занималась Светлана Владимировна. Мне нужно было продать свою квартиру и купить другую побольше. Все четко, по делу, без стресса и волокиты. Рада, что сотрудничала именно с ней. В нашей сделке был агент у покупателя и агент у продавца встречного объекта, посмотр...ев, как работают они, и как работает Светлана, я осталась довольна, что мне повезло ее встретить. Надеюсь, что если мне вновь понадобится помощь, она снова будет рядом. Спасибо огромное агентству Дом Недвижимости, что у вас работают такие кадры!

Людмила Ивановна: 15.04.2026, рубрика «Обмен квартиры» Показать все
Полина

Отзыв: Хочу поблагодарить Дом Недвижимости и Немирову Оксану - это наш семейный риелтор! Она отличный специалист, и очень хороший человек. Мы работаем с ней уже не первый раз, и часто обращаемся с очень сложной задачей, и проблемными ситуациями, которые Оксана решает с легкостью и пониманием! Спасибо Вам б...ольшое! Продали свою квартиру с маленькими детьми - собственниками, и купили новую прекрасную квартиру в другом городе, и очень счастливы!

Полина: 10.01.2025, рубрика «Обмен квартиры» Показать все
Алена

Отзыв: Хочу выразить слова благодарности Полозовой Светлане Владимировне, за её профессиональный подход. Светлана помогла нам в купле-продаже квартиры. Всё очень чётко и понятно объясняла. На все возникающие вопросы давала чёткие ответы. Также давала рекомендации на что надо обращать внимание при выборе об...ъекта. Сделка у нас прошла без всяких заморочек. Светлана светлый и добрый человек, относится ко всему с пониманием. Благодаря ей мы с дочкой нашли своё новое уютное гнёздышко. Желаю Светлане и компании Дом Недвижимости процветания и побольше клиентов.

Алена: 24.02.2023, рубрика «Обмен квартиры» Показать все
Марина

Отзыв: Хотим выразить благодарность Светлане Владимировне за помощь в сопровождении нашей сделки. Светлана Владимировна - это настоящий профессионал, готовый в любое время ответить на все вопросы, проконсультировать и дать полезные рекомендации. Балагодаря помощи Светланы Владимировны, мы получили прекрасн...ый подарок к новому 2023 году. В будущем будем обращаться только к ней и рекомендовать ее услуги всем своим многочисленным знакомым и друзьям.

Марина: 20.02.2023, рубрика «Обмен квартиры» Показать все
Ксения

Отзыв: Обращалась в компанию, чтобы продать квартиру и взять в ипотеку другую. Благодарю Оксану Владимировну за помощь в продаже и приобретении, а так же за помощь в оформлении ипотеки!...

Ксения: 14.09.2022, рубрика «Обмен квартиры» Показать все
Светлана Л.

Отзыв: Выражаю огромную благодарность сотруднику АН «Дом недвижимости» - Татьяне Александровне Калашниковой за высокий профессионализм, оперативность, ответственное отношение к делу и внимательность к клиентам. Татьяна Александровна быстро и грамотно подготовила сделку по продаже квартиры, подбору и покупк...е другого объекта. Большое спасибо за работу!

Светлана Л.: 18.04.2022, рубрика «Обмен квартиры» Показать все
Алексей

Отзыв: Хотим поблагодарить агентство «Дом Недвижимости». Мы: я, Сергей и мама сердечно благодарны вам за вашу работу, ваш труд, за чуткое отношение к нашему делу. Нам очень повезло, что вы стали нашим агентом. Спасибо за всё! Будем всегда помнить с благодарностью! Желаем успехов и процветания!...

Алексей: 03.12.2021, рубрика «Обмен квартиры» Показать все
Олеся Александровна

Отзыв: После долгого поиска риэлтора, решили остановиться на агентстве Дом Недвижимости. На сайте оставили заявку и с нами в тот же день связался риэлтор Оксана Владимировна. После встречи и обсуждения по поводу купли-продажи, а у нас сделка шла через опеку ( как тут действовать мы представляли только в об...щих чертах) и было несколько собственников в квартире. Оксана Владимировна провела все этапы сделки быстро и профессионально, направляла и своевременно предупреждала, когда нужны те или иные документы, а так же помогала с их получением. Мы ни на минуту не пожалели, что обратились именно сюда. Спасибо, за профессионализм и человеческое отношение (что в наше время большая редкость).

Олеся Александровна: 25.10.2021, рубрика «Обмен квартиры» Показать все
Екатерина Ивановна

Отзыв: Добрый день! Хотим оставить положительный отзыв о компании Дом Недвижимости, с нами работал очень хороший специалист своего дела. У нас была очень сложный обмен квартиры, на квартире был арест, но специалист помог его снять и мы смогли продать квартиру и купить три объекта, хотим сказать ещё раз огр...омное спасибо.

Екатерина Ивановна: 17.09.2021, рубрика «Обмен квартиры» Показать все
Елена А.

Отзыв: Хочу выразить благодарность агенту недвижимости в лице специалиста АН «Дом Недвижимости» Татьяны Александровны за профессиональную помощь в продаже моей квартиры и приобретении другой (была оказана услуга обмены жилья)! Татьяна Александровна консультировала как безопасно и выгодно продать мою кварт...иру и как правильно выбрать другую, всегда была на связи. Очень грамотно выстраивала план сбора необходимых документов. Постоянно представляла отчеты о проделанной работе и вела к реальной стоимости моей квартиры и с хорошим торгом купили встречный объект. В результате обе сделки прошли успешно в планируемые сроки.

Елена А.: 18.08.2021, рубрика «Обмен квартиры» Показать все
Эдуард Николаевич и Любовь Мартемьяновна

Отзыв: Так сложилось, что я живу в другом городе и пришла необходимость перевезти родителей к себе поближе. Квартиру в г. Екатеринбурге нужно было продать. Обратился к специалисту-риэлтору Оксане Владимировне, сотруднику АН Дом Недвижимости, м к счастью не ошибся. Она оказалась грамотным специалистом и кро...ме того чутким человеком. Оказывала огромную помощь в подготовке документов для сделки. Кроме того, Оксана Владимировна на своей машине возила меня с родителями по организациям для получения разного рода справок и документов. Так как Покупатели приобретали квартиру через ипотечное кредитование. Все прошло нормально. Мы результатом остались довольны. Советуем всем этого специалиста. Спасибо ей за такой нужный труд для людей и желаем ей дальнейших успехов в труде, здоровья и финансового благополучия. С уважением Эдуард Николаевич и Любовь Мартемьяновна

Эдуард Николаевич и Любовь Мартемьяновна: 03.08.2021, рубрика «Обмен квартиры» Показать все
Александра

Отзыв: Хотим оставить свой отзыв и благодарность Оксане Владимировне специалисту агентства Дом Недвижимости, за проделанную работу в организации по продаже и покупке квартиры. Огромное спасибо за оформление всех сопутствующих документов и грамотно проведенные сделки. Оксана Владимировна очень ответственный..., отзывчивый и профессиональный человек своего дела. ОГРОМНОЕ СПАСИБО!!!!!

Александра: 18.04.2021, рубрика «Обмен квартиры» Показать все
Маклаков А.В

Отзыв: Доброго времени суток. Хотим оставить отзыв о замечательном человеке, ответственном риэлторе Галине Михайловне. С ней мы сотрудничаем не в первый раз. Необходимо было продать 2х комнатную квартиру в Академическом районе, чтобы купить 3х комнатную квартиру в новостройке. Позвонили ей, договорились о ...встрече и подписали договор. Галина Михайловна, как всегда, успешно и быстро за 2 месяца нашла покупателей. Она была постоянно с нами на связи и направляла наши дальнейшие действия. В назначенный день произошла сделка. А через 2 недели мы получили ключи от новой квартиры и переехали. Благодарим ООО «Дом недвижимости» и Галину Михайловну лично за проделанную работу. С уважением Маклаков А.В

Маклаков А.В: 28.12.2020, рубрика «Обмен квартиры» Показать все
Татьяна Александровна

Отзыв: Хотим поблагодарить риэлтора агентства Дом Недвижимости, которая помогла нам в продаже и последующем подборе и покупке квартиры для нашей семьи! Спасибо вам за профессионализм, оперативность и терпение!!! Все дальнейшие вопросы, связанные с покупкой и продажей недвижимости будем решать только с вам...и, а также будем рекомендовать своим близким и знакомым.

Татьяна Александровна: 02.12.2020, рубрика «Обмен квартиры» Показать все
Зевако Дмитрий

Отзыв: Сотрудничал с АН Дом Недвижимости по продаже и покупке квартиры. Мой вопрос не решился быстро (по своим причинам), но, тем не менее решился хорошо, и я доволен. Хочу особенно отметить человеческий подход, они всегда готовы сделать больше, чем прописано в договоре. Им можно доверять, и быть спокойным..., зная, что тебя точно нигде не обманут, даже если ты совсем не разбираешься в теме, и все будет доведено до полного успеха. Спасибо!

Зевако Дмитрий: 04.09.2020, рубрика «Обмен квартиры» Показать все

Показать все отзывы

Лада

Вопрос: Интересует обмен квартиры в Екатеринбурге по адресу: улица Фурманова, дом 24 на квартиру в Москве или Московской области.

Лада: 21.02.2026, рубрика «Обмен квартиры» Показать ответ

Уважаемая Лада. Готовы помочь Вам обменять Вашу квартиру в Екатеринбурге на квартиру в Москве или Московской области. В настоящее время на рынке недвижимости не существует такой схемы как прямой обмен между городами. Все делается через куплю-продажу. Пока ищется покупатель на квартиру в Екатеринбурге, параллельно подбирается квартира в Москве. И обе сделки готовятся одновременно. Мы выставляем Вашу квартиру в Екатеринбурге на продажу, подбираем Вам вариант в Москве (либо Вы сами подбираете), потом едете на ее просмотр. После того, как найдется покупатель на Вашу квартиру, мы организовываем обе сделки сразу. Покупку в Москве можно осуществить дистанционно, либо на месте. Это по Вашему пожеланию. В любом случае мы занимаемся организацией, проверкой документов и безопасными расчетами между сторонами. А если Вы планируетен приобрести новостройку, то забронировать квартиру у наших партнеров-застройщиков можно, не покидая Екатеринбурга и провести сделку онлайн. Для анализа возможности осуществления сделки между городами, необходимо понимать какой объект у Вас и какой объект нужен Вам. Обмен будет с доплатой или без. Для анализа Вам необходимо созвониться с любым из наших специалистов и рассказать подробности Вашей задумки. Мы обязательно Вам поможем.

21.02.2026, рубрика «Обмен квартиры»
Василина

Вопрос: Добрый день. Я хочу поменять комнату в двухкомнтной квартире на 1 комнатную квартиру. Сколько мне нужно доплаты?

Василина: 17.09.2025, рубрика «Обмен квартиры» Показать ответ

Добрый день, Василина. Обмен, который Вас интересует, вполне реальный. Но, дело в том, что сумма доплаты зависит от разных факторов, например, от того, в каком районе находится Ваша комната, и в каком районе Вы планируете приобретать 1 комнатную квартиру. Помимо этого влияет состояние и метраж комнаты и квартиры, а также год постойки дома и этаж. Поэтому, сказать что-то конкретное не предоставляется возможным, к сожалению. Для того, чтобы мы смогли более детально ответить на Ваш вопрос, нам необходимо как минимум знать основные факторы, которые мы перечислили. Позвоните нам, расскажите о Вашем жилищном вопросе более подробно. Мы обязательно постараемся дать полный и развернутый ответ, а также поможем в организации самого обмена. Мы всегда на связи.

17.09.2025, рубрика «Обмен квартиры»
Алика

Вопрос: Здравствуйте. Хотела бы проконсультироваться по поводу обмена квартиры. У меня небольшая студия в районе Уктуса. На что я могу ее поменять?

Алика: 20.05.2025, рубрика «Обмен квартиры» Показать ответ

Добрый день, уважаемая Алика. К сожалению, ответить на Ваш вопрос точно не предоставляется возможным, т.к. не хватает информации для оценки данного обмена. Для начала нужно понимать что за студия у Вас: сдан ли дом, адрес дома, метраж студии, этаж, отделка, с мебелью или нет. После этого можно оценить ее стоимость и от этого отталкиваться. При этом еще нет понимания будет ли у Вас доплата и если будет, то в наличной форме или в виде ипотеки? Вообщем, советуем Вам позвонить любому из наших специалистов или оставить более подробную заявку на консультацию на сайте. Наш специалист свяжется с Вами и сможет уже более точно сделать расчет и перспективу обмена. Благодарим за то, что Вы обратились к нам за решением своего жилищного вопроса.

20.05.2025, рубрика «Обмен квартиры»
Григорий

Вопрос: Добрый день. Хочу обменять коттедж на квартиру. Как это сделать?

Григорий: 03.04.2025, рубрика «Обмен квартиры» Показать ответ

Добрый день, Григорий. Если Вы имеете ввиду прямой обмен объектами, то, к сожалению, сделки такого плана практически ушли с рынка. Сейчас все осуществляется через куплю-продажу. Мы можем помочь Вам в этом. Выставляем Ваш коттедж на продажу, а параллельно подбираем Вам квартиру под Ваш запрос. Когда найдется покупатель на дом и внесет аванс, мы с Вами сразу же выберем квартиру и также внесем за нее аванс. Таким образом, сделки пройдут одновременно. Если Ваш коттедж находится в Свердловской области, Вы можете нам позвонить или оставить заявку на сайте, и мы обязательно Вам поможем.

03.04.2025, рубрика «Обмен квартиры»
Анна

Вопрос: Здравствуйте, срочно нужно продать комнату в Екатеринбурге Чкаловский район 13,3 кв м. Комната была куплена на маткапитал, с детскими долями, будет приобретаться другая недвижимость с выделением долей, но нужна срочная продажа. Сможете помочь?

Анна: 18.11.2024, рубрика «Обмен квартиры» Показать ответ

Добрый день, Анна. Да, конечно, обязательно поможем. Мы постараемся продать Вашу комнату как можно быстрее. Процедура будет состоять из следующих шагов: если Вы использовали материнский капитал на покупку комнаты, но не наделили детей собственностью, то сначала необходимо осуществить наделение. Для этого мы подготовим соглашение о распределении долей. После регистрации права собственности на детей, и подбора встречного варианта, необходимо будет проходить органы опеки и попечительства для получения разрешения на продажу комнаты и покупку другой недвижимости. Все это мы сделаем с Вами вместе и на каждом этапе постараемся сделать от себя все возможное, чтобы ускорить процесс. Звоните и мы договоримся о просмотре комнаты и обсудим детали сотрудничества.

18.11.2024, рубрика «Обмен квартиры»
Александр

Вопрос: Добрый день. Подскажите, пожалуйста, такой вопрос. Купили квартиру в новостройке с использованием ипотеки. В первоначальный взнос добавляли средства маткапитала. Поняли, что платить достаточно тяжело. Хотим эту квартиру обменять на другую у этого же застройщика, только меньше площадью. Возможно ли это?

Александр: 03.06.2024, рубрика «Обмен квартиры» Показать ответ

Добрый день, Александр. Ситуация у Вас не простая, но вполне решаемая. Для начала нужно Вам понимать то, что так как использовались средства материнского капитала, необходимо по соглашению с застройщиком ввести детей в состав участников долевого строительства, далее получить предварительное разрешение от опеки на переуступку прав долей детей. Параллельно согласовать с застройщиком возможность выкупа этой квартиры взамен другой, которую Вы у него же и выберете. Если такой вариант невозможен (не все застройщики идут на это), то тогда искать покупателя на свою квартиру, потом уже выбирать другую квартиру у застройщика и выходить с ним на сделку на новых условиях по ипотеке. Но это все в теории. На практике всегда появляются множество тонкостей и нюансов. Процесс такого обмена на рынке недвижимости считается одним из самых сложных, поэтому мы бы рекомендовали пройти его с опытным и надежным специалистом, который разбирается во всех нюансах и наперед может просчитать многие шаги, чтобы избежать ошибок. Выбирайте на нашем сайте агента, который Вам по душе, пишите ему и он Вам обязательно поможет!

03.06.2024, рубрика «Обмен квартиры»
Владимир

Вопрос: Добрый день. Интересует обмен 3-х комнатной квартиры в районе Старой Сортировки на вторичном рынке на частный дом. Возможен ли обмен без доплаты? И если нет, то сколько требуется денег?

Владимир: 29.01.2024, рубрика «Обмен квартиры» Показать ответ

Добрый день, Владимир. К сожалению, дать точный ответ на Ваш вопрос не предоставляется возможным, так как совершенно не достаточно вводных данных для просчета возможности обмена. Теоретически, обмен возможен. Но надо понимать, какая именно у Вас квартира: местонахождение дома (улица номер), какого дом года, сколько этажей и на каком этаже расположена квартира, сколько метров, изолированные комнаты или нет, состояние квартиры. А также необходимо понимать какой именно дом нужен и его месторасположение, так как цена дома находится в прямой зависимости не только от его параметров, но и от расстояния до Екатеринбурга. Поэтому, мы рекомендуем связаться с любым нашим специалистом и он поможет Вам с расчетом реальности обмена. Либо Вы можете оставить свою заявку на нашем сайте с подробным описанием своего запроса и мы обязательно поможем. А также мы сможем помочь с оформлением Сельской ипотеки или господдержки на покупку дома. На сегодняшний день по этим программам самые низкие процентные ставки на рынке недвижимости. Звоните или пишите. Обязательно поможем.

29.01.2024, рубрика «Обмен квартиры»
Антон

Вопрос: Требуется продать квартиру в Красноярске и купить в Екатеринбурге.

Антон: 01.12.2023, рубрика «Обмен квартиры» Показать ответ

Немирова Оксана Владимировна

Специалист по недвижимости +79030819972

Здравствуйте, Антон! Всегда рады Вам помочь в решении Ваших вопросов по недвижимости. По Вашему вопросу: можем Вам помочь подобрать квартиру и оформить сделку в городе Екатеринбурге. То есть получается, мы помогаем Вам найти специалиста по продаже Вашей квартиры в Красноярске, и в паре с ним уже работаем, при этом мы параллельно ищем Вам вариант, который Вам подойдет здесь в Екатеринбурге. Таким образом, когда будет найден покупатель на вашу квартиру в Красноярске, покупатель вносит аванс, и мы с Вами уже здесь в Екатеринбурге выбираем квартиру из уже найденных вариантов, и Вы уже здесь также вносите аванс за подходящую Вам квартиру. Сделку можно провести дистанционно. Можно при необходимости начать работу удаленно, чтобы Вы быстрее получили результат. Давайте с Вами созвонимся, обсудим все детали, и начнем работать.

01.12.2023, рубрика «Обмен квартиры»
Екатерина

Вопрос: Здравствуйте, можно ли заключить сейчас обмен квартиры на земельный участок? Или же проще сделать два договора купли-продажи?

Екатерина: 18.04.2023, рубрика «Обмен квартиры» Показать ответ

Добрый день, Екатерина. Если у Вас идет прямой обмен недвижимости (т.е. Вы хотите в результате обмена квартиры получить участок, а собственник участка - Вашу квартиру), то достаточно одного договора. Данный документ будет называться не договором купли-продажи, а договором мены. При этом необходимо учесть ряд нюансов, например, собственники обмениваемого недвижимого имущества должны также сохранить статус собственника в другом имуществе, количество собственников может быть изменено в большую сторону, но прежние собственники не могут быть исключены из их состава. Также необходимо учитывать, что если обмениваемая недвижимость находится в разных регионах, то подать на регистрацию можно в одном из них, но разными пакетами и пр. тонкости и нюансы сделки. Обращайтесь. Наши специалисты помогут грамотно составить договор мены с учетом всех нюансов и сопроводят сделку в МФЦ. Звоните!

18.04.2023, рубрика «Обмен квартиры»
Наталья

Вопрос: Добрый день. Возможна ли продажа 2-комнатной квартиры в районе УРФУ (Втузгородка) и покупка 2-3 комнатной квартиры в районе ВИЗА (Юго-Запада)?

Наталья: 11.01.2023, рубрика «Обмен квартиры» Показать ответ

Романцева Людмила Евгеньевна

Специалист по недвижимости +79530066444

Уважаемая Наталья. Конечно же, продажа 2-х комнатной квартиры в районе УРФУ (Втузгородок) и покупка 2-3-х комнатной квартиры в районе ВИЗА (Юго-Запада) возможна. Для того, чтобы сделка прошла быстро и с учетом всех Ваших пожеланий, необходима дополнительная информация: место расположение дома (улица), его характеристика, этажность, год постройки, характеристика квартиры, ее состояние, наличие всех опций, которые Вы предлагаете Покупателю ( наличие мебели, бытовой техники, сантехники, качество окон, дверей и пр.) вместе с квартирой. Также необходимо понимание, что Вы хотите приобрести взамен Вашей квартиры, бюджет, который Вы планируете потратить на приобретение новой квартиры, ее месторасположение, готовы ли Вы сначала продать свою квартиру, а потом заняться поиском новой или все-таки для Вас будет предпочтительнее вариант обмена. Для того, чтобы тщательно разобраться с этими и другими вопросами, специалист нашего агентства готов выехать к Вам в любое удобное для Вас время и произвести оценку Вашей квартиры, дать исчерпывающую консультацию, подсказать наиболее выгодные и интересные варианты продажи Вашей квартиры и покупки новой. Обращаем Ваше внимание, что выезд и все консультации проводятся на безвозмездной основе и гарантируют безопасность, сроки и качество сделки. Готовы подъехать в любое удобное для Вас время. Вы можете оставить заявку на нашем сайте на бесплатную оценку и мы Вам перезвоним. либо звоните сами. Поможем обязательно сориентироваться в сегодняшней ситуации на рынке недвижимости Екатеринбурга, расскажем о ближайших грядущих измеренеиях и тенденциях. Мы на связи всегда!

11.01.2023, рубрика «Обмен квартиры»
Алина

Вопрос: Добрый день. Подскажите, пожалуйста, я хотела обменять свою 2-х комнатную квартиру в районе Юго-Западный на 1-ую квартиру в Центре. Что для этого нужно?

Алина: 16.12.2022, рубрика «Обмен квартиры» Показать ответ

Алина, добрый день. Спасибо, за обращение на наш сайт АН «Дом Недвижимости». В Вашем случае будет идеальный вариант – совершить сделку по договору мены. Однако, чтобы официально оформить договор мены, необходимо найти того, кто готов переехать из центра Екатеринбурга в жилье в менее престижный район города и получить в качестве компенсации деньги. Если Вы еще не нашли подходящих Вам вариантов, остановитесь на купле-продаже: сначала продаете свою недвижимость, а затем покупаете отвечающую Вашим требованиям. В таком случае нужно будет оформлять два договора купли-продажи. Рекомендуем Вам подойти к нам в офис и обсудить Ваш вопрос более детально, с возможным подбором в нашей базе подходящего для Вас варианта однокомнатной квартиры. Консультация, оценка недвижимости и выезд специалиста у нас бесплатно. Будем рады Вас видеть.

16.12.2022, рубрика «Обмен квартиры»

Показать все вопросы

Немирова Оксана Владимировна

Немирова Оксана Владимировна

Специалист по недвижимости +79030819972

Портфолио:

Портфолио по обмену квартиры в Среднеуральске

14.02.2025, рубрика «Обмен квартиры» Показать полностью
Полозова Светлана Владимировна

Портфолио:

Обмен квартиры с ипотекой

03.12.2021, рубрика «Обмен квартиры» Показать полностью
Полозова Светлана Владимировна

Портфолио:

Обмен квартиры под арестом

13.10.2021, рубрика «Обмен квартиры» Показать полностью
Полозова Светлана Владимировна

Портфолио:

Портфолио по обмену квартиры на студию

18.06.2021, рубрика «Обмен квартиры» Показать полностью
Немирова Оксана Владимировна

Немирова Оксана Владимировна

Специалист по недвижимости +79030819972

Портфолио:

Обмен 1 комнатной квартиры на Избирателей, 69

21.05.2021, рубрика «Обмен квартиры» Показать полностью
Немирова Оксана Владимировна

Немирова Оксана Владимировна

Специалист по недвижимости +79030819972

Портфолио:

Продажа апартаментов и покупка квартиры в новом доме

17.03.2021, рубрика «Обмен квартиры» Показать полностью
Немирова Оксана Владимировна

Немирова Оксана Владимировна

Специалист по недвижимости +79030819972

Портфолио:

Обмен квартиры в залоге у микрофинансовой организации

06.01.2021, рубрика «Обмен квартиры» Показать полностью
Полозова Светлана Владимировна

Портфолио:

Межрегиональная сделка Юрюзань-Екатеринбург

31.12.2020, рубрика «Обмен квартиры» Показать полностью
Полозова Светлана Владимировна

Портфолио:

Обмен трехкомнатной квартиры с детьми

28.12.2020, рубрика «Обмен квартиры» Показать полностью
Полозова Светлана Владимировна

Портфолио:

Обмен 2-х комнатной квартиры в р-не Втузгородок на 3-х комнатную квартиру на Синих Камнях

23.12.2020, рубрика «Обмен квартиры» Показать полностью
Полозова Светлана Владимировна

Портфолио:

Как обменять 1-комнатную квартиру в Академическом на равнозначную квартиру в Центре

05.11.2020, рубрика «Обмен квартиры» Показать полностью
Полозова Светлана Владимировна

Портфолио:

Как обменять 1-комнатную квартиру на 2-х комнатную в Академическом

26.09.2020, рубрика «Обмен квартиры» Показать полностью
Полозова Светлана Владимировна

Портфолио:

Как обменять трехкомнатную квартиру на две однокомнатные

04.03.2020, рубрика «Обмен квартиры» Показать полностью

Показать все портфолио

3-комнатная квартира, 75 м2, 3/25 эт.
Обмен
Ипотека
Рассрочка
Скидка
3-комнатная квартира, 75 м2, 3/25 эт.
Екатеринбург, Вторчермет
ул. Дорожная, 18
8.00 млн ₽
106 666 ₽/м2
35 221 ₽/мес
3-комнатная квартира, 68 м2, 2/16 эт.
Обмен
Ипотека
Скидка
3-комнатная квартира, 68 м2, 2/16 эт.
Екатеринбург, Эльмаш
пер. Цветочный, 16
7.75 млн ₽
113 970 ₽/м2
34 120 ₽/мес
2-комнатная квартира, 51 м2, 1/18 эт.
Обмен
Ипотека
2-комнатная квартира, 51 м2, 1/18 эт.
Екатеринбург, Уралмаш
ул. Бакинских Комиссаров, 105
5.60 млн ₽
109 803 ₽/м2
24 655 ₽/мес
1-комнатная квартира, 32 м2, 1/9 эт.
Обмен
Ипотека
Скидка
1-комнатная квартира, 32 м2, 1/9 эт.
Екатеринбург, Эльмаш
ул. Шефская, 85
4.15 млн ₽
129 687 ₽/м2
18 271 ₽/мес
2-комнатная квартира, 47 м2, 2/10 эт.
Обмен
Ипотека
Скидка
2-комнатная квартира, 47 м2, 2/10 эт.
Екатеринбург, Широкая речка
Соболева, 21/3
5.30 млн ₽
112 765 ₽/м2
23 334 ₽/мес
2-комнатная квартира, 42 м2, 5/5 эт.
Обмен
Ипотека
Скидка
2-комнатная квартира, 42 м2, 5/5 эт.
Екатеринбург, Уралмаш
Победы 26
5.90 млн ₽
140 476 ₽/м2
25 975 ₽/мес
2-комнатная квартира, 50 м2, 5/5 эт.
Обмен
Ипотека
2-комнатная квартира, 50 м2, 5/5 эт.
Богданович, Центр
ул. 1-й Квартал, 16
2.25 млн ₽
45 000 ₽/м2
9 906 ₽/мес
2-комнатная квартира, 61 м2, 15/15 эт.
Обмен
Ипотека
2-комнатная квартира, 61 м2, 15/15 эт.
Екатеринбург, Академический
Краснолесья 103
6.40 млн ₽
104 918 ₽/м2
28 177 ₽/мес
2-комнатная квартира, 42 м2, 5/5 эт.
Обмен
Ипотека
2-комнатная квартира, 42 м2, 5/5 эт.
Екатеринбург, Втузгородок
ул. Мира 3а
5.98 млн ₽
142 380 ₽/м2
26 328 ₽/мес
3-комн. квартира, 56 м2, 1/1 эт.
Обмен
Ипотека
Скидка
3-комн. квартира, 56 м2, 1/1 эт.
Екатеринбург, Вторчермет
пер. Дизельный, 43
5.90 млн ₽
105 357 ₽/м2
25 975 ₽/мес
2-комнатная квартира, 51 м2, 2/2 эт.
Обмен
Ипотека
Скидка
2-комнатная квартира, 51 м2, 2/2 эт.
Екатеринбург, Химмаш
ул. Славянская, 1/79
3.95 млн ₽
77 450 ₽/м2
17 390 ₽/мес
3-комнатная квартира, 54 м2, 4/5 эт.
Обмен
Ипотека
3-комнатная квартира, 54 м2, 4/5 эт.
Екатеринбург, Центр
Восточная 170
6.80 млн ₽
125 925 ₽/м2
29 938 ₽/мес
2-х комнатная квартира, 45 м2, 4/5 эт.
Обмен
Ипотека
Скидка
2-х комнатная квартира, 45 м2, 4/5 эт.
Екатеринбург, ВИЗ
Малый Конный, 13
4.00 млн ₽
88 888 ₽/м2
17 610 ₽/мес
4-х комнатная квартира, 80 м2, 8/9 эт.
Обмен
Ипотека
4-х комнатная квартира, 80 м2, 8/9 эт.
Екатеринбург, Кольцово
ул. Бахчиванджи, 1б
6.90 млн ₽
86 237 ₽/м2
30 374 ₽/мес
3-комнатная квартира, 74 м2, 1/12 эт.
Обмен
Ипотека
Рассрочка
3-комнатная квартира, 74 м2, 1/12 эт.
Екатеринбург, Вторчермет
ул. Агрономическая, 2
6.10 млн ₽
82 432 ₽/м2
26 856 ₽/мес

Показать все объекты