ДОМ НЕДВИЖИМОСТИ
НЕДВИЖИМОСТЬ ЕКАТЕРИНБУРГА
НАЗАД К СПИСКУ

Главная  /  

Недвижимость  /  

Вторичная недвижимость  /  

Двухкомнатные  /  

Продажа 2-комнатной квартиры

Подбор, покупка, продажа, обмен квартир. Бесплатные консультации по недвижимости. ЗАДАТЬ ВОПРОС ПОЗВОНИТЬ

Подбор, покупка, продажа, обмен квартир. Бесплатные консультации по недвижимости. ЗАДАТЬ ВОПРОС

Продажа 2-комнатной квартиры

Продажа 2-комнатной квартиры

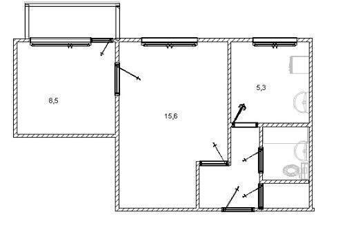
Екатеринбург, Новая Сортировка, ул. Ольховская 25/1

Площадь: Общая: 37 м2  Жилая: 24 м2  Кухня: 7 м2

4 900 000 ₽
ПРЕДЛОЖИТЬ СВОЮ ЦЕНУ
132 432 ₽/м2
 21 573 ₽/мес
ПРЕДЛОЖИТЬ СВОЮ ЦЕНУ

2-комнатная квартира

Тип квартиры Пентагон
Материал дома: Панель
Год постройки: 1979
Изолированных: 2
Этаж/Этажность: 7/9
Санузел: Совмещенный
Балкон/Лоджия: Балкон
Стеклопакеты: Пластик,дерево
Вид из окон: на улицу
Состояние: Требует ремонта
Транспорт: Автобус, трамвай
Метро: Нет
Условие: Чистая продажа
Ипотека: Возможна

Агентство Дом Недвижимости продает уютную двухкомнатную квартиру. Солнечная сторона! НЕ угловая! Тёплая! В доме не давно сделали кап. ремонт, установили  пластиковые окна в подъездах, заменили стояки водоснабжения, удачное расположение внутри микрорайона. Большущий двор с детской площадкой, теннисный стол и много места для прогулок! Школы, детсады, поликлиника, магазины рядом.

В квартире начинали делать капитальный ремонт, были выполнены штукатурные работы, по выравниванию стен и потолков, получилось всё хорошо и ровненько, и наклеены обои  во всей квартире кроме ванной комнаты и кладовке, так же установили новый  оконный блок в маленькой комнате с выходом на балкон, счётчики на воду.

Необходимо заменить окна в большой комнате и на кухне, и желательно входную дверь, постелить ламинат или линолеум и получится отличная, светлая  и солнечная квартира на 7 этаже, для молодой семьи!  Так же требуется ремонт в ванной  и кладовой.

Можно рассматривать как инвестицию под аренду, спрос есть всегда и в данный момент квартира сдаётся. Живут квартиранты. Если застеклить и утеплить балкончик полезная площадь квартиры существенно увеличится до 41 метра!!!

Чистая продажа. Один взрослый собственник. Состояние среднее. Быстрый выход на сделку.

Ипотека

Ежемесячный платеж

21 573 ₽/мес
ОФОРМИТЬ ЗАКАЗ
Ирина Васильевна

Отзыв: Хотели бы поблагодарить Светлану Владимировну за отличную организацию продажи нашей квартиры. Квартира была в собственности у меня с дочерью, которая уже очень много лет живет в другой стране. Светлана заранее подготовила образец доверенности, дочь сделала ее в Консульстве и отправила мне в Россию. ...Она молодец, учла все настоящие и возможно будущие варианты исхода событий для любой сделки и включила их в доверенность. Осложнялось все еще тем, что в квартире был прописан мой внук, у которого был просрочен российский и загранпаспорт, и был только паспорт гражданина другой страны. Но Светлана все организовала и нам удалось его выписать. Сделка прошла без сучка и задоринки. В сбербанке. Я, как пожилой человек, вначале очень сильно волновалась и переживала, но потом успокоилась, доверилась ей и осталась очень довольна. Благодарим душевно за помощь!

Ирина Васильевна: 02.03.2026, рубрика «Продажа квартиры» Показать все
Тамара Ильинична

Отзыв: Я человек пожилой и мне было очень трудно довериться кому-то, тем более сейчас так много всяких мошенников. Но мне нужно было как-то продать свою квартиру и уехать в другой регион к сыну. Вот он мне и помог с выбором. Перечитал много отзывов, посмотрел сайты и пообщался с риэлторами. В итоге останов...ился на агентстве Дом Недвижимости, дал мне телефон и я позвонила Светлане Владимировне. Я очень рада, что он дал мне телефон именно ее. Продажа квартиры с ней у меня прошла в спокойном темпе, она отвечала на все мои вопросы и сомнения, ведь я многого не понимала и не знала. Она очень чуткая, терпеливая и внимательная девушка, особенно к пенсионерам. Помогала мне даже в тех вопросах, которые напрямую не касались сделки. Я осталась очень довольна работой данной компании. Всем советую.

Тамара Ильинична: 17.02.2026, рубрика «Продажа квартиры» Показать все
Ирина Александровна

Отзыв: Продавали со Светланой Владимировной квартиру, на которой было наложено 4 запрета на регистрацию. Что понравилось, так это то, что взялась за работу она без всяких вопросов, сама ходила к приставам и вела все переговоры с ними по снятию обременений, подготовила самостоятельно квартиру к сделке по д...окументам, была нашим представителем везде от и до. Мы очень рады, что она помогла нам решить нашу сложную ситуацию. Мы остались очень довольны.

Ирина Александровна: 11.01.2026, рубрика «Продажа квартиры» Показать все
Елена Освальд

Отзыв: Хочу поблагодарить Полозову Светлану Владимировну за проделанную работу по продаже квартиры. Тактичная, профессионал в своём деле. Всегда была на связи, даже не в рабочее время. Информировала, подробно объясняла. Рекомендую всем, кто в поисках риэлтора. Спасибо Вам, Светлана Владимировна!...

Елена Освальд: 13.12.2025, рубрика «Продажа квартиры» Показать все
Надежда Владимировна

Отзыв: Выражаю искреннюю благодарность агентству недвижимости Дом недвижимости и лично Романцевой Людмиле Евгеньевне за профессиональную помощь в продаже нашей недвижимости. Хочу отметить высокий уровень компетентности и профессионализма Людмилы Евгеньевны на всех этапах работы. Она полностью взяла на себя... заботы, связанные с продажей объекта, и проделала огромную работу: грамотно провела оценку рыночной стоимости, организовала качественные показы Объекта, эффективно вела переговоры с покупателями, обеспечила полное юридическое сопровождение сделки, оперативно решала все вопросы. Особую признательность хочу выразить за внимательное отношение к нашим пожеланиям и четкое понимание всех нюансов сделки. Благодаря профессионализму Людмилы Евгеньевны процесс продажи прошел максимально быстро и комфортно для нас. Рекомендую Романцеву Людмилу Евгеньевну как высокопрофессионального специалиста по недвижимости, которому можно доверить решение любых вопросов, связанных с продажей или покупкой недвижимости.

Надежда Владимировна: 06.11.2025, рубрика «Продажа квартиры» Показать все
Макс

Отзыв: Добрый день. Хочу поблагодарить Дом Недвижимости и конкретно заместителя директора Светлану за оперативную продажу моей студии. Сам я проживаю в другом регионе, поэтому сотрудничал с ней дистанционно: от показов до самой сделки. Понравились и сама ее работа, и общение с ней. Приятная, коммуникабельн...ая и профессионал своего дела. Желаю благодарных клиентов и развития.

Макс: 17.09.2025, рубрика «Продажа квартиры» Показать все
Максим

Отзыв: Огромное спасибо Оксане Владимировне риэлтору агентства Дом Недвижимости за профессионализм и помощь в продаже моей квартиры! Она быстро нашла покупателей, буквально в течение недели, что меня вполне устроило и даже без торга. Сделка прошла быстро и гладко, все вопросы решались оперативно. Рекомен...дую риэлтора и агентство! Думаю, что в дальнейшем буду покупать дом с этим агентом.

Максим: 01.09.2025, рубрика «Продажа квартиры» Показать все
Ираклий

Отзыв: Хочу сказать большое спасибо заместителю директора Светлане Владимировне за помощь в продаже квартиры в городе Екатеринбурге. Мы с супругой остались довольны результатом. Больше всего понравилось то, что она не дергала нас по пустякам, а все вопросы и предложения были по существу и важными. Сделка п...рошла легко, спокойно и быстро.

Ираклий: 22.05.2025, рубрика «Продажа квартиры» Показать все
Татьяна

Отзыв: Хочу выразить огромную благодарность моему риэлтору Немировой Оксане Владимировне и АН Дом Недвижимости за грамотно проведенную сделку по продаже квартиры. У меня была очень не простая ситуация: я хотела продать долю в квартире, были долги, и вторая сторона не настроена была продавать квартиру. Ок...сана Владимировна провела переговоры со второй стороной, и очень быстро нашла покупателя на всю квартиру целиком. Но продажа осложнилась форс мажором. Оксана Владимировна удачно смогла решить все проблемы, и сделка была заключена. Я с уверенностью могу сказать, что Оксана Владимировна очень хороший профессионал в своем деле, она ещё очень хороший человек: милая, дружелюбная, коммуникабельная. Рекомендую этого риэлтора и Дом Недвижимости.

Татьяна: 02.03.2025, рубрика «Продажа квартиры» Показать все
Валентина

Отзыв: Хочется сказать большое спасибо сотруднику агенства "ДОМ НЕДВИЖИМОСТИ" Немировой Оксане Владимировне за быструю и качественно проведенную сделку по продаже нашей квартиры. Оксана Владимировна милый и приветливый человек, который обладает высокими профессиональными качествами, чётко и быстро решает... вопросы, возникающие в процессе оформления документов. Все рекомендации и советы с её стороны были абсолютно правильными. При заверении сделки у нотариуса все документы и справки были приняты без единого вопроса. Хочется пожелать Оксане Владимировне и агенству "ДОМ НЕДВИЖИМОСТИ " дальнейших успехов в работе и процветания.

Валентина: 15.11.2024, рубрика «Продажа квартиры» Показать все
Анна

Отзыв: Благодарим компанию «Дом Недвижимости» и нашего риэлтора Немирову Оксану Владимировну за быструю продажу квартиры. Сделка прошла успешно, возникшие затруднения решили оперативно. Оксана Владимировна ответственный человек и грамотный специалист, подробно объясняет все нюансы и подводные камни, покупа...ть квартиру тоже будем с ней.

Анна: 10.09.2024, рубрика «Продажа квартиры» Показать все
Наталья

Отзыв: Спешу выразить слова благодарности Светлане. Продавала квартиру в Екатеринбурге ( сама живу в другом регионе) . Светлана-специалист своего дела! Помогла с подготовкой документов для продажи, квартира продалась очень быстро. Если ещё раз придется обратиться к риэлтору в Екатеринбурге, то только к Све...тлане в «Дом Недвижимости») Спасибо ещё раз, Светлана!

Наталья: 06.08.2024, рубрика «Продажа квартиры» Показать все
Надежда

Отзыв: Хочется выразить огромную благодарность Полозовой Светлане Владимировне за высокий уровень профессионализма, неизменную доброжелательность, отзывчивость и искреннее сочувствие. Ей удалось помочь в невероятно сложной ситуации максимально комфортно для меня. Столько сил ею было приложено для очень усп...ешного разрешения всех проблем! Большое спасибо! Если возникнет какая-нибудь подобная задача, только Светлане Владимировне смогу доверить ее решение.

Надежда: 05.05.2024, рубрика «Продажа квартиры» Показать все
Светлана

Отзыв: День добрый! Хочется выразить благодарность Полозовой Светлане за проделанную работу по продаже квартиры, сделка была не из простых и обременение с крупной суммой остатка по ипотеке и продавцов несколько из разных регионов, вообще - то были ещё проволочки, но Светлана, не смотря ни на что, достаточн...о быстро продала наш объект по хорошей цене. Все случилось достаточно быстро, а главное - просто. Если обращаться за услугами риэлтора, то однозначно рекомендую !!!

Светлана: 09.02.2024, рубрика «Продажа квартиры» Показать все
Ирина З.

Отзыв: Обратилась в «Дом Недвижимости» случайно, так как я проживаю в другом городе, нужно было продать квартиру в Екатеринбурге. Я увидела на авито объявление о продаже квартиры в этом агентстве, которая находилась рядом с моей и позвонила. По телефону мне ответила Оксана Владимировна. Мне понравилось, ка...к она вела разговор: уверенно и четко отвечала на мои вопросы, и мы договорились о том, что Оксана Владимировна посмотрит мою квартиру, так как там проживали квартиранты. И потом мы договорились на встречу и заключили договор услуг на продажу. Я Благодарю риэлтора Дом недвижимости Немирову Оксану Владимировну за грамотно выстроенную работу по продаже моей квартиры. От первого разговора до сделки прошло несколько месяцев, так как в квартире была перепланировка и Оксана Владимировна помогла ее узаконить. Для меня в работе Оксаны Владимировны было ценно следующее: индивидуальный подход, всё грамотно, с пониманием, без суеты, были получены ответы на все интересующие вопросы. Перед сделкой она выслала на почту всю необходимую информацию: памятку по необходимым документам, памятку по сделке для продавца, маршрут сделки с пошаговой инструкцией. Хочется отметить, что сделка проходила очень организованно, все разъяснялось доступно и понятно. Во время сделки Оксана Владимировна была всегда рядом, все было сделано четко и быстро! Сделка состоялась! Благодарю агентство Дом Недвижимости за отличных, знающих свое дело, специалистов! Оксане Владимировне желаю процветания, здоровья и ещё много-много довольных клиентов!

Ирина З.: 26.10.2023, рубрика «Продажа квартиры» Показать все

Показать все отзывы

Анжелика

Вопрос: Здравствуйте, можно ли продать квартиру (ВИЗ 3-х комнатная) с обременением в виде отказавшейся от приватизации и проживающей в квартире сестре 53 лет.

Анжелика: 27.01.2026, рубрика «Продажа квартиры» Показать ответ

Уважаемая, Анжелика. С одной стороны, согласно статье 209 ГК РФ, собственнику принадлежат права владения, пользования и распоряжения своим имуществом. Это означает, что Вы, являясь собственником квартиры, имеете полное право распоряжаться ею по своему усмотрению, включая продажу третьему лицу, без обязательного согласования с Вашей сестрой. При этом, согласно ст. 558 ГК РФ есть обязательное требование относительно договора купли-продажи жилого помещения: в договоре обязательно должно быть указано наличие лиц, имеющих право проживания в помещении даже после смены собственника. Даже новый собственник не сможет выселить Вашу сестру из данной квартиры. Только с ее личного согласия. С другой стороны, такие сделки купли-продажи, где проживают такие лица, практически не возможны. Никто в здравом уме не захочет покупать квартиру с пожизненно проживающим в ней лицом. Поэтому рекомендуем провести переговоры с сестрой по поводу того, что Вы приобретете ей другую квартиру взамен ее выписки из квартиры и права проживать в ней. Мы можем помочь Вам в проведении таких переговоров. Как правило, когда ведением переговоров занимаются третьи лица, сторонам удается найти компромисс и решить вопрос таким образом, чтобы все участники процесса остались довольны результатом. Звоните. Постараемся помочь.

27.01.2026, рубрика «Продажа квартиры»
Оксана

Вопрос: Здравствуйте. Интересует продажа доли. Есть долги. В квартире не живу. Там проживает бывший муж. Как продать долю с долгами?

Оксана: 01.10.2025, рубрика «Продажа квартиры» Показать ответ

Уважаемая Оксана. Если мы Вас правильно поняли, то под долгами Вы подразумеваете задолженность по коммунальным услугам и капитальному ремонту. В таком случае никаких препятствий для продажи нет, погасить долг можно и с продажи. Главное, чтобы на квартире не был наложен арест или запрет на регистрационные действия. Но даже, если они и есть, то с такими объектами тоже можем справиться. Важно понимать в этом случае, кто будет являться конечным покупателем Вашей доли. Если бывший супруг, то это одна история. Если же третье лицо, то здесь уже совсем другой процесс сделки. Поэтому рекомендуем Вам связаться с нами по телефону или через форму обратной связи, чтобы обсудить детали и спланировать план действий по продаже. Ждем Вашего звонка. Обязательно поможем.

01.10.2025, рубрика «Продажа квартиры»
Юлия

Вопрос: Здравствуйте. Продаю комнату в коммунальной квартире на улице Ангарской, площадью около 15 кв.м. Прошу проконсультировать по поводу отказа от преимущественного права покупки для несовершеннолетних собственников (не могу понять порядок сбора и подачи документов). Вся сложность в том, что в одной комнате несовершеннолетний собственник, которому досталась жил.площадь по праву наследования и он находится под опекой бабушки и дедушки. Они приезжают в июле не на долго (живут где-то в области). Хотелось бы попросить помощи в подготовке всех необходимых документов для продажи. Собственник - моя мама, доверенность у нотариуса уже оформили на меня.

Юлия: 27.06.2025, рубрика «Продажа квартиры» Показать ответ

Романцева Людмила Евгеньевна

Специалист по недвижимости +79530066444

Добрый день, Юлия! Благодарим за обращение в наше агентство.В ответ на Ваш вопрос о возможности продажи комнаты Вашей мамы в коммунальной квартире, в одной из комнат которой сособственником является несовершеннолетний ребенок, владеющий этой собственностью на основании наследства по закону и опекаемый своими бабушкой и дедушкой, сообщаю следующее: комнату мамы, имея нотариально оформленную доверенность на Ваше имя, Вы можете продать, но при этом выполнить все требования законодательных актов.Сособственники согласно статье 250 ГК РФ имеют преимущественное право на покупку Вашей комнаты по цене, указанной Вами в течение одного месяца после получения Вашего уведомления о продаже своей комнате и ее стоимости.Уведомление осуществляется посредством телеграммы, если в течение месяца от сособственника нет подтверждения о готовности покупки Вашей комнаты, Вы имеете право продать ее другим лицам. Можно также получить нотариально заверенный отказ каждого сособственника от покупки Вашей комнаты. В Вашем случае одним из сособственников является несовершеннолетний ребенок , поэтому, нотариально заверенный отказ от покупки комнаты, обязателен. В виду того, что сособственник не достиг возраст совершеннолетия, от его имени действуют попечители либо опекуны, в данном случае- бабушка и дедушка. Однако, оформление нотариально заверенного отказа от покупки Вашей комнаты несовершеннолетним сособственником в лице его опекунов возможно только после разрешения опеки на оформление отказа от покупки. Разрешение опеки на оформление отказа от покупки делается по месту регистрации несовершеннолетнего сособственника при предъявлении определенного пакета документов, который определяют органы опеки, вся информация по перечню документов, необходимых для получения разрешения на нотариальный отказ от покупки комнаты, предоставляются либо опекунам, либо попечителям. Приходите к нам на более подробную консультацию, обязательно поможем все оформить и продать Вашу комнату по максимально возможной цене.

27.06.2025, рубрика «Продажа квартиры»
Александра

Вопрос: Здравствуйте. У меня квартира в ипотеке. Банк ВТБ, остаток долга порядка 3.000.000 рублей. Квартира в новом доме. Дело в том, что когда я ее покупала, мое финансовое положение было хорошим, а сейчас ситуация изменилась, и мне сложно платить за нее. Скажите, возможно ли продать такую квартиру?

Александра: 11.06.2025, рубрика «Продажа квартиры» Показать ответ

Добрый день, Александра. Да. Продать такую квартиру никто запретить Вам не может. Другой вопрос, кто на сегодняшний день является покупателем такой недвижимости? Это те, кто ищут для себя жилье за наличные, либо приобретают новое жилье на денежные средства, вырученные от продажи своей старой недвижимости, с небольшой доплатой в виде ипотеки. Семейная ипотека или ай-ти ипотека, к сожалению, на вторичном рынке невозможна, а именно по этим двум программам привлекательные ставки. Помимо этого хотим добавить, что в настоящий момент рынок находится в стадии стагнации, а это влияет на цены на вторичку. Учитывая, что квартира находится в залоге у банка, покупатели неохотно рассматривают приобретение таких объектов. Поэтому, рекомендуем сделать тщательный анализ конкурентов, рынка в целом и перспективы реализации Вашей квартиры. А еще лучше - приходите к нам, обязательно вместе продадим наиболее выгодно Вашу квартиру.

11.06.2025, рубрика «Продажа квартиры»
Мария

Вопрос: Добрый день! Меня зовут Мария. Я собственник квартиры в Екатеринбурге (1-комнатная, 36,2 м?, 12/33 эт.). Квартира выставлена на продажу, но за два месяца продвижения практически не было результата — очень низкий отклик, всего один звонок. Сейчас я рассматриваю вариант подключения нового агента или команды, так как цель — максимально быстрая продажа квартиры, в приоритете именно результат. Квартира находится в долгосрочной аренде, арендаторы адекватные, показы возможны по договорённости. Готова обсудить условия досрочного освобождения при необходимости. Скажите, были ли у вас такие кейсы (продажа квартиры с арендаторами)?

Мария: 09.06.2025, рубрика «Продажа квартиры» Показать ответ

Романцева Людмила Евгеньевна

Специалист по недвижимости +79530066444

Мария, добрый день! Благодарим за Ваше обращение. Конечно же, наши специалисты занимаются быстрыми продажами квартир, в том числе и с проживающими арендаторами. Работа по оказанию услуги быстрой продажи недвижимости ведется на основании эксклюзивного договора, предусматривающего все этапы продажи с момента подписания договора до момента подписания акта приема-передачи объекта от Продавца к Покупателю. Стратегия продажи каждого объекта определяется индивидуально, исходя из истории, характеристики объекта, анализа рынка, целей продажи данного объекта. Быстрая продажа объекта недвижимости требует особого подхода, использования таких инструментов как: глубокий анализ рынка недвижимости, выявление и тщательное изучение ближайших конкурентов, определение актуальной стоимости объекта недвижимости, изготовление качественных фотографий, дающих полное представление о продаваемом объекте, составление описания объекта со всеми конкурентными преимуществами, размещение рекламы, как на известных площадках, так и на закрытых профессиональных, где работает огромное количество риэлторов в поисках интересных объектов для своих клиентов, проведение аукционов. Именно формат проведения аукционов по продаже недвижимости дает самые быстрые результаты с учетом запросов рынка и и тересов Продавца. Сроки экспозиции объектов определяются запросом рынка и реальной стоимостью продаваемого жилья, ситуацией на рынке недвижимости. Сроки экспозиции объекта недвижимости, как показывает наша практика, разные, при быстрых сделках они составляют 20-90 дней. В настоящий момент рынок вторичной недвижимости находится в неактивной фазе. Продажа квартир осуществляется за счет наличных денег, практически без участия ипотечного кредитования, или же за счет средств ипотечного кредитования, но не в больших размерах, а только в качестве небольшого дополнения к основным, наличным средствам, что ведет к резкому сокращению объема рынка Покупателей вторичной недвижимости. В приоритете у Покупателей стоит покупка квартир в новостройках с использованием льготной ипотеки. Однако, все это не означает, что продаж на рынке вторичной недвижимости нет, они есть, и скорость продаж во многом зависит от реальной стоимости продаваемого объекта, которая определяется рынком в формате проведения аукциона. Именно проведение аукциона среди потенциальных покупателей определяет стоимость квартиры и способствует быстрой продаже. Знания, опыт, навыки наших специалистов помогут в решении Вашего вопроса по быстрой продаже квартиры. Готовы более детально изучить Ваш объект, Вашу ситуацию для разработки индивидуальной стратегии продажи, заключить эксклюзивный договор на оказание услуги, приступить к работе.

09.06.2025, рубрика «Продажа квартиры»
Константин

Вопрос: Здравствуйте. Меня интересует срочная продажа однокомнатной квартиры по адресу: Свердловская обл., г Екатеринбург, п Совхозный, ул Предельная. В пятиэтажном доме, на 3-м этаже. Мы проживаем в другом городе. Возможно ли к Вам подъехать для консультации? И в какое время?

Константин: 14.05.2025, рубрика «Продажа квартиры» Показать ответ

Немирова Оксана Владимировна

Специалист по недвижимости +79030819972

Здравствуйте, Константин. Вопрос понятен, да, конечно, мы можем помочь в срочной продаже Вашей квартиры. Если нужно срочно, то мы можем выкупить Вашу квартиру от 2-х дней до 1-й недели, всё зависит от готовности документов к продаже и стоимости квартиры. Давайте договоримся, когда Вам удобно подъехать к нам в офис для консультации, либо мы можем сразу приехать на Вашу квартиру, когда Вам будет удобно. Оставляйте заявку на нашем сайте на вызов специалиста, либо свяжитесь напрямую с любым понравившимся агентом. Всегда рады помочь.

14.05.2025, рубрика «Продажа квартиры»
Ангелина

Вопрос: Добрый день. Подскажите, пожалуйста, выгодно ли сейчас продавать квартиру? Мне от бабушки в наследство досталась квартира 1 комнатная, в пятиэтажном доме на втором этаже. Квартира с обычным ремонтом. Стоит продавать?

Ангелина: 24.01.2025, рубрика «Продажа квартиры» Показать ответ

Добрый день, Ангелина. Сказать выгодно или нет сейчас продавать недвижимость невозможно. И не потому что мы не понимаем в рынке недвижимости. А потому что в каждом конкретном случае нужно разбираться. Нужно понимать в первую очередь Вашу мотивацию. Для каких целей Вы хотите продать квартиру? Если, например, продать эту квартиру и купить другую, то здесь вопрос не столько в цене продаваемой квартиры (хотя он тоже не маловажен), но скорее вопрос в цене приобретаемого жилья и в доплате, на которую Вы рассчитываете. Если же вопрос выгоды связан с тем, что от продажи квартиры Вы планируете вложить деньги в какие-то ценные бумаги, или положить их на вклад, чтобы получать проценты, то это совсем другая ситуация. И тогда нужно считать, что выгоднее: проценты по вкладу или сдача квартиры в аренду, в т.ч. посуточную или долгосрочную. А может быть вообще хотите от продажи квартиры купить автомобиль, и тогда вопрос будет ставиться в русле: какой и за сколько? В общем, нужно понимать цели и задачи, которые Вы хотите решить после продажи квартиры. В любом случае, мы бы посоветовали для начала записаться к нам на консультацию. Для всех клиентов консультации у нас бесплатные, наш специалист поможет Вам разобраться с вопросом и уже детально сможет рассказать о том, есть ли смысл в продаже в настоящее время.

24.01.2025, рубрика «Продажа квартиры»
Александра

Вопрос: Здравствуйте, нужна помощь в продаже квартиры в городе Екатеринбурге, квартира с обременением – прописан человек – не родственник, с правом пожизненного проживания. Вступили в наследство по завещанию с таким условием. Сами проживаем в Санкт-Петербурге.

Александра: 11.11.2024, рубрика «Продажа квартиры» Показать ответ

Немирова Оксана Владимировна

Специалист по недвижимости +79030819972

Здравствуйте, Александра. Хорошо, что Вы к нам обратились. Да, мы можем помочь Вам продать Вашу квартиру в Екатеринбурге, и Вы, в дальнейшем, можете приехать только на сделку, или мы можем для Вас организовать куплю-продажу квартиры дистанционно при помощи сервисов банков и Росреестра. Получается, в случае, если в квартире прописан человек с правом пожизненного проживания, он сохраняет это право и при последующей продаже, или ином отчуждении квартиры. Квартиру при этом продать можно, но с существенным дисконтом - скидкой по цене. А также, в случае, если у него есть другое жилье, собственник квартиры может договориться с таким человеком, чтобы он добровольно выписался и написал заявление у нотариуса, о том, что он готов прекратить это право проживания в этой квартире. И здесь уже все индивидуально, какие условия выдвинет этот человек. Наши специалисты готовы помочь Вам в проведении этих сложных переговоров, в случае необходимости подобрать ему другое жилье, чтобы Вы в дальнейшем смогли продать Вашу квартиру, выполнить условия проживающего, а также соблюсти все требования законодательства. Звоните, пишите, мы всегда на связи.

11.11.2024, рубрика «Продажа квартиры»
Эдуард

Вопрос: Возможна ли продажа квартиры, если я - собственник, а в квартире проживает прописанный пожилой, лежачий родственник (без права собственности), который на основании договора дарения передал мне свою долю более 10 лет назад?

Эдуард: 20.09.2024, рубрика «Продажа квартиры» Показать ответ

Романцева Людмила Евгеньевна

Специалист по недвижимости +79530066444

Добрый день. Эдуард, конечно, Вы можете продать такую квартиру, но прежде, необходимо, чтобы все члены семьи, прописанные и проживающие в квартире, включая Вашего пожилого, лежачего родственника выписались из квартиры не позднее трех дней до сделки. Для этого Ваш родственник должен подать в регистрационные органы заявление на выписку либо самостоятельно, либо через доверенное лицо, действующее от его имени на основании нотариальной доверенности на совершение значимых юридических действий, а именно выписку/прописку. Действия Вашего родственника должны быть осознанными. В том случае, если родственник в силу болезни признан недееспособным, продать квартиру без согласия органов опеки на перемену его места жительства невозможно. Если опека разрешит продажу и покупку нового объекта недвижимости, то продать квартиру можно, но в опеку необходимо представить нотариальное обязательство, что после продажи и покупки новой недвижимости, опекаемое лицо будет прописано в новой квартире. Для получения разрешения опеки о продаже квартиры ей необходимо представить сведения по старой и новой квартирам. Поэтому, место проживания Вашего родственника необходимо определить до начала процесса продажи квартиры. Необходимо внимательно изучить договор дарения Вашего родственника в Вашу собственность. Если родственник- опекаемое лицо, то в договоре дарения может быть пункт о его пожизненном проживании в квартире. Гражданское Законодательство РФ позволяет продать квартиру на основании договора купли-продажи и с прописанными жильцами, но не имеющими право собственности в квартире. Однако, навряд ли Вы найдете покупателя на квартиру с таким «обременением». В виду того, что Ваша сделка относится к сложным, готовы помочь Вам в продаже Вашей квартиры. Мы оказываем все услуги на высоком профессиональном уровне, обеспечивая их качество, гарантируя надежность и безопасность сделки, обеспечивая максимальную выгоду для клиента. Мы работаем на Вас, мы работаем для Вас! Пишите или звоните. Готовы помочь.

20.09.2024, рубрика «Продажа квартиры»
Анжелика

Вопрос: Здравствуйте. Хочу продать квартиру в районе Вторчермета. Двухкомнатная, на втором этаже. Но проблема в том, что я пока не могу этого сделать, потому что у меня нет документов на нее, они потеряны. Могу ли я просто заказать выписку ЕГРН и продать таким образом квартиру?

Анжелика: 06.09.2024, рубрика «Продажа квартиры» Показать ответ

Добрый день, уважаемая Анжелика. Да, действительно, чтобы осуществить сделку по купле-продаже недвижимости, предоставлять документы-основания в МФЦ не требуется, так как все данные и по собственнику, и по зарегистрированным правам в Едином государственном реестре недвижимости зафиксированы. Но, на практике, продать только по выписке ЕГРН любой объект недвижимости достаточно сложно, так как покупателю важен не только сам факт принадлежности квартиры продавцу, но и основные условия, по которому это жилье стало Вашей собственностью. Т.е. ему важно понять, есть ли какие-либо особые условия, влияющие или ограничивающие его права в дальнейшем после покупки квартиры у Вас. Эти условия могут быть зафиксированы именно в правоустанавливающем документе, на основании которого право возникло. Например, если это было свидетельство о праве на наследство по закону, из него можно увидеть - на основании какого документа квартира принадлежала наследодателю и исходя из этой информации проанализировать последующие риски, которые могут возникнуть в будущем. Исходя из всего вышесказанного, можно сделать вывод о том, что отсутствие таких документов будет усложнять процесс продажи, и, соответственно, влиять на окончательную стоимость недвижимости. Но, что хотим сказать, отсутствие документов еще не основание для паники. Любые документы можно восстановить и, как следствие, продать квартиру выгодно. Мы занимаемся восстановлением любых документов для продажи. Поэтому, рекомендуем Вам связаться с любым из наших специалистов по телефонам, указанным на сайте, или записаться на бесплатную консультацию через форму обратной связи на нашем сайте. Обязательно поможем и гарантируем результат!

06.09.2024, рубрика «Продажа квартиры»
Дамир

Вопрос: Если есть единственное жилье в России - квартира. Во владении - 4 года. Может ли нерезидент продать, не платя налоги?

Дамир: 19.03.2024, рубрика «Продажа квартиры» Показать ответ

Немирова Оксана Владимировна

Специалист по недвижимости +79030819972

Здравствуйте, Дамир. Да, продать квартиру можно, если действительно единственное жилье, то налога не будет. Готовы Вам помочь в продаже и организации сделки и взаиморасчетов. Оставьте заявку на нашем сайте с подробным описанием своей квартиры и мы обязательно поможем!

19.03.2024, рубрика «Продажа квартиры»
Аркадий

Вопрос: Добрый день. Подскажите, пожалуйста. Присмотрел квартиру. Все нравится. Но у продавца осенью прошлого года была завершена процедура о признании его банкротом. Он говорит, что все долги были закрыты, эта квартира уже не вошла в конкурсную массу. Есть ли у меня риск, что квартиру отберут?

Аркадий: 09.02.2024, рубрика «Продажа квартиры» Показать ответ

Добрый день, Аркадий. К сожалению, без ознакомления с решением суда и всего дела о банкротстве, а также без изучения правоустанавливающих документов на эту квартиру, сказать что-то конкретное достаточно сложно. Но риск в любом случае присутствует. Например, в том случае, если продавец намеренно скрыл от конкурсного управляющего факт того, что он является наследником недвижимого имущества. Т.Е. во время прохождения процедуры банкротства продавец намеренно не оформлял свои наследственные права, а оформил их только после завершения данной процедуры. Поэтому, Аркадий. Не зная ничего конкретного по документам, ничего однозначно сказать невозможно. Каждую ситуацию необходимо изучать досконально и внимательно. Приходите к нам в офис вместе с продавцом, разберемся во всем и сопроводим сделку. Удачи.

09.02.2024, рубрика «Продажа квартиры»
Евгений

Вопрос: Добрый день! Вопрос о продаже недвижимости в Подмосковье. Единственный владелец недвижимости гражданин РФ, получил квартиру в наследство более 5 лет назад, в квартире прописан только владелец и это его единственная недвижимость. На данный момент владелец квартиры проживает в другой стране более трех лет и уже утратил налоговое резиденство в РФ. Вопросы в случае продажи данной недвижимости: 1. Какой процент НДФЛ должен будет оплатить владелец? 2. Может ли владелец выписаться из данной квартиры онлайн? 3. Может ли владелец продать недвижимость по доверенности выписанной гражданину Республики Казахстан?

Евгений: 26.01.2024, рубрика «Продажа квартиры» Показать ответ

Добрый день, Евгений. Получили на нашем сайте Ваш вопрос по продаже квартиры в Подмосковье. К сожалению, мы находимся в Екатеринбурге, поэтому какой-либо точной информацией о тонкостях при продаже недвижимости в Подмосковье, не владеем. Наш ответ будет построен на основании общепринятых законов и правил. Более точную информацию Вам следует уточнить у специалистов рынка недвижимости Подмосковья. Итак. 1. Что касается срока владения и уплаты налога. Согласно Федеральному закону от 27.11.2018г. № 424-ФЗ «О внесении изменений в части первую и вторую Налогового кодекса Российской Федерации и отдельные законодательные акты Российской Федерации о налогах и сборах» с 1 января 2019 года нерезиденты РФ могут не платить НДФЛ при продаже имущества, находившего в собственности более минимального срока владения (три года в случае продажи единственного жилья или пять лет в случае продажи не единственного жилья). Таким образом, в Вашей ситуции будет отсутсвовать обязанность по уплате НДФЛ. 2. Есть ли возможность при продаже жилья выписаться из объекта недвижимости, будучи находясь в другой стране, онлайн? Можем утверждать, что однозначно, да, но при условии, что у Вас есть личный кабинет на Госуслугах, заявление на выписку можно сформировать в нем. В противном случае, возможна выписка через консульство или по доверенности. Но какой способ будет применяться в Вашем случае мы сказать не можем, т.к. в каждом регионе свои требования. Например, у нас в Екатеринбурге выписка по доверенности практически невозможна, а вот через консульство мы выписывали своих клиентов и не раз. 3. По поводу доверенности на продажу, оформленной в Казахстане, либо на жителя Казахстана — если она будет оформлена с соблюдением всех требований, предъявляемых при выдачи такого документа, то, несомненно, продажа возможна. В любом случае, мы рекомендуем получить ответы на свои вопросы непосредственно у тех специалистов, которые ведут сделки в регионе места нахождения объекта недвижимости, так как могут быть свои нюансы и тонкости. Желаем Вам удачи.

26.01.2024, рубрика «Продажа квартиры»

Показать все вопросы

Полозова Светлана Владимировна

Портфолио:

Портфолио по продаже 3-комнатной квартиры на Эльмаше

06.03.2026, рубрика «Продажа квартиры» Показать полностью
Романцева Людмила Евгеньевна

Романцева Людмила Евгеньевна

Специалист по недвижимости +79530066444

Портфолио:

Портфолио по продаже квартиры Старых БОЛЬШЕВИКОВ, 84

10.03.2025, рубрика «Продажа квартиры» Показать полностью
Немирова Оксана Владимировна

Немирова Оксана Владимировна

Специалист по недвижимости +79030819972

Портфолио:

Портфолио продажа квартиры на Бардина

20.09.2024, рубрика «Продажа квартиры» Показать полностью
Немирова Оксана Владимировна

Немирова Оксана Владимировна

Специалист по недвижимости +79030819972

Портфолио:

Портфолио по продаже квартиры в новом доме на Широкой речке

26.12.2023, рубрика «Продажа квартиры» Показать полностью
Полозова Светлана Владимировна

Портфолио:

Портфолио по продаже квартиры на Тверитина

25.12.2023, рубрика «Продажа квартиры» Показать полностью
Немирова Оксана Владимировна

Немирова Оксана Владимировна

Специалист по недвижимости +79030819972

Портфолио:

Продажа квартиры по доверенности

26.07.2022, рубрика «Продажа квартиры» Показать полностью
Полозова Светлана Владимировна

Портфолио:

Продажа квартиры в ипотеке Сбербанка

14.02.2022, рубрика «Продажа квартиры» Показать полностью
Немирова Оксана Владимировна

Немирова Оксана Владимировна

Специалист по недвижимости +79030819972

Портфолио:

История продажи квартиры

18.01.2022, рубрика «Продажа квартиры» Показать полностью
Немирова Оксана Владимировна

Немирова Оксана Владимировна

Специалист по недвижимости +79030819972

Портфолио:

Продажа квартиры в центре

12.09.2021, рубрика «Продажа квартиры» Показать полностью
Немирова Оксана Владимировна

Немирова Оксана Владимировна

Специалист по недвижимости +79030819972

Портфолио:

Как я продавала квартиру на улице Лермонтова

13.07.2021, рубрика «Продажа квартиры» Показать полностью

Показать все портфолио

3-комнатная квартира, 71 м2, 3/27 эт.
Обмен
Ипотека
Рассрочка
Скидка
3-комнатная квартира, 71 м2, 3/27 эт.
Екатеринбург, Шарташский рынок
ул. Куйбышева
10.82 млн ₽
152 394 ₽/м2
47 636 ₽/мес
2-комнатная квартира, 52 м2, 17/27 эт.
Обмен
Ипотека
Рассрочка
2-комнатная квартира, 52 м2, 17/27 эт.
Екатеринбург, Шарташский рынок
ул. Куйбышева
8.38 млн ₽
161 153 ₽/м2
36 894 ₽/мес
1-комнатная квартира, 34 м2, 6/27 эт.
Обмен
Ипотека
Рассрочка
1-комнатная квартира, 34 м2, 6/27 эт.
Екатеринбург, Шарташский рынок
ул. Куйбышева
5.78 млн ₽
170 000 ₽/м2
25 447 ₽/мес
Квартира-студия, 25 м2, 3/27 эт.
Ипотека
Квартира-студия, 25 м2, 3/27 эт.
Екатеринбург, Шарташский рынок
ул. Куйбышева
4.28 млн ₽
171 200 ₽/м2
18 843 ₽/мес
3-комнатная квартира, 89 м2, 9/30 эт.
Обмен
Ипотека
Рассрочка
3-комнатная квартира, 89 м2, 9/30 эт.
Екатеринбург, Эльмаш
пр. Космонавтов
12.71 млн ₽
142 753 ₽/м2
55 935 ₽/мес
2-комнатная квартира, 63 м2, 6/30 эт.
Обмен
Ипотека
Рассрочка
2-комнатная квартира, 63 м2, 6/30 эт.
Екатеринбург, Эльмаш
пр. Космонавтов
8.98 млн ₽
142 590 ₽/м2
39 549 ₽/мес
3-комнатная квартира, 68 м2, 8/23 эт.
Обмен
Ипотека
Рассрочка
Скидка
3-комнатная квартира, 68 м2, 8/23 эт.
Екатеринбург, Уктус
ул. Щербакова
10.38 млн ₽
152 647 ₽/м2
45 699 ₽/мес
2-комнатная квартира, 51 м2, 9/23 эт.
Обмен
Ипотека
Рассрочка
2-комнатная квартира, 51 м2, 9/23 эт.
Екатеринбург, Уктус
ул. Щербакова
8.31 млн ₽
162 941 ₽/м2
36 586 ₽/мес
1-комнатная квартира, 35 м2, 14/23 эт.
Обмен
Ипотека
Рассрочка
1-комнатная квартира, 35 м2, 14/23 эт.
Екатеринбург, Уктус
ул. Щербакова
6.16 млн ₽
176 000 ₽/м2
27 120 ₽/мес
Квартира-студия, 27 м2, 2/23 эт.
Обмен
Ипотека
Рассрочка
Квартира-студия, 27 м2, 2/23 эт.
Екатеринбург, Уктус
ул. Щербакова
4.64 млн ₽
171 851 ₽/м2
20 428 ₽/мес
3-комнатная квартира, 88 м2, 4/25 эт.
Обмен
Ипотека
Рассрочка
3-комнатная квартира, 88 м2, 4/25 эт.
Екатеринбург, Шарташский рынок
ул. Ивана Марина
15.32 млн ₽
174 075 ₽/м2
67 442 ₽/мес
2-комнатная квартира, 64 м2, 5/25 эт.
Обмен
Ипотека
Рассрочка
2-комнатная квартира, 64 м2, 5/25 эт.
Екатеринбург, Шарташский рынок
ул. Ивана Марина
11.82 млн ₽
184 668 ₽/м2
52 034 ₽/мес
3-комнатная квартира, 86 м2, 6/7 эт.
Обмен
Ипотека
Рассрочка
3-комнатная квартира, 86 м2, 6/7 эт.
Екатеринбург, Эльмаш
ул. Энтузиастов
15.80 млн ₽
183 709 ₽/м2
69 557 ₽/мес
2-комнатная квартира, 59 м2, 18/30 эт.
Обмен
Ипотека
Рассрочка
2-комнатная квартира, 59 м2, 18/30 эт.
Екатеринбург, Эльмаш
ул. Энтузиастов
9.79 млн ₽
165 924 ₽/м2
43 100 ₽/мес
1-комнатная квартира, 40 м2, 12/30 эт.
Обмен
Ипотека
Рассрочка
1-комнатная квартира, 40 м2, 12/30 эт.
Екатеринбург, Эльмаш
ул. Энтузиастов
7.20 млн ₽
179 980 ₽/м2
31 695 ₽/мес

Показать все объекты