ДОМ НЕДВИЖИМОСТИ
НЕДВИЖИМОСТЬ ЕКАТЕРИНБУРГА
НАЗАД К СПИСКУ

Главная  /  

Недвижимость  /  

Вторичная недвижимость  /  

Трехкомнатные квартиры  /  

Продажа 3-комнатной квартиры

Подбор, покупка, продажа, обмен квартир. Бесплатные консультации по недвижимости. ЗАДАТЬ ВОПРОС ПОЗВОНИТЬ

Подбор, покупка, продажа, обмен квартир. Бесплатные консультации по недвижимости. ЗАДАТЬ ВОПРОС

Продажа 3-комнатной квартиры

Продажа 3-комнатной квартиры

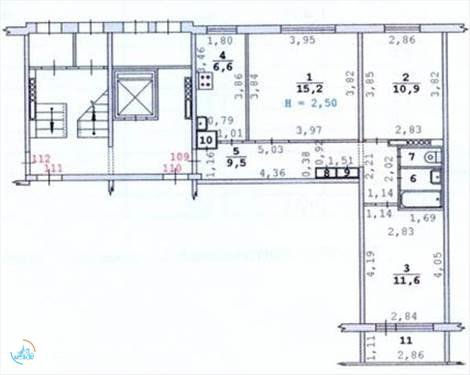
Екатеринбург, Юго-Западный, ул. Белореченская, 29

Площадь: Общая: 59 м2  Жилая: 34 м2  Кухня: 8 м2

6 900 000 ₽
ПРЕДЛОЖИТЬ СВОЮ ЦЕНУ
116 949 ₽/м2
 30 378 ₽/мес
ПРЕДЛОЖИТЬ СВОЮ ЦЕНУ
Полозова Светлана Владимировна
Агент объекта

Полозова Светлана Владимировна

+79086315339

Детали:

Кол-во комнат продается: 3
Кол-во комнат в квартире: 3
Этаж: 4
Этажность дома: 9
Материал дома: Панель
Тип квартиры: Пентагон
Санузел: Раздельный
Лоджия Есть
Интернет: Нет
Автобус: Есть
Трамвай: Есть
Троллейбус: Нет
Метро: Нет
Ипотека: Да
Документы готовы: Да
Условие продажи: Чистая продажа

Комментарий:

АН Дом Недвижимости продает 3-х комнатную квартиру на 4-м этаже 9-ти этажного  панельного дома 1970 года постройки. В квартире сделана перепланировка, которая позволила организовать большую, уютную гостиную. Две отдельные спальни с окнами на разные стороны. Застекленная лоджия защищает одну из спален от шума с дороги. Санузел и ванна в кафеле.  В комнатах на полу линолеум.

Помогу купить, продать квартиру или другую недвижимость безопасно и быстро

Продать комнату в Екатеринбурге купить

Купить 1-комнатную квартиру продать

Продать 2-комнатную квартиру купить

Купить 3-комнатную квартиру продать

Продать 4-комнатную квартиру купить

Ипотека

Ежемесячный платеж

30 378 ₽/мес
ОФОРМИТЬ ЗАКАЗ
Ирина

Отзыв: Огромная благодарность Светлане Владимировне за помощь в продаже долей по наследству. Я через многое прошла, чтобы добиться от родственников купить мои доли в двух квартирах и гараже, оставшихся по наследству от матери. Они не выходили на связь и я потеряла надежду на получение денег за доли. Моим ...последним решением стало обратиться в Дом Недвижимости. Мягко и ненавязчиво Светлана Владимировна решила проблему общения с родственниками. Мои "оппоненты" не сразу, но под профессиональным и чутким сопровождением Светланы Владимировны, согласились на встречу с нотариусом для сделки купли-продажи. Спасибо Дому Недвижимости за честность, профессионализм и психологическую поддержку!

Ирина: 18.04.2026, рубрика «Продажа квартиры» Показать все
Ирина Васильевна

Отзыв: Хотели бы поблагодарить Светлану Владимировну за отличную организацию продажи нашей квартиры. Квартира была в собственности у меня с дочерью, которая уже очень много лет живет в другой стране. Светлана заранее подготовила образец доверенности, дочь сделала ее в Консульстве и отправила мне в Россию. ...Она молодец, учла все настоящие и возможно будущие варианты исхода событий для любой сделки и включила их в доверенность. Осложнялось все еще тем, что в квартире был прописан мой внук, у которого был просрочен российский и загранпаспорт, и был только паспорт гражданина другой страны. Но Светлана все организовала и нам удалось его выписать. Сделка прошла без сучка и задоринки. В сбербанке. Я, как пожилой человек, вначале очень сильно волновалась и переживала, но потом успокоилась, доверилась ей и осталась очень довольна. Благодарим душевно за помощь!

Ирина Васильевна: 02.03.2026, рубрика «Продажа квартиры» Показать все
Тамара Ильинична

Отзыв: Я человек пожилой и мне было очень трудно довериться кому-то, тем более сейчас так много всяких мошенников. Но мне нужно было как-то продать свою квартиру и уехать в другой регион к сыну. Вот он мне и помог с выбором. Перечитал много отзывов, посмотрел сайты и пообщался с риэлторами. В итоге останов...ился на агентстве Дом Недвижимости, дал мне телефон и я позвонила Светлане Владимировне. Я очень рада, что он дал мне телефон именно ее. Продажа квартиры с ней у меня прошла в спокойном темпе, она отвечала на все мои вопросы и сомнения, ведь я многого не понимала и не знала. Она очень чуткая, терпеливая и внимательная девушка, особенно к пенсионерам. Помогала мне даже в тех вопросах, которые напрямую не касались сделки. Я осталась очень довольна работой данной компании. Всем советую.

Тамара Ильинична: 17.02.2026, рубрика «Продажа квартиры» Показать все
Ирина Александровна

Отзыв: Продавали со Светланой Владимировной квартиру, на которой было наложено 4 запрета на регистрацию. Что понравилось, так это то, что взялась за работу она без всяких вопросов, сама ходила к приставам и вела все переговоры с ними по снятию обременений, подготовила самостоятельно квартиру к сделке по д...окументам, была нашим представителем везде от и до. Мы очень рады, что она помогла нам решить нашу сложную ситуацию. Мы остались очень довольны.

Ирина Александровна: 11.01.2026, рубрика «Продажа квартиры» Показать все
Елена Освальд

Отзыв: Хочу поблагодарить Полозову Светлану Владимировну за проделанную работу по продаже квартиры. Тактичная, профессионал в своём деле. Всегда была на связи, даже не в рабочее время. Информировала, подробно объясняла. Рекомендую всем, кто в поисках риэлтора. Спасибо Вам, Светлана Владимировна!...

Елена Освальд: 13.12.2025, рубрика «Продажа квартиры» Показать все
Надежда Владимировна

Отзыв: Выражаю искреннюю благодарность агентству недвижимости Дом недвижимости и лично Романцевой Людмиле Евгеньевне за профессиональную помощь в продаже нашей недвижимости. Хочу отметить высокий уровень компетентности и профессионализма Людмилы Евгеньевны на всех этапах работы. Она полностью взяла на себя... заботы, связанные с продажей объекта, и проделала огромную работу: грамотно провела оценку рыночной стоимости, организовала качественные показы Объекта, эффективно вела переговоры с покупателями, обеспечила полное юридическое сопровождение сделки, оперативно решала все вопросы. Особую признательность хочу выразить за внимательное отношение к нашим пожеланиям и четкое понимание всех нюансов сделки. Благодаря профессионализму Людмилы Евгеньевны процесс продажи прошел максимально быстро и комфортно для нас. Рекомендую Романцеву Людмилу Евгеньевну как высокопрофессионального специалиста по недвижимости, которому можно доверить решение любых вопросов, связанных с продажей или покупкой недвижимости.

Надежда Владимировна: 06.11.2025, рубрика «Продажа квартиры» Показать все
Макс

Отзыв: Добрый день. Хочу поблагодарить Дом Недвижимости и конкретно заместителя директора Светлану за оперативную продажу моей студии. Сам я проживаю в другом регионе, поэтому сотрудничал с ней дистанционно: от показов до самой сделки. Понравились и сама ее работа, и общение с ней. Приятная, коммуникабельн...ая и профессионал своего дела. Желаю благодарных клиентов и развития.

Макс: 17.09.2025, рубрика «Продажа квартиры» Показать все
Максим

Отзыв: Огромное спасибо Оксане Владимировне специалисту агентства Дом Недвижимости за профессионализм и помощь в продаже моей квартиры! Она быстро нашла покупателей, буквально в течение недели, что меня вполне устроило и даже без торга. Сделка прошла быстро и гладко, все вопросы решались оперативно. Реко...мендую риэлтора и агентство! Думаю, что в дальнейшем буду покупать дом с этим агентом.

Максим: 01.09.2025, рубрика «Продажа квартиры» Показать все
Ираклий

Отзыв: Хочу сказать большое спасибо заместителю директора Светлане Владимировне за помощь в продаже квартиры в городе Екатеринбурге. Мы с супругой остались довольны результатом. Больше всего понравилось то, что она не дергала нас по пустякам, а все вопросы и предложения были по существу и важными. Сделка п...рошла легко, спокойно и быстро.

Ираклий: 22.05.2025, рубрика «Продажа квартиры» Показать все
Татьяна

Отзыв: Хочу выразить огромную благодарность Немировой Оксане Владимировне и АН Дом Недвижимости за грамотно проведенную сделку по продаже квартиры. У меня была очень не простая ситуация: я хотела продать долю в квартире, были долги, и вторая сторона не настроена была продавать квартиру. Оксана Владимиров...на провела переговоры со второй стороной, и очень быстро нашла покупателя на всю квартиру целиком. Но продажа осложнилась форс мажором. Оксана Владимировна удачно смогла решить все проблемы, и сделка была заключена. Я с уверенностью могу сказать, что Оксана Владимировна очень хороший профессионал в своем деле, она ещё очень хороший человек: милая, дружелюбная, коммуникабельная. Рекомендую Дом Недвижимости.

Татьяна: 02.03.2025, рубрика «Продажа квартиры» Показать все
Валентина

Отзыв: Хочется сказать большое спасибо сотруднику агенства "ДОМ НЕДВИЖИМОСТИ" Немировой Оксане Владимировне за быструю и качественно проведенную сделку по продаже нашей квартиры. Оксана Владимировна милый и приветливый человек, который обладает высокими профессиональными качествами, чётко и быстро решает... вопросы, возникающие в процессе оформления документов. Все рекомендации и советы с её стороны были абсолютно правильными. При заверении сделки у нотариуса все документы и справки были приняты без единого вопроса. Хочется пожелать Оксане Владимировне и агенству "ДОМ НЕДВИЖИМОСТИ " дальнейших успехов в работе и процветания.

Валентина: 15.11.2024, рубрика «Продажа квартиры» Показать все
Анна

Отзыв: Благодарим компанию «Дом Недвижимости» и нашего риэлтора Немирову Оксану Владимировну за быструю продажу квартиры. Сделка прошла успешно, возникшие затруднения решили оперативно. Оксана Владимировна ответственный человек и грамотный специалист, подробно объясняет все нюансы и подводные камни, покупа...ть квартиру тоже будем с ней.

Анна: 10.09.2024, рубрика «Продажа квартиры» Показать все
Наталья

Отзыв: Спешу выразить слова благодарности Светлане. Продавала квартиру в Екатеринбурге ( сама живу в другом регионе) . Светлана-специалист своего дела! Помогла с подготовкой документов для продажи, квартира продалась очень быстро. Если ещё раз придется обратиться к риэлтору в Екатеринбурге, то только к Све...тлане в «Дом Недвижимости») Спасибо ещё раз, Светлана!

Наталья: 06.08.2024, рубрика «Продажа квартиры» Показать все
Надежда

Отзыв: Хочется выразить огромную благодарность Полозовой Светлане Владимировне за высокий уровень профессионализма, неизменную доброжелательность, отзывчивость и искреннее сочувствие. Ей удалось помочь в невероятно сложной ситуации максимально комфортно для меня. Столько сил ею было приложено для очень усп...ешного разрешения всех проблем! Большое спасибо! Если возникнет какая-нибудь подобная задача, только Светлане Владимировне смогу доверить ее решение.

Надежда: 05.05.2024, рубрика «Продажа квартиры» Показать все
Светлана

Отзыв: День добрый! Хочется выразить благодарность Полозовой Светлане за проделанную работу по продаже квартиры, сделка была не из простых и обременение с крупной суммой остатка по ипотеке и продавцов несколько из разных регионов, вообще - то были ещё проволочки, но Светлана, не смотря ни на что, достаточн...о быстро продала наш объект по хорошей цене. Все случилось достаточно быстро, а главное - просто. Если обращаться за услугами риэлтора, то однозначно рекомендую !!!

Светлана: 09.02.2024, рубрика «Продажа квартиры» Показать все

Показать все отзывы

Анастасия

Вопрос: Здравствуйте, Нужна помощь в продаже квартиры с обременением ( есть задолженность по кредитам). Оказываете такие услуги?

Анастасия: 06.04.2026, рубрика «Продажа квартиры» Показать ответ

Немирова Оксана Владимировна

Специалист по недвижимости +79030819972

Здравствуйте, Анастасия. Хорошо, что Вы к нам обратились. Да, мы можем Вам помочь в продаже Вашей квартиры с обременением. Обычно эти обременения накладывает Служба судебных приставов. При продаже таких объектов необходимо грамотно провести переговоры с покупателем, правильно оформить передачу денег за квартиру и оплату всех задолженностей, чтобы были сняты все обременения. А также нужно будет на приеме у приставов уточнить точные суммы задолженности. Если у Вас как у собственников квартиры нет возможности это сделать, то Вы можете оформить нотариальную доверенность на оформление документов и мы всю подготовку необходимых документов сделаем за Вас. Мы имеем большой опыт работы с такими объектами. Предлагаем Вам созвониться и договориться о дальнейших действиях. Можем подъехать и к Вам.

06.04.2026, рубрика «Продажа квартиры»
Олеся

Вопрос: Добрый вечер! Сейчас живём в родительской квартире мужа. В квартире у каждого есть доля, это 5 человек. Они не против продажи, если муж будет продавать,то остальные у кого есть доли, могут подтвердить, что не против или нужно нотариально все заверить? И будем продавать всю квартиру целиком?

Олеся: 23.03.2026, рубрика «Продажа квартиры» Показать ответ

Немирова Оксана Владимировна

Специалист по недвижимости +79030819972

Добрый день, Олеся. Хорошо, что Вы обратились к нам. По Вашему вопросу можем сказать, что в данный момент времени, если квартира продаётся целиком, хотя собственниками являются несколько человек - взрослых, то Вы можете продавать в простой письменной форме, не обращаясь к нотариусу, это в случае, если все обладатели долей будут продавать по одному договору купли-продажи, расчёты можно при этом произвести каждому соразмерно его доли. Обязательному нотариальному удостоверению подлежат сделки, в которых есть доли несовершеннолетних детей, либо если есть собственники, находящиеся под опекой, либо продается отдельно какая-либо доля в объекте недвижимости ( квартире, комнате, доме и др.). Все, что касается продажи долевой собственности всегда сопряжено с условием привести к компромиссу, чтобы продажа состоялась. И в этом случае риэлтор может выступать независимым экспертом, который и организует сделку, расчеты, и оформление документов, комфортно для всех сторон - продавцов и покупателей. Приходите к нам. Мы обязательно поможем решить Ваш вопрос по недвижимости самым наилучшим образом для Вас. Предлагаем созвониться и договориться о дальнейших действиях. Можем подъехать к Вам.

23.03.2026, рубрика «Продажа квартиры»
Дмитрий

Вопрос: Хочу продать комнату в родительской квартире, в которой они живут. Им самим или другому покупателю.

Дмитрий: 21.03.2026, рубрика «Продажа квартиры» Показать ответ

Добрый день, Дмитрий. Конечно, мы можем помочь с продажей Вашей комнаты. Но для начала необходимо произвести ее оценку. Для этого нам нужны следующие показатели: сколько комнат в квартире, какой метраж комнаты, какой этаж, какого типа дом, материал дома. Далее необходимо будет отправить уведомление Вашим родителям о намерении продать комнату. У них будет 30 дней, чтобы ее купить. Если они проигнорируют предложение, то мы сможем продавать ее другим лицам. За более подробной консультацией рекомендуем обратиться к любому из наших специалистов, которого Вы можете выбрать на нашем сайте, и связаться с ним. Мы обязательно Вам поможем!

21.03.2026, рубрика «Продажа квартиры»
Анжелика

Вопрос: Здравствуйте, можно ли продать квартиру (ВИЗ 3-х комнатная) с обременением в виде отказавшейся от приватизации и проживающей в квартире сестре 53 лет.

Анжелика: 27.01.2026, рубрика «Продажа квартиры» Показать ответ

Уважаемая, Анжелика. С одной стороны, согласно статье 209 ГК РФ, собственнику принадлежат права владения, пользования и распоряжения своим имуществом. Это означает, что Вы, являясь собственником квартиры, имеете полное право распоряжаться ею по своему усмотрению, включая продажу третьему лицу, без обязательного согласования с Вашей сестрой. При этом, согласно ст. 558 ГК РФ есть обязательное требование относительно договора купли-продажи жилого помещения: в договоре обязательно должно быть указано наличие лиц, имеющих право проживания в помещении даже после смены собственника. Даже новый собственник не сможет выселить Вашу сестру из данной квартиры. Только с ее личного согласия. С другой стороны, такие сделки купли-продажи, где проживают такие лица, практически не возможны. Никто в здравом уме не захочет покупать квартиру с пожизненно проживающим в ней лицом. Поэтому рекомендуем провести переговоры с сестрой по поводу того, что Вы приобретете ей другую квартиру взамен ее выписки из квартиры и права проживать в ней. Мы можем помочь Вам в проведении таких переговоров. Как правило, когда ведением переговоров занимаются третьи лица, сторонам удается найти компромисс и решить вопрос таким образом, чтобы все участники процесса остались довольны результатом. Звоните. Постараемся помочь.

27.01.2026, рубрика «Продажа квартиры»
Оксана

Вопрос: Здравствуйте. Интересует продажа доли. Есть долги. В квартире не живу. Там проживает бывший муж. Как продать долю с долгами?

Оксана: 01.10.2025, рубрика «Продажа квартиры» Показать ответ

Уважаемая Оксана. Если мы Вас правильно поняли, то под долгами Вы подразумеваете задолженность по коммунальным услугам и капитальному ремонту. В таком случае никаких препятствий для продажи нет, погасить долг можно и с продажи. Главное, чтобы на квартире не был наложен арест или запрет на регистрационные действия. Но даже, если они и есть, то с такими объектами тоже можем справиться. Важно понимать в этом случае, кто будет являться конечным покупателем Вашей доли. Если бывший супруг, то это одна история. Если же третье лицо, то здесь уже совсем другой процесс сделки. Поэтому рекомендуем Вам связаться с нами по телефону или через форму обратной связи, чтобы обсудить детали и спланировать план действий по продаже. Ждем Вашего звонка. Обязательно поможем.

01.10.2025, рубрика «Продажа квартиры»
Юлия

Вопрос: Здравствуйте. Продаю комнату в коммунальной квартире на улице Ангарской, площадью около 15 кв.м. Прошу проконсультировать по поводу отказа от преимущественного права покупки для несовершеннолетних собственников (не могу понять порядок сбора и подачи документов). Вся сложность в том, что в одной комнате несовершеннолетний собственник, которому досталась жил.площадь по праву наследования и он находится под опекой бабушки и дедушки. Они приезжают в июле не на долго (живут где-то в области). Хотелось бы попросить помощи в подготовке всех необходимых документов для продажи. Собственник - моя мама, доверенность у нотариуса уже оформили на меня.

Юлия: 27.06.2025, рубрика «Продажа квартиры» Показать ответ

Романцева Людмила Евгеньевна

Специалист по недвижимости +79530066444

Добрый день, Юлия! Благодарим за обращение в наше агентство.В ответ на Ваш вопрос о возможности продажи комнаты Вашей мамы в коммунальной квартире, в одной из комнат которой сособственником является несовершеннолетний ребенок, владеющий этой собственностью на основании наследства по закону и опекаемый своими бабушкой и дедушкой, сообщаю следующее: комнату мамы, имея нотариально оформленную доверенность на Ваше имя, Вы можете продать, но при этом выполнить все требования законодательных актов.Сособственники согласно статье 250 ГК РФ имеют преимущественное право на покупку Вашей комнаты по цене, указанной Вами в течение одного месяца после получения Вашего уведомления о продаже своей комнате и ее стоимости.Уведомление осуществляется посредством телеграммы, если в течение месяца от сособственника нет подтверждения о готовности покупки Вашей комнаты, Вы имеете право продать ее другим лицам. Можно также получить нотариально заверенный отказ каждого сособственника от покупки Вашей комнаты. В Вашем случае одним из сособственников является несовершеннолетний ребенок , поэтому, нотариально заверенный отказ от покупки комнаты, обязателен. В виду того, что сособственник не достиг возраст совершеннолетия, от его имени действуют попечители либо опекуны, в данном случае- бабушка и дедушка. Однако, оформление нотариально заверенного отказа от покупки Вашей комнаты несовершеннолетним сособственником в лице его опекунов возможно только после разрешения опеки на оформление отказа от покупки. Разрешение опеки на оформление отказа от покупки делается по месту регистрации несовершеннолетнего сособственника при предъявлении определенного пакета документов, который определяют органы опеки, вся информация по перечню документов, необходимых для получения разрешения на нотариальный отказ от покупки комнаты, предоставляются либо опекунам, либо попечителям. Приходите к нам на более подробную консультацию, обязательно поможем все оформить и продать Вашу комнату по максимально возможной цене.

27.06.2025, рубрика «Продажа квартиры»
Александра

Вопрос: Здравствуйте. У меня квартира в ипотеке. Банк ВТБ, остаток долга порядка 3.000.000 рублей. Квартира в новом доме. Дело в том, что когда я ее покупала, мое финансовое положение было хорошим, а сейчас ситуация изменилась, и мне сложно платить за нее. Скажите, возможно ли продать такую квартиру?

Александра: 11.06.2025, рубрика «Продажа квартиры» Показать ответ

Добрый день, Александра. Да. Продать такую квартиру никто запретить Вам не может. Другой вопрос, кто на сегодняшний день является покупателем такой недвижимости? Это те, кто ищут для себя жилье за наличные, либо приобретают новое жилье на денежные средства, вырученные от продажи своей старой недвижимости, с небольшой доплатой в виде ипотеки. Семейная ипотека или ай-ти ипотека, к сожалению, на вторичном рынке невозможна, а именно по этим двум программам привлекательные ставки. Помимо этого хотим добавить, что в настоящий момент рынок находится в стадии стагнации, а это влияет на цены на вторичку. Учитывая, что квартира находится в залоге у банка, покупатели неохотно рассматривают приобретение таких объектов. Поэтому, рекомендуем сделать тщательный анализ конкурентов, рынка в целом и перспективы реализации Вашей квартиры. А еще лучше - приходите к нам, обязательно вместе продадим наиболее выгодно Вашу квартиру.

11.06.2025, рубрика «Продажа квартиры»
Мария

Вопрос: Добрый день! Меня зовут Мария. Я собственник квартиры в Екатеринбурге (1-комнатная, 36,2 м?, 12/33 эт.). Квартира выставлена на продажу, но за два месяца продвижения практически не было результата — очень низкий отклик, всего один звонок. Сейчас я рассматриваю вариант подключения нового агента или команды, так как цель — максимально быстрая продажа квартиры, в приоритете именно результат. Квартира находится в долгосрочной аренде, арендаторы адекватные, показы возможны по договорённости. Готова обсудить условия досрочного освобождения при необходимости. Скажите, были ли у вас такие кейсы (продажа квартиры с арендаторами)?

Мария: 09.06.2025, рубрика «Продажа квартиры» Показать ответ

Романцева Людмила Евгеньевна

Специалист по недвижимости +79530066444

Мария, добрый день! Благодарим за Ваше обращение. Конечно же, наши специалисты занимаются быстрыми продажами квартир, в том числе и с проживающими арендаторами. Работа по оказанию услуги быстрой продажи недвижимости ведется на основании эксклюзивного договора, предусматривающего все этапы продажи с момента подписания договора до момента подписания акта приема-передачи объекта от Продавца к Покупателю. Стратегия продажи каждого объекта определяется индивидуально, исходя из истории, характеристики объекта, анализа рынка, целей продажи данного объекта. Быстрая продажа объекта недвижимости требует особого подхода, использования таких инструментов как: глубокий анализ рынка недвижимости, выявление и тщательное изучение ближайших конкурентов, определение актуальной стоимости объекта недвижимости, изготовление качественных фотографий, дающих полное представление о продаваемом объекте, составление описания объекта со всеми конкурентными преимуществами, размещение рекламы, как на известных площадках, так и на закрытых профессиональных, где работает огромное количество риэлторов в поисках интересных объектов для своих клиентов, проведение аукционов. Именно формат проведения аукционов по продаже недвижимости дает самые быстрые результаты с учетом запросов рынка и и тересов Продавца. Сроки экспозиции объектов определяются запросом рынка и реальной стоимостью продаваемого жилья, ситуацией на рынке недвижимости. Сроки экспозиции объекта недвижимости, как показывает наша практика, разные, при быстрых сделках они составляют 20-90 дней. В настоящий момент рынок вторичной недвижимости находится в неактивной фазе. Продажа квартир осуществляется за счет наличных денег, практически без участия ипотечного кредитования, или же за счет средств ипотечного кредитования, но не в больших размерах, а только в качестве небольшого дополнения к основным, наличным средствам, что ведет к резкому сокращению объема рынка Покупателей вторичной недвижимости. В приоритете у Покупателей стоит покупка квартир в новостройках с использованием льготной ипотеки. Однако, все это не означает, что продаж на рынке вторичной недвижимости нет, они есть, и скорость продаж во многом зависит от реальной стоимости продаваемого объекта, которая определяется рынком в формате проведения аукциона. Именно проведение аукциона среди потенциальных покупателей определяет стоимость квартиры и способствует быстрой продаже. Знания, опыт, навыки наших специалистов помогут в решении Вашего вопроса по быстрой продаже квартиры. Готовы более детально изучить Ваш объект, Вашу ситуацию для разработки индивидуальной стратегии продажи, заключить эксклюзивный договор на оказание услуги, приступить к работе.

09.06.2025, рубрика «Продажа квартиры»
Константин

Вопрос: Здравствуйте. Меня интересует срочная продажа однокомнатной квартиры по адресу: Свердловская обл., г Екатеринбург, п Совхозный, ул Предельная. В пятиэтажном доме, на 3-м этаже. Мы проживаем в другом городе. Возможно ли к Вам подъехать для консультации? И в какое время?

Константин: 14.05.2025, рубрика «Продажа квартиры» Показать ответ

Немирова Оксана Владимировна

Специалист по недвижимости +79030819972

Здравствуйте, Константин. Вопрос понятен, да, конечно, мы можем помочь в срочной продаже Вашей квартиры. Если нужно срочно, то мы можем выкупить Вашу квартиру от 2-х дней до 1-й недели, всё зависит от готовности документов к продаже и стоимости квартиры. Давайте договоримся, когда Вам удобно подъехать к нам в офис для консультации, либо мы можем сразу приехать на Вашу квартиру, когда Вам будет удобно. Оставляйте заявку на нашем сайте на вызов специалиста, либо свяжитесь напрямую с любым понравившимся агентом. Всегда рады помочь.

14.05.2025, рубрика «Продажа квартиры»
Ангелина

Вопрос: Добрый день. Подскажите, пожалуйста, выгодно ли сейчас продавать квартиру? Мне от бабушки в наследство досталась квартира 1 комнатная, в пятиэтажном доме на втором этаже. Квартира с обычным ремонтом. Стоит продавать?

Ангелина: 24.01.2025, рубрика «Продажа квартиры» Показать ответ

Добрый день, Ангелина. Сказать выгодно или нет сейчас продавать недвижимость невозможно. И не потому что мы не понимаем в рынке недвижимости. А потому что в каждом конкретном случае нужно разбираться. Нужно понимать в первую очередь Вашу мотивацию. Для каких целей Вы хотите продать квартиру? Если, например, продать эту квартиру и купить другую, то здесь вопрос не столько в цене продаваемой квартиры (хотя он тоже не маловажен), но скорее вопрос в цене приобретаемого жилья и в доплате, на которую Вы рассчитываете. Если же вопрос выгоды связан с тем, что от продажи квартиры Вы планируете вложить деньги в какие-то ценные бумаги, или положить их на вклад, чтобы получать проценты, то это совсем другая ситуация. И тогда нужно считать, что выгоднее: проценты по вкладу или сдача квартиры в аренду, в т.ч. посуточную или долгосрочную. А может быть вообще хотите от продажи квартиры купить автомобиль, и тогда вопрос будет ставиться в русле: какой и за сколько? В общем, нужно понимать цели и задачи, которые Вы хотите решить после продажи квартиры. В любом случае, мы бы посоветовали для начала записаться к нам на консультацию. Для всех клиентов консультации у нас бесплатные, наш специалист поможет Вам разобраться с вопросом и уже детально сможет рассказать о том, есть ли смысл в продаже в настоящее время.

24.01.2025, рубрика «Продажа квартиры»
Александра

Вопрос: Здравствуйте, нужна помощь в продаже квартиры в городе Екатеринбурге, квартира с обременением – прописан человек – не родственник, с правом пожизненного проживания. Вступили в наследство по завещанию с таким условием. Сами проживаем в Санкт-Петербурге.

Александра: 11.11.2024, рубрика «Продажа квартиры» Показать ответ

Немирова Оксана Владимировна

Специалист по недвижимости +79030819972

Здравствуйте, Александра. Хорошо, что Вы к нам обратились. Да, мы можем помочь Вам продать Вашу квартиру в Екатеринбурге, и Вы, в дальнейшем, можете приехать только на сделку, или мы можем для Вас организовать куплю-продажу квартиры дистанционно при помощи сервисов банков и Росреестра. Получается, в случае, если в квартире прописан человек с правом пожизненного проживания, он сохраняет это право и при последующей продаже, или ином отчуждении квартиры. Квартиру при этом продать можно, но с существенным дисконтом - скидкой по цене. А также, в случае, если у него есть другое жилье, собственник квартиры может договориться с таким человеком, чтобы он добровольно выписался и написал заявление у нотариуса, о том, что он готов прекратить это право проживания в этой квартире. И здесь уже все индивидуально, какие условия выдвинет этот человек. Наши специалисты готовы помочь Вам в проведении этих сложных переговоров, в случае необходимости подобрать ему другое жилье, чтобы Вы в дальнейшем смогли продать Вашу квартиру, выполнить условия проживающего, а также соблюсти все требования законодательства. Звоните, пишите, мы всегда на связи.

11.11.2024, рубрика «Продажа квартиры»
Эдуард

Вопрос: Возможна ли продажа квартиры, если я - собственник, а в квартире проживает прописанный пожилой, лежачий родственник (без права собственности), который на основании договора дарения передал мне свою долю более 10 лет назад?

Эдуард: 20.09.2024, рубрика «Продажа квартиры» Показать ответ

Романцева Людмила Евгеньевна

Специалист по недвижимости +79530066444

Добрый день. Эдуард, конечно, Вы можете продать такую квартиру, но прежде, необходимо, чтобы все члены семьи, прописанные и проживающие в квартире, включая Вашего пожилого, лежачего родственника выписались из квартиры не позднее трех дней до сделки. Для этого Ваш родственник должен подать в регистрационные органы заявление на выписку либо самостоятельно, либо через доверенное лицо, действующее от его имени на основании нотариальной доверенности на совершение значимых юридических действий, а именно выписку/прописку. Действия Вашего родственника должны быть осознанными. В том случае, если родственник в силу болезни признан недееспособным, продать квартиру без согласия органов опеки на перемену его места жительства невозможно. Если опека разрешит продажу и покупку нового объекта недвижимости, то продать квартиру можно, но в опеку необходимо представить нотариальное обязательство, что после продажи и покупки новой недвижимости, опекаемое лицо будет прописано в новой квартире. Для получения разрешения опеки о продаже квартиры ей необходимо представить сведения по старой и новой квартирам. Поэтому, место проживания Вашего родственника необходимо определить до начала процесса продажи квартиры. Необходимо внимательно изучить договор дарения Вашего родственника в Вашу собственность. Если родственник- опекаемое лицо, то в договоре дарения может быть пункт о его пожизненном проживании в квартире. Гражданское Законодательство РФ позволяет продать квартиру на основании договора купли-продажи и с прописанными жильцами, но не имеющими право собственности в квартире. Однако, навряд ли Вы найдете покупателя на квартиру с таким «обременением». В виду того, что Ваша сделка относится к сложным, готовы помочь Вам в продаже Вашей квартиры. Мы оказываем все услуги на высоком профессиональном уровне, обеспечивая их качество, гарантируя надежность и безопасность сделки, обеспечивая максимальную выгоду для клиента. Мы работаем на Вас, мы работаем для Вас! Пишите или звоните. Готовы помочь.

20.09.2024, рубрика «Продажа квартиры»
Анжелика

Вопрос: Здравствуйте. Хочу продать квартиру в районе Вторчермета. Двухкомнатная, на втором этаже. Но проблема в том, что я пока не могу этого сделать, потому что у меня нет документов на нее, они потеряны. Могу ли я просто заказать выписку ЕГРН и продать таким образом квартиру?

Анжелика: 06.09.2024, рубрика «Продажа квартиры» Показать ответ

Добрый день, уважаемая Анжелика. Да, действительно, чтобы осуществить сделку по купле-продаже недвижимости, предоставлять документы-основания в МФЦ не требуется, так как все данные и по собственнику, и по зарегистрированным правам в Едином государственном реестре недвижимости зафиксированы. Но, на практике, продать только по выписке ЕГРН любой объект недвижимости достаточно сложно, так как покупателю важен не только сам факт принадлежности квартиры продавцу, но и основные условия, по которому это жилье стало Вашей собственностью. Т.е. ему важно понять, есть ли какие-либо особые условия, влияющие или ограничивающие его права в дальнейшем после покупки квартиры у Вас. Эти условия могут быть зафиксированы именно в правоустанавливающем документе, на основании которого право возникло. Например, если это было свидетельство о праве на наследство по закону, из него можно увидеть - на основании какого документа квартира принадлежала наследодателю и исходя из этой информации проанализировать последующие риски, которые могут возникнуть в будущем. Исходя из всего вышесказанного, можно сделать вывод о том, что отсутствие таких документов будет усложнять процесс продажи, и, соответственно, влиять на окончательную стоимость недвижимости. Но, что хотим сказать, отсутствие документов еще не основание для паники. Любые документы можно восстановить и, как следствие, продать квартиру выгодно. Мы занимаемся восстановлением любых документов для продажи. Поэтому, рекомендуем Вам связаться с любым из наших специалистов по телефонам, указанным на сайте, или записаться на бесплатную консультацию через форму обратной связи на нашем сайте. Обязательно поможем и гарантируем результат!

06.09.2024, рубрика «Продажа квартиры»
Дамир

Вопрос: Если есть единственное жилье в России - квартира. Во владении - 4 года. Может ли нерезидент продать, не платя налоги?

Дамир: 19.03.2024, рубрика «Продажа квартиры» Показать ответ

Немирова Оксана Владимировна

Специалист по недвижимости +79030819972

Здравствуйте, Дамир. Да, продать квартиру можно, если действительно единственное жилье, то налога не будет. Готовы Вам помочь в продаже и организации сделки и взаиморасчетов. Оставьте заявку на нашем сайте с подробным описанием своей квартиры и мы обязательно поможем!

19.03.2024, рубрика «Продажа квартиры»

Показать все вопросы

Полозова Светлана Владимировна

Портфолио:

Портфолио по продаже 3-комнатной квартиры на Эльмаше

06.03.2026, рубрика «Продажа квартиры» Показать полностью
Романцева Людмила Евгеньевна

Романцева Людмила Евгеньевна

Специалист по недвижимости +79530066444

Портфолио:

Портфолио по продаже квартиры Старых БОЛЬШЕВИКОВ, 84

10.03.2025, рубрика «Продажа квартиры» Показать полностью
Немирова Оксана Владимировна

Немирова Оксана Владимировна

Специалист по недвижимости +79030819972

Портфолио:

Портфолио продажа квартиры на Бардина

20.09.2024, рубрика «Продажа квартиры» Показать полностью
Немирова Оксана Владимировна

Немирова Оксана Владимировна

Специалист по недвижимости +79030819972

Портфолио:

Портфолио по продаже квартиры в новом доме на Широкой речке

26.12.2023, рубрика «Продажа квартиры» Показать полностью
Полозова Светлана Владимировна

Портфолио:

Портфолио по продаже квартиры на Тверитина

25.12.2023, рубрика «Продажа квартиры» Показать полностью
Немирова Оксана Владимировна

Немирова Оксана Владимировна

Специалист по недвижимости +79030819972

Портфолио:

Продажа квартиры по доверенности

26.07.2022, рубрика «Продажа квартиры» Показать полностью
Полозова Светлана Владимировна

Портфолио:

Продажа квартиры в ипотеке Сбербанка

14.02.2022, рубрика «Продажа квартиры» Показать полностью
Немирова Оксана Владимировна

Немирова Оксана Владимировна

Специалист по недвижимости +79030819972

Портфолио:

История продажи квартиры

18.01.2022, рубрика «Продажа квартиры» Показать полностью
Немирова Оксана Владимировна

Немирова Оксана Владимировна

Специалист по недвижимости +79030819972

Портфолио:

Продажа квартиры в центре

12.09.2021, рубрика «Продажа квартиры» Показать полностью
Немирова Оксана Владимировна

Немирова Оксана Владимировна

Специалист по недвижимости +79030819972

Портфолио:

Как я продавала квартиру на улице Лермонтова

13.07.2021, рубрика «Продажа квартиры» Показать полностью

Показать все портфолио

3-комнатная квартира, 86 м2, 7/32 эт.
Обмен
Ипотека
Рассрочка
3-комнатная квартира, 86 м2, 7/32 эт.
Екатеринбург, Автовокзал
пер. Базовый
11.32 млн ₽
131 615 ₽/м2
49 833 ₽/мес
2-комнатная квартира, 57 м2, 25/32 эт.
Ипотека
2-комнатная квартира, 57 м2, 25/32 эт.
Екатеринбург, Автовокзал
пер. Базовый
8.19 млн ₽
143 701 ₽/м2
36 062 ₽/мес
1-комнатная квартира, 38 м2, 6/32 эт.
Обмен
Ипотека
1-комнатная квартира, 38 м2, 6/32 эт.
Екатеринбург, Автовокзал
пер. Базовый
5.75 млн ₽
151 256 ₽/м2
25 305 ₽/мес
Квартира-студия, 22 м2, 23/32 эт.
Ипотека
Квартира-студия, 22 м2, 23/32 эт.
Екатеринбург, Автовокзал
пер. Базовый
3.48 млн ₽
158 145 ₽/м2
15 318 ₽/мес
1-комнатная квартира, 35 м2, 4/5 эт.
Ипотека
1-комнатная квартира, 35 м2, 4/5 эт.
Екатеринбург, Центр
ул. Карла Маркса, 24
5.40 млн ₽
154 285 ₽/м2
23 774 ₽/мес
3-комнатная квартира, 90 м2, 12/30 эт.
Обмен
Ипотека
Рассрочка
Скидка
3-комнатная квартира, 90 м2, 12/30 эт.
Екатеринбург, Автовокзал
ул. Айвазовского
16.58 млн ₽
184 198 ₽/м2
72 986 ₽/мес
2-комнатная квартира, 60 м2, 21/30 эт.
Обмен
Ипотека
Рассрочка
Скидка
2-комнатная квартира, 60 м2, 21/30 эт.
Екатеринбург, Автовокзал
ул. Айвазовского
11.55 млн ₽
192 512 ₽/м2
50 853 ₽/мес
1-комнатная квартира, 43 м2, 7/30 эт.
Обмен
Ипотека
Рассрочка
Скидка
1-комнатная квартира, 43 м2, 7/30 эт.
Екатеринбург, Автовокзал
ул. Айвазовского
8.19 млн ₽
190 511 ₽/м2
36 066 ₽/мес
2-комнатная квартира, 69 м2, 15/25 эт.
Обмен
Ипотека
Рассрочка
Скидка
2-комнатная квартира, 69 м2, 15/25 эт.
Екатеринбург, Юго-Западный
ул. Бардина
10.96 млн ₽
158 835 ₽/м2
48 251 ₽/мес
1-комнатная квартира, 37 м2, 4/5 эт.
Обмен
Ипотека
Рассрочка
1-комнатная квартира, 37 м2, 4/5 эт.
Екатеринбург, Уралмаш
ул. Культуры, 9
3.50 млн ₽
94 594 ₽/м2
15 409 ₽/мес
3-комнатная квартира, 80 м2, 11/26 эт.
Обмен
Ипотека
Рассрочка
3-комнатная квартира, 80 м2, 11/26 эт.
Екатеринбург, Эльмаш
ул. Бабушкина
12.45 млн ₽
155 625 ₽/м2
54 813 ₽/мес
2-комнатная квартира, 59 м2, 8/26 эт.
Обмен
Ипотека
Рассрочка
2-комнатная квартира, 59 м2, 8/26 эт.
Екатеринбург, Эльмаш
ул. Бабушкина
10.00 млн ₽
169 491 ₽/м2
44 026 ₽/мес
1-комнатная квартира, 44 м2, 10/26 эт.
Обмен
Ипотека
Рассрочка
1-комнатная квартира, 44 м2, 10/26 эт.
Екатеринбург, Эльмаш
ул. Бабушкина
7.75 млн ₽
176 136 ₽/м2
34 120 ₽/мес
3-комнатная квартира, 81 м2, 7/25 эт.
Обмен
Ипотека
Рассрочка
Скидка
3-комнатная квартира, 81 м2, 7/25 эт.
Екатеринбург, ВИЗ
ул. Викулова
15.96 млн ₽
196 986 ₽/м2
70 248 ₽/мес
2-комнатная квартира, 58 м2, 14/25 эт.
Обмен
Ипотека
Рассрочка
2-комнатная квартира, 58 м2, 14/25 эт.
Екатеринбург, ВИЗ
ул. Викулова
10.78 млн ₽
185 925 ₽/м2
47 476 ₽/мес

Показать все объекты